Faisons un tour d'horizon
Référence de l’annonce : 2174PASTHI
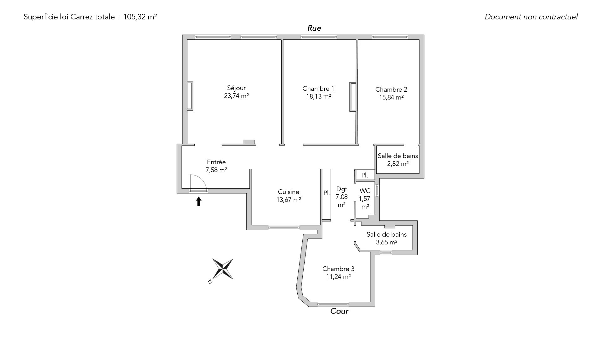
À côté du square Berlioz, au sein d'une élégante copropriété en pierre de taille, appartement familial de 105,32m² loi Carrez orienté sud-est et doté d'une très belle hauteur sous plafond de 3 mètres.
Il comporte une entrée, un séjour de 23,74m², une cuisine semi-ouverte, trois grandes chambres dont deux ayant une salle de bains, des toilettes séparées ainsi que de nombreux rangements.
Le bien a conservé ses éléments d'origine: parquet, moulures et cheminées.
Une cave complète cette offre
EXCLUSIVITÉ.
- Habitable : 105,32 m² Total : 107,57 m²
- 4 pièces
- 3 chambres
- 2 salles de bains
- Étage 1/6
- Cheminée
- Exposition Sud-est
- Bon état
Ce qui nous séduit
- Gardien
- Traversant
- Ascenseur
- Cave
On vous en dit plus
Réglementations & éléments financiers
Les informations sur les risques auxquels ce bien est exposé sont disponibles sur le site Géorisques : www.georisques.gouv.fr
| Diagnostics |
|---|
| Éléments financiers |
|---|
Taxe foncière : 2 169,00 € /an
Détails de l’intérieur & de l’extérieur
| Pièce | Surface | Détail |
|---|---|---|
| 1x Cave | Étage : -2 | |
| 1x Séjour | 23.74 m² |
Étage : 1er Exposition : Sud-est Revêtement : Parquet Plafond : 3m |
| 1x Entrée | 7.58 m² |
Étage : 1er Revêtement : Carrelage |
| 1x Cuisine | 13.67 m² |
Étage : 1er Revêtement : Carrelage |
| 1x Chambre | 18.13 m² |
Étage : 1er Exposition : Sud-est Revêtement : Parquet |
| 1x Dégagement | 7.08 m² |
Étage : 1er Revêtement : Carrelage |
| 1x Chambre | 15.84 m² |
Étage : 1er Exposition : Sud-est Revêtement : Parquet |
| 1x Salle de bains | 2.82 m² |
Étage : 1er Revêtement : Carrelage |
| 1x Chambre | 11.24 m² |
Étage : 1er Revêtement : Moquette |
| 1x Salle de bains | 3.65 m² |
Étage : 1er Revêtement : Carrelage |
| 1x Toilettes | 1.57 m² |
Étage : 1er Revêtement : Carrelage |
Prestations
Bâtiment & Copropriété
| Bâtiment |
|---|
-
Construit en : 1900
-
Type : Pierre de taille
-
Nombre d'étages : 6
| Copropriété |
|---|
48 lots d'habitation
Montant moyen annuel de la quote part de charges courantes : 2 508 €
Procédure en cours : Non
Rencontrez votre agence
Simulateur de financement
Calculez le montant des mensualités de votre prêt immobilier correspondant à l'emprunt que vous souhaitez effectuer.
Prix du bien HAI
950 000 €
€
par mois
Vous devez vendre pour acheter ?
Nos consultants immobiliers se tiennent à votre disposition pour réaliser une estimation de la valeur de votre bien. Toutes nos estimations sont offertes.
Je fais estimer mon bienUn lieu de vie à votre image
Junot vous fait visiter les quartiers dans lesquels nos agences vous accueillent, et vous présente les spécificités et bonnes adresses.
Parcourir les quartiers










