Faisons un tour d'horizon
Référence de l’annonce : 3398ABBVIQ
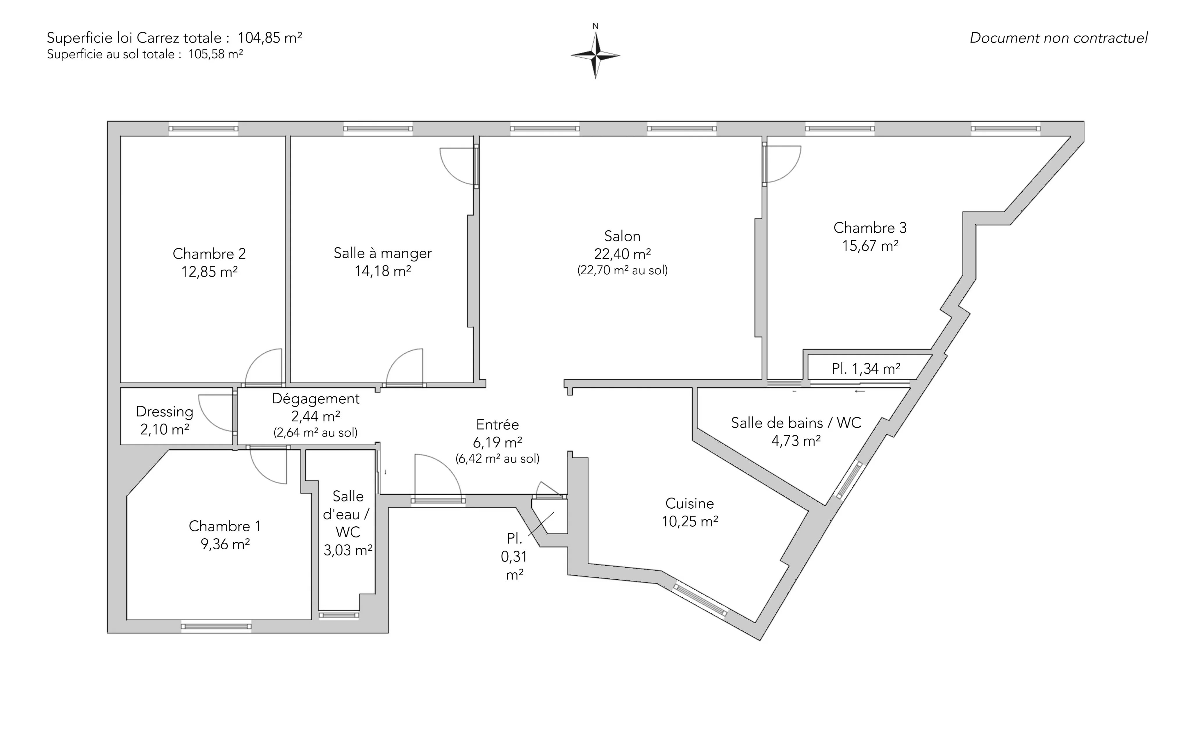
Idéalement situé aux Abbesses au quatrième étage par ascenseur d’un immeuble avec gardienne à demeure, très bel appartement familial 104,85m² loi Carrez et 105,58m² au sol.
Il se compose d’une entrée, un double séjour, une cuisine semi-ouverte équipée, une suite parentale avec rangements et une salle de bains avec toilettes, deux autres chambres, une salle de douche avec toilettes.
Entièrement rénové en 2021, il saura vous séduire par son plan sans perte de place et ses nombreuses ouvertures. Charme de l’ancien conservé: parquet, cheminée et poutres apparentes.
Une cave complète cette offre.
- Habitable : 104,85 m² Total : 105,58 m²
- 5 pièces
- 3 chambres
- 1 salle de bains
- 1 salle de douche
- Étage 4/6
- Cheminée
- Exposition Nord
- Bon état
Ce qui nous séduit
- Gardien
- Calme
- Ascenseur
- Cave
On vous en dit plus
Réglementations & éléments financiers
Les informations sur les risques auxquels ce bien est exposé sont disponibles sur le site Géorisques : www.georisques.gouv.fr
| Diagnostics |
|---|
Consommation énergie finale : B - 106.8 kWh/m²/an.
Montant estimé des dépenses annuelles d’énergie pour un usage standard : entre 1 970,00 € et 2 680,00 € /an (abonnement compris).
Prix moyen des énergies indexées au 01/01/2023.
| Éléments financiers |
|---|
Taxe foncière : 1 808,00 € /an
Détails de l’intérieur & de l’extérieur
| Pièce | Surface | Détail |
|---|---|---|
| 1x Cave | Étage : -1 | |
| 1x Chambre | 9.36 m² |
Étage : 4ème Revêtement : Parquet |
| 1x Séjour | 22.4 m² |
Étage : 4ème Exposition : Nord Revêtement : Parquet |
| 1x Salle de bains / toilettes | 4.73 m² |
Étage : 4ème Revêtement : Carrelage |
| 1x Salle de douche / toilettes | 3.03 m² |
Étage : 4ème Revêtement : Carrelage |
| 1x Entrée | 6.19 m² |
Étage : 4ème Revêtement : Parquet |
| 1x Dégagement | 2.44 m² |
Étage : 4ème Revêtement : Parquet |
| 1x Dressing | 2.1 m² | Étage : 4ème |
| 1x Chambre | 12.85 m² |
Étage : 4ème Revêtement : Parquet |
| 1x Salle à manger | 14.18 m² |
Étage : 4ème Revêtement : Parquet |
| 1x Chambre | 15.67 m² |
Étage : 4ème Revêtement : Parquet |
| 1x Cuisine | 10.25 m² |
Étage : 4ème Revêtement : Carrelage |
| 1x Placard | 0.31 m² | Étage : 4ème |
| 1x Placard | 1.34 m² | Étage : 4ème |
Prestations
Bâtiment & Copropriété
| Bâtiment |
|---|
-
Construit en : 1880
-
Nombre d'étages : 6
| Copropriété |
|---|
Montant moyen annuel de la quote part de charges courantes : 4 356 €
Procédure en cours : Non
Rencontrez votre agence
Simulateur de financement
Calculez le montant des mensualités de votre prêt immobilier correspondant à l'emprunt que vous souhaitez effectuer.
Prix du bien HAI
1 330 000 €
€
par mois
Vous devez vendre pour acheter ?
Nos consultants immobiliers se tiennent à votre disposition pour réaliser une estimation de la valeur de votre bien. Toutes nos estimations sont offertes.
Je fais estimer mon bienUn lieu de vie à votre image
Junot vous fait visiter les quartiers dans lesquels nos agences vous accueillent, et vous présente les spécificités et bonnes adresses.
Parcourir les quartiers









