Faisons un tour d'horizon
Référence de l’annonce : 2859WAGBOU17
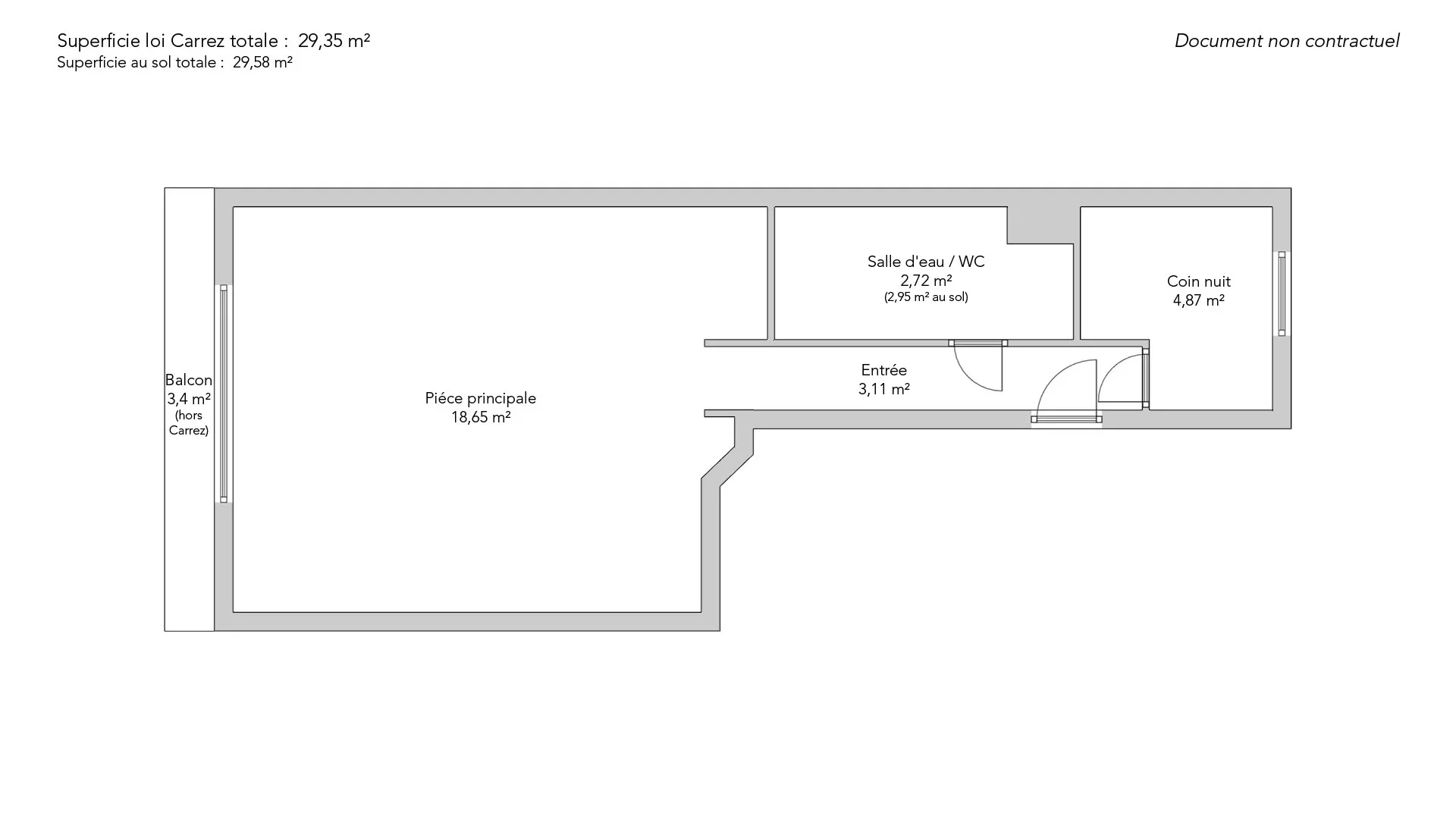
À quelques pas de la place de l'Étoile, dans une petite rue au calme, au premier étage par ascenseur d'un immeuble récent bien entretenu, nous vous proposons un agréable deux pièces de 29,35m² loi Carrez.
Parfaitement optimisé et en excellent état, il se compose d'une petite entrée desservant une grande pièce à vivre donnant sur un balcon, une cuisine ouverte, une chambre sur cour et une salle de douche avec toilettes.
Idéal pied-à-terre ou investisseurs.
Une cave complète cette offre.
EXCLUSIVITÉ.
- Habitable : 29,35 m² Total : 29,58 m²
- 2 pièces
- 1 chambre
- 1 salle de douche
- Étage 1/6
- Exposition Nord-est
- Bon état
Ce qui nous séduit
- Balcon/Terrasse
- Adresse très recherchée
- Traversant
- Ascenseur
- Cave
On vous en dit plus
Réglementations & éléments financiers
Les informations sur les risques auxquels ce bien est exposé sont disponibles sur le site Géorisques : www.georisques.gouv.fr
| Diagnostics |
|---|
Consommation énergie finale : C - 139 kWh/m²/an.
Montant estimé des dépenses annuelles d’énergie pour un usage standard : entre 630,00 € et 860,00 € /an (abonnement compris).
Prix moyen des énergies indexées au 01/01/2021.
| Éléments financiers |
|---|
Taxe foncière : 1 032,00 € /an
Détails de l’intérieur & de l’extérieur
| Pièce | Surface | Détail |
|---|---|---|
| 1x Cave | Étage : Sous-sol | |
| 1x Entrée | 3.11 m² | Étage : 1er |
| 1x Chambre | 4.87 m² | Étage : 1er |
| 1x Salle de douche / toilettes | 2.72 m² | Étage : 1er |
| 1x Séjour | 18.65 m² | Étage : 1er |
| 1x Balcon | 3.4 m² | Étage : 1er |
Prestations
Bâtiment & Copropriété
| Bâtiment |
|---|
-
Construit en : 1976
-
Nombre d'étages : 6
| Copropriété |
|---|
26 lots d'habitation
Montant moyen annuel de la quote part de charges courantes : 2 418 €
Procédure en cours : Non
Rencontrez votre agence
Simulateur de financement
Calculez le montant des mensualités de votre prêt immobilier correspondant à l'emprunt que vous souhaitez effectuer.
Prix du bien HAI
380 000 €
€
par mois
Vous devez vendre pour acheter ?
Nos consultants immobiliers se tiennent à votre disposition pour réaliser une estimation de la valeur de votre bien. Toutes nos estimations sont offertes.
Je fais estimer mon bienUn lieu de vie à votre image
Junot vous fait visiter les quartiers dans lesquels nos agences vous accueillent, et vous présente les spécificités et bonnes adresses.
Parcourir les quartiers














