Faisons un tour d'horizon
Référence de l’annonce : OA1147POIGON
Idéalement situé à la croisée des 2e, 9e et 10e arrondissements.
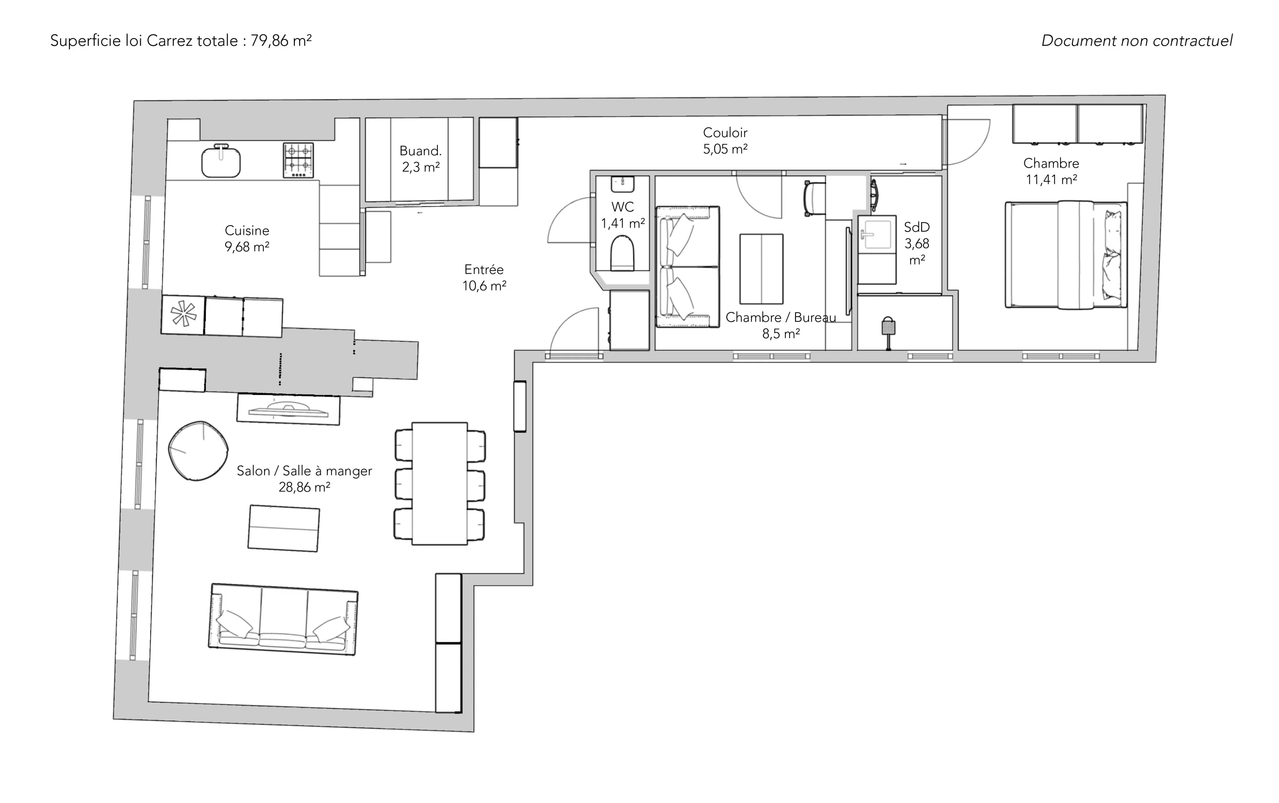
Au troisième étage d'un bel immeuble ancien, charmant appartement en excellent état de 79,86m² loi Carrez.
Le plan sans perte d'espace comprend un grand espace de vie avec séjour exposé plein sud, une cuisine équipée, deux grandes chambres sur cour, une salle de douche, un espace buanderie et des toilettes séparées.
Ce bien a bénéficié d'une rénovation soignée mariant charme de l'ancien (préservé avec parquet en point de Hongrie et cheminée) et modernité. Nombreux rangements.
Il offre une belle luminosité, notamment grâce à ses grandes fenêtres et ses vues dégagées.
Une cave complète cette offre.
Copropriété bien entretenue.
- Habitable : 79,86 m² Total : 81,39 m²
- 4 pièces
- 2 chambres
- 1 salle de douche
- Étage 3/5
- Cheminée
- Exposition Est, Sud
- Excellent état
Ce qui nous séduit
- Dernier étage
- Lumineux
- Calme
- Cave
- Vue dégagée
Rencontrez votre agence
Vous devez vendre pour acheter ?
Nos consultants immobiliers se tiennent à votre disposition pour réaliser une estimation de la valeur de votre bien. Toutes nos estimations sont offertes.
Je fais estimer mon bienUn lieu de vie à votre image
Junot vous fait visiter les quartiers dans lesquels nos agences vous accueillent, et vous présente les spécificités et bonnes adresses.
Parcourir les quartiers