Faisons un tour d'horizon
Référence de l’annonce : 3254BRECHA
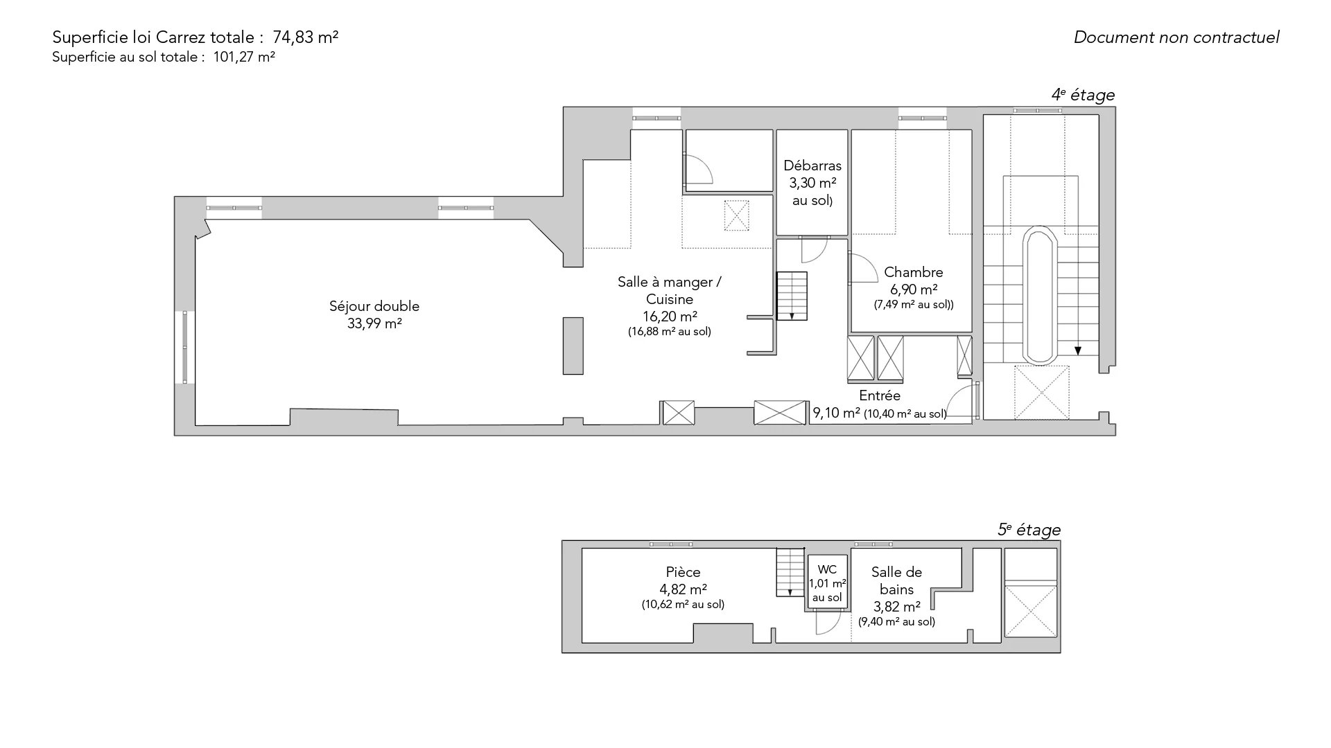
Idéalement situé à proximité du Carreau du Temple, dans une splendide copropriété du XVIIIème siècle, un appartement à rénover accessible au quatrième étage par escalier. D'une surface de 74,83m² loi Carrez (plus de 100m² au sol avec sa mezzanine), il se compose d'un magnifique séjour en angle avec 4m de hauteur sous plafond et poutres apparentes, d'un espace cuisine/salle à manger, ainsi que d'une chambre et d'un espace mezzanine supplémentaire, salle de douche et toilettes.
Vous serez séduits par son superbe potentiel, son charme ancien et sa belle luminosité grâce à son exposition ouest.
- Habitable : 74,83 m² Total : 101,27 m²
- 3 pièces
- 1 chambre
- 1 salle de bains
- Étage 4/4
- Cheminée
- Exposition Ouest
- À rénover
Ce qui nous séduit
- Dernier étage
- Lumineux
- Traversant
- Vue dégagée
On vous en dit plus
Réglementations & éléments financiers
Les informations sur les risques auxquels ce bien est exposé sont disponibles sur le site Géorisques : www.georisques.gouv.fr
| Diagnostics |
|---|
Consommation énergie finale : F - 398 kWh/m²/an.
Logement à consommation énergétique excessive : classe F
Montant estimé des dépenses annuelles d’énergie pour un usage standard : entre 1 942,00 € et 2 628,00 € /an (abonnement compris).
Prix moyen des énergies indexées au 01/01/2021.
| Éléments financiers |
|---|
Taxe foncière : 0,00 € /an
Détails de l’intérieur & de l’extérieur
| Pièce | Surface | Détail |
|---|---|---|
| 1x Entrée | 9.1 m² | Étage : 4ème |
| 1x Débarras | 3.3 m² | Étage : 4ème |
| 1x Séjour | 33.99 m² |
Étage : 4ème Exposition : Ouest Revêtement : Carrelage Plafond : 4m |
| 1x Chambre | 6.9 m² | Étage : 4ème |
| 1x Séjour/cuisine | 16.2 m² | Étage : 4ème |
| 1x Salle de bains | 3.82 m² | Étage : 5ème |
| 1x Toilettes | 1.01 m² | Étage : 5ème |
| 1x Bureau | 4.82 m² | Étage : 5ème |
Prestations
Bâtiment & Copropriété
| Bâtiment |
|---|
-
Construit en : 1870
-
Type : Pierre
-
Nombre d'étages : 4
| Copropriété |
|---|
35 lots d'habitation
Montant moyen annuel de la quote part de charges courantes : 1 480 €
Procédure en cours : Non
Rencontrez votre agence
Simulateur de financement
Calculez le montant des mensualités de votre prêt immobilier correspondant à l'emprunt que vous souhaitez effectuer.
Prix du bien HAI
860 000 €
€
par mois
Vous devez vendre pour acheter ?
Nos consultants immobiliers se tiennent à votre disposition pour réaliser une estimation de la valeur de votre bien. Toutes nos estimations sont offertes.
Je fais estimer mon bienUn lieu de vie à votre image
Junot vous fait visiter les quartiers dans lesquels nos agences vous accueillent, et vous présente les spécificités et bonnes adresses.
Parcourir les quartiers












