Faisons un tour d'horizon
Référence de l’annonce : 3378MARDEB
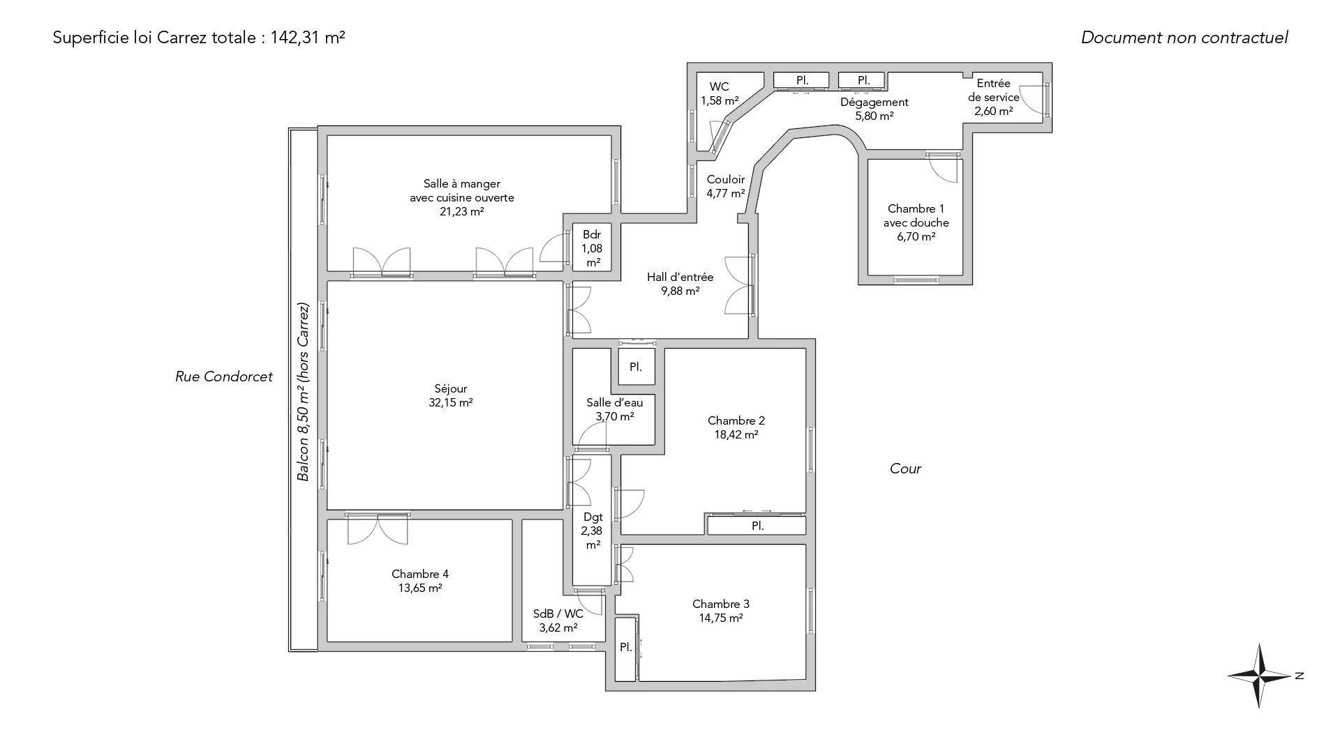
Idéalement situé dans une rue recherchée, à proximité immédiate de la rue des Martyrs et de l'avenue Trudaine, dans un très bel immeuble en pierre de taille, au cinquième étage avec ascenseur, superbe appartement familial de six pièces seul à l'étage d'une superficie de 142,31m² loi Carrez.
Le plan optimisé comporte une belle entrée, un vaste séjour donnant sur un grand balcon filant plein sud, une cuisine dinatoire, quatre chambres, une salle de bains, deux salles de douche, deux toilettes, une buanderie et de nombreux rangements.
Une grande cave complète ce bien. Cet appartement saura séduire par sa belle luminosité et son ensoleillement, son charme de l'ancien préservé et son extérieur.
EXCLUSIVITÉ.
- Habitable : 142,30 m² Total : 144,34 m²
- 6 pièces
- 4 chambres
- 1 salle de bains
- 1 salle de douche
- Étage 5/6
- Cheminée
- Exposition Sud
- Bon état
Ce qui nous séduit
- Balcon/Terrasse
- Lumineux
- Ascenseur
- Cave
On vous en dit plus
Réglementations & éléments financiers
Les informations sur les risques auxquels ce bien est exposé sont disponibles sur le site Géorisques : www.georisques.gouv.fr
| Diagnostics |
|---|
Consommation énergie finale : D - 192 kWh/m²/an.
Montant estimé des dépenses annuelles d’énergie pour un usage standard : entre 2 814,00 € et 3 808,00 € /an (abonnement compris).
Prix moyen des énergies indexées au 01/01/2023.
| Éléments financiers |
|---|
Détails de l’intérieur & de l’extérieur
| Pièce | Surface | Détail |
|---|---|---|
| 1x Cave | 14 m² |
Étage : -1 Revêtement : Béton |
| 1x Entrée | 9.88 m² |
Étage : 5ème Revêtement : Parquet |
| 1x Séjour | 32.15 m² |
Étage : 5ème Exposition : Sud Revêtement : Parquet Plafond : 2.57m |
| 1x Salle à manger/Cuisine | 21.23 m² |
Étage : 5ème Exposition : Sud Revêtement : Parquet |
| 1x Balcon | 8.5 m² |
Étage : 5ème Exposition : Sud |
| 1x Chambre | 18.42 m² |
Étage : 5ème Exposition : Nord Revêtement : Parquet |
| 1x Chambre | 14.75 m² |
Étage : 5ème Exposition : Nord Revêtement : Parquet |
| 1x Chambre | 13.65 m² |
Étage : 5ème Exposition : Sud Revêtement : Parquet |
| 1x Salle de bains / toilettes | 3.7 m² |
Étage : 5ème Exposition : Est Revêtement : Carrelage |
| 1x Chambre | 6.7 m² |
Étage : 5ème Exposition : Est Revêtement : Parquet Plafond : 2.5m |
| 1x Salle de douche | 3.62 m² |
Étage : 5ème Revêtement : Carrelage |
| 1x Toilettes | 1.58 m² |
Étage : 5ème Revêtement : Carrelage |
| 1x Buanderie | 1.08 m² |
Étage : 5ème Revêtement : Parquet |
| 1x Dégagement | 2.38 m² |
Étage : 5ème Revêtement : Parquet |
| 1x Couloir | 4.77 m² |
Étage : 5ème Revêtement : Parquet |
| 1x Dégagement | 5.8 m² |
Étage : 5ème Revêtement : Parquet |
| 1x Entrée | 2.6 m² | Étage : 5ème |
Prestations
Bâtiment & Copropriété
| Bâtiment |
|---|
-
Construit en : 1860
-
Type : Pierre de taille
-
Nombre d'étages : 6
-
Niveau de qualité : Normal
| Copropriété |
|---|
20 lots d'habitation
Montant moyen annuel de la quote part de charges courantes : 2 760 €
Procédure en cours : Non
Rencontrez votre agence
Simulateur de financement
Calculez le montant des mensualités de votre prêt immobilier correspondant à l'emprunt que vous souhaitez effectuer.
Prix du bien HAI
2 180 000 €
€
par mois
Vous devez vendre pour acheter ?
Nos consultants immobiliers se tiennent à votre disposition pour réaliser une estimation de la valeur de votre bien. Toutes nos estimations sont offertes.
Je fais estimer mon bienUn lieu de vie à votre image
Junot vous fait visiter les quartiers dans lesquels nos agences vous accueillent, et vous présente les spécificités et bonnes adresses.
Parcourir les quartiers








