Faisons un tour d'horizon
Référence de l’annonce : 782JFPILL
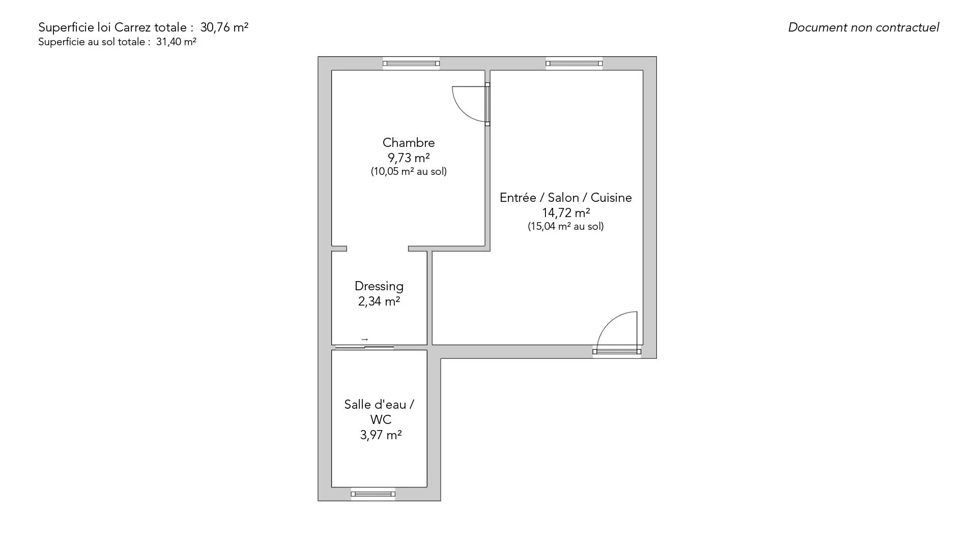
Dans un immeuble ancien, au deuxième étage, appartement de deux pièces de 30,76m² loi Carrez, refait à neuf par architecte.
Le plan optimisé comme une suite d'hôtel, sans aucune perte d'espace, propose une entrée salon/cuisine aménagée sur rue, une chambre lumineuse, un dressing et une salle de douche avec toilettes.
Ce bien est idéalement situé dans un quartier recherché, au calme, proche des transports et des commerces. Il dispose du charme de l'ancien.
Ideal pied-à-terre ou investissement.
- Habitable : 30,76 m² Total : 31,40 m²
- 2 pièces
- 1 chambre
- 1 salle de douche
- Exposition Ouest
- Neuf
- Meublé
Ce qui nous séduit
- Adresse très recherchée
- Lumineux
- Calme
On vous en dit plus
Réglementations & éléments financiers
Les informations sur les risques auxquels ce bien est exposé sont disponibles sur le site Géorisques : www.georisques.gouv.fr
| Diagnostics |
|---|
Consommation énergie finale : B - 110 kWh/m²/an.
Montant estimé des dépenses annuelles d’énergie pour un usage standard : entre 670,00 € et 920,00 € /an (abonnement compris).
Prix moyen des énergies indexées au 01/01/2021.
| Éléments financiers |
|---|
Taxe foncière : 624,00 € /an
Détails de l’intérieur & de l’extérieur
| Pièce | Surface | Détail |
|---|---|---|
| 1x Séjour/cuisine | 14.72 m² | |
| 1x Chambre | 9.73 m² | |
| 1x Dressing | 2.34 m² | |
| 1x Salle de douche / toilettes | 3.97 m² |
Prestations
Bâtiment & Copropriété
| Bâtiment |
|---|
-
Construit en : 1800
-
Niveau de qualité : Normal
| Copropriété |
|---|
Montant moyen annuel de la quote part de charges courantes : 1 644 €
Procédure en cours : Non
Rencontrez votre agence
Simulateur de financement
Calculez le montant des mensualités de votre prêt immobilier correspondant à l'emprunt que vous souhaitez effectuer.
Prix du bien HAI
598 000 €
€
par mois
Vous devez vendre pour acheter ?
Nos consultants immobiliers se tiennent à votre disposition pour réaliser une estimation de la valeur de votre bien. Toutes nos estimations sont offertes.
Je fais estimer mon bienUn lieu de vie à votre image
Junot vous fait visiter les quartiers dans lesquels nos agences vous accueillent, et vous présente les spécificités et bonnes adresses.
Parcourir les quartiers













