Faisons un tour d'horizon
Référence de l’annonce : 1874CHMHEN
Rue du Cherche-Midi.
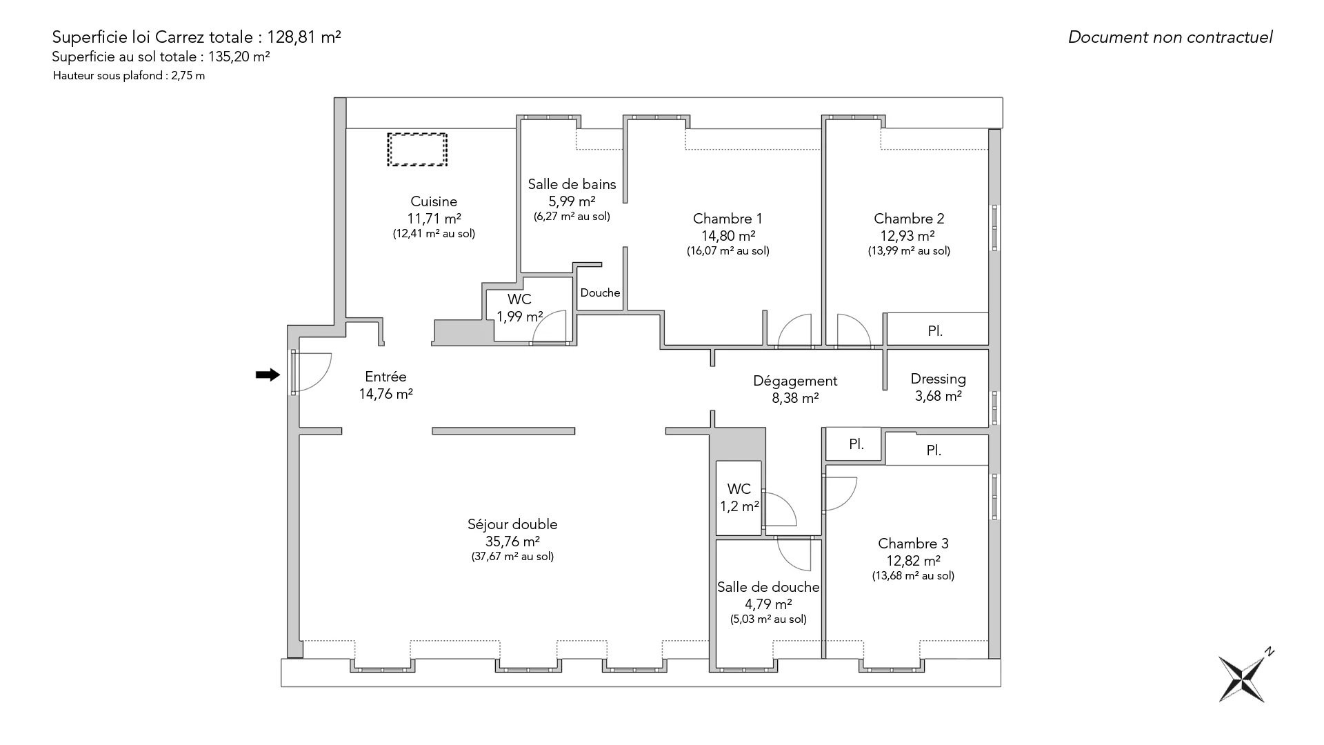
Au sixième et dernier étage par ascenseur d'un élégant immeuble construit en 2002, ce bel appartement familial de 128,81m² loi Carrez et 135,20m² au sol bénéficie d'une triple exposition et de magnifiques vues sur monuments.
Son plan parfait dissocie la partie jour de la partie nuit. L'entrée ouvre sur une belle double réception avec trois fenêtres sur la rue du Cherche-Midi. En face, une grande cuisine équipée offre un espace repas. L'espace nuit comporte deux chambres en angle qui se partagent une salle de douche et un dressing, et une suite parentale agrémentée d'une salle de bains complète. Deux toilettes séparées complètent ce plan.
Ce bien rare et en excellent état dispose également d'une cave et d'un emplacement de parking.
- Habitable : 128,81 m² Total : 135,20 m²
- 5 pièces
- 3 chambres
- 1 salle de bains
- 1 salle de douche
- Exposition Nord-est, Sud-est, Nord-ouest
- Excellent état
Ce qui nous séduit
- Vue exceptionnelle
- Adresse très recherchée
- Dernier étage
- Gardien
- Garage
- Vue monument historique
- Lumineux
- Calme
- Traversant
- Ascenseur
- Cave
- Vue dégagée
On vous en dit plus
Réglementations & éléments financiers
Les informations sur les risques auxquels ce bien est exposé sont disponibles sur le site Géorisques : www.georisques.gouv.fr
| Diagnostics |
|---|
Consommation énergie finale : B - 85 kWh/m²/an.
Montant estimé des dépenses annuelles d’énergie pour un usage standard : entre 1 930,00 € et 2 640,00 € /an (abonnement compris).
Prix moyen des énergies indexées au 01/01/2021.
| Éléments financiers |
|---|
Taxe foncière : 3 769,00 € /an
Détails de l’intérieur & de l’extérieur
| Pièce | Surface | Détail |
|---|---|---|
| 1x Cave | Étage : Sous-sol | |
| 1x Parking intérieur | Étage : Sous-sol | |
| 1x Garage | Étage : Sous-sol | |
| 1x Entrée | 14.76 m² | Étage : 6ème |
| 1x Séjour | 35.76 m² |
Étage : 6ème Plafond : 2.75m |
| 1x Cuisine équipée | 11.71 m² | Étage : 6ème |
| 1x Chambre | 14.8 m² | Étage : 6ème |
| 1x Chambre | 12.93 m² | Étage : 6ème |
| 1x Chambre | 12.82 m² | Étage : 6ème |
| 1x Salle de douche | 4.79 m² | Étage : 6ème |
| 1x Salle de bains | 5.99 m² | Étage : 6ème |
| 1x Toilettes | 1.99 m² | Étage : 6ème |
| 1x Toilettes | 1.2 m² | Étage : 6ème |
| 1x Débarras | 3.68 m² | Étage : 6ème |
| 1x Dégagement | 8.38 m² | Étage : 6ème |
Prestations
Bâtiment & Copropriété
| Bâtiment |
|---|
-
Construit en : 2002
-
Type : Pierre de taille
-
Nombre d'étages : 6
| Copropriété |
|---|
239 lots d'habitation
Montant moyen annuel de la quote part de charges courantes : 5 400 €
Procédure en cours : Non
Rencontrez votre agence
Simulateur de financement
Calculez le montant des mensualités de votre prêt immobilier correspondant à l'emprunt que vous souhaitez effectuer.
Prix du bien HAI
2 650 000 €
€
par mois
Vous devez vendre pour acheter ?
Nos consultants immobiliers se tiennent à votre disposition pour réaliser une estimation de la valeur de votre bien. Toutes nos estimations sont offertes.
Je fais estimer mon bienUn lieu de vie à votre image
Junot vous fait visiter les quartiers dans lesquels nos agences vous accueillent, et vous présente les spécificités et bonnes adresses.
Parcourir les quartiers













