Faisons un tour d'horizon
Référence de l’annonce : 5739JUNBAI
Rue Caulaincourt.
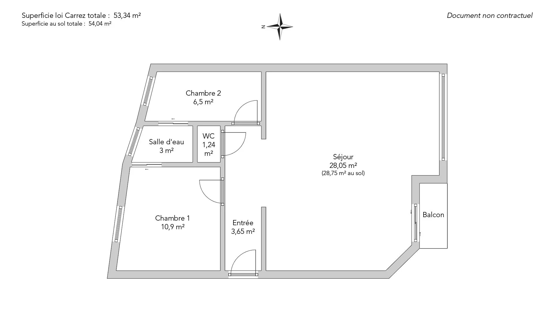
Au deuxième étage par ascenseur d’un bel immeuble en pierre de taille, superbe appartement de 53.34m² loi Carrez exposé plein sud et agrémenté d’un balcon.
Baigné de lumière, il se compose d’un spacieux séjour ensoleillé offrant une jolie vue dégagée sur les escaliers de Montmartre, d’une cuisine ouverte aménagée, de deux chambres au calme sur cour, d’une salle de douche et de toilettes séparées.
Cet appartement, en parfait état, séduit par ses beaux volumes, sa clarté et ses prestations soignées. La copropriété est bien entretenue.
Emplacement très recherché, à proximité immédiate des commerces et de la station de métro Lamarck-Caulaincourt.
Une cave complète ce bien.
EXCLUSIVITÉ.
- Habitable : 53,34 m² Total : 54,04 m²
- 3 pièces
- 2 chambres
- 1 salle de douche
- Cheminée
- Exposition Sud
- Excellent état
Ce qui nous séduit
- Balcon/Terrasse
- Adresse très recherchée
- Lumineux
- Traversant
- Ascenseur
- Cave
- Vue dégagée
On vous en dit plus
Réglementations & éléments financiers
Les informations sur les risques auxquels ce bien est exposé sont disponibles sur le site Géorisques : www.georisques.gouv.fr
| Diagnostics |
|---|
Consommation énergie finale : D - 193 kWh/m²/an.
Montant estimé des dépenses annuelles d’énergie pour un usage standard : entre 830,00 € et 1 140,00 € /an (abonnement compris).
Prix moyen des énergies indexées au 01/01/2021.
| Éléments financiers |
|---|
Taxe foncière : 1 173,00 € /an
Détails de l’intérieur & de l’extérieur
| Pièce | Surface | Détail |
|---|---|---|
| 1x Cave | ||
| 1x Entrée | 3.65 m² | Étage : 2ème |
| 1x Séjour/cuisine | 28.05 m² |
Étage : 2ème Exposition : Sud |
| 1x Chambre | 10.9 m² | Étage : 2ème |
| 1x Chambre | 6.5 m² | Étage : 2ème |
| 1x Salle de douche | 3 m² | Étage : 2ème |
| 1x Toilettes | 1.24 m² | Étage : 2ème |
| 1x Balcon | 2 m² | Étage : 2ème |
Prestations
Bâtiment & Copropriété
| Bâtiment |
|---|
-
Construit en : 1898
-
Type : Pierre de taille
-
Niveau de qualité : Normal
| Copropriété |
|---|
Montant moyen annuel de la quote part de charges courantes : 1 680 €
Procédure en cours : Non
Rencontrez votre agence
Simulateur de financement
Calculez le montant des mensualités de votre prêt immobilier correspondant à l'emprunt que vous souhaitez effectuer.
Prix du bien HAI
760 000 €
€
par mois
Vous devez vendre pour acheter ?
Nos consultants immobiliers se tiennent à votre disposition pour réaliser une estimation de la valeur de votre bien. Toutes nos estimations sont offertes.
Je fais estimer mon bienUn lieu de vie à votre image
Junot vous fait visiter les quartiers dans lesquels nos agences vous accueillent, et vous présente les spécificités et bonnes adresses.
Parcourir les quartiers










