Faisons un tour d'horizon
Référence de l’annonce : 3382MARLAC
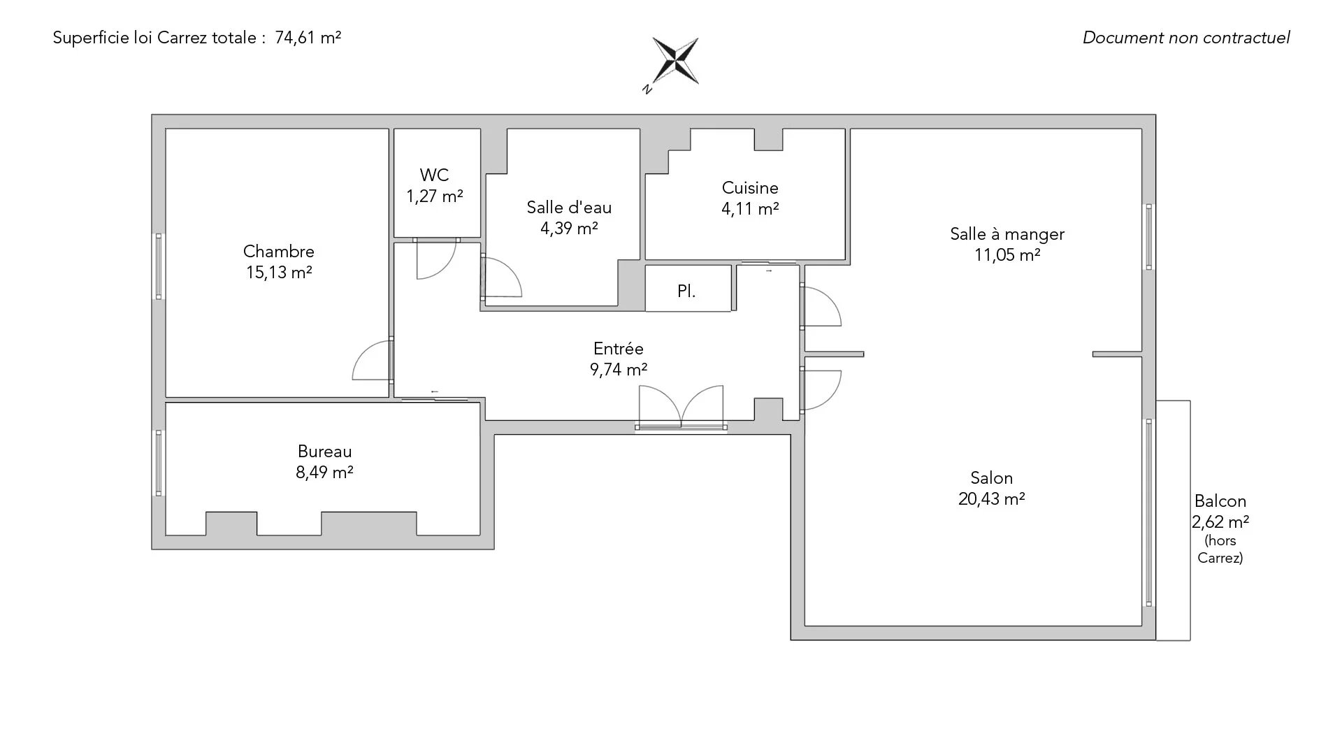
Au cinquième étage par ascenseur d'un immeuble récent bien entretenu, charmant appartement traversant de 74,61m² loi Carrez avec un balcon offrant une vue imprenable sur la Seine.
Il comprend une entrée avec rangement, un séjour baigné de soleil donnant sur le balcon, une salle à manger, une cuisine séparée (possibilité cuisine ouverte), deux chambres au calme absolu, une salle de douche avec espace buanderie et des toilettes séparées.
Plan optimisé et modulable avec un très beau potentiel.
Une cave complète ce bien. Local à vélos. Gardien. Possibilité de parking en location dans l'immeuble.
- Habitable : 74,61 m²
- 4 pièces
- 2 chambres
- 1 salle de douche
- Étage 5/8
- Exposition Sud-ouest
- À rafraîchir
Ce qui nous séduit
- Vue exceptionnelle
- Balcon/Terrasse
- Adresse très recherchée
- Gardien
- Lumineux
- Calme
- Traversant
- Ascenseur
- Cave
- Vue dégagée
On vous en dit plus
Réglementations & éléments financiers
Les informations sur les risques auxquels ce bien est exposé sont disponibles sur le site Géorisques : www.georisques.gouv.fr
| Diagnostics |
|---|
Consommation énergie finale : C - 171 kWh/m²/an.
Logement à consommation énergétique excessive : classe F
Montant estimé des dépenses annuelles d’énergie pour un usage standard : entre 2 220,00 € et 3 050,00 € /an (abonnement compris).
Prix moyen des énergies indexées au 01/01/2023.
| Éléments financiers |
|---|
Taxe foncière : 1 996,00 € /an
Détails de l’intérieur & de l’extérieur
| Pièce | Surface | Détail |
|---|---|---|
| 1x Cave | 5.37 m² | |
| 1x Balcon | 2.62 m² |
Étage : 5ème Exposition : Sud-ouest |
| 1x Entrée | 9.74 m² |
Étage : 5ème Revêtement : Parquet |
| 1x Salon | 20.43 m² |
Étage : 5ème Exposition : Sud-ouest Revêtement : Moquette |
| 1x Salle à manger | 11.05 m² |
Étage : 5ème Exposition : Sud-ouest Revêtement : Moquette |
| 1x Cuisine | 4.11 m² |
Étage : 5ème Revêtement : Parquet |
| 1x Chambre | 15.13 m² |
Étage : 5ème Exposition : Nord-est Revêtement : Carrelage |
| 1x Chambre | 8.49 m² |
Étage : 5ème Exposition : Nord-est Revêtement : Parquet |
| 1x Salle de douche | 4.39 m² |
Étage : 5ème Revêtement : Carrelage |
| 1x Toilettes | 1.27 m² |
Étage : 5ème Revêtement : Carrelage |
Prestations
Bâtiment & Copropriété
| Bâtiment |
|---|
-
Construit en : 1963
-
Nombre d'étages : 8
| Copropriété |
|---|
104 lots d'habitation
Montant moyen annuel de la quote part de charges courantes : 1 300 €
Procédure en cours : Non
Rencontrez votre agence
Simulateur de financement
Calculez le montant des mensualités de votre prêt immobilier correspondant à l'emprunt que vous souhaitez effectuer.
Prix du bien HAI
1 190 000 €
€
par mois
Vous devez vendre pour acheter ?
Nos consultants immobiliers se tiennent à votre disposition pour réaliser une estimation de la valeur de votre bien. Toutes nos estimations sont offertes.
Je fais estimer mon bienUn lieu de vie à votre image
Junot vous fait visiter les quartiers dans lesquels nos agences vous accueillent, et vous présente les spécificités et bonnes adresses.
Parcourir les quartiers











