Faisons un tour d'horizon
Référence de l’annonce : 3288GRECOL
Idéalement localisé à deux pas du Bon Marché et de tous les commerces du quartier Sèvres-Babylone, un superbe appartement de 44m² loi Carrez au sein d'un bel immeuble haussmannien construit en 1880 avec gardienne et ascenseur.
Intégralement rénové avec soin et élégance, ce bien dispose de tout le charme de l'ancien avec son parquet point de Hongrie, ses moulures d'origine, sa cheminée et sa belle hauteur sous plafond.
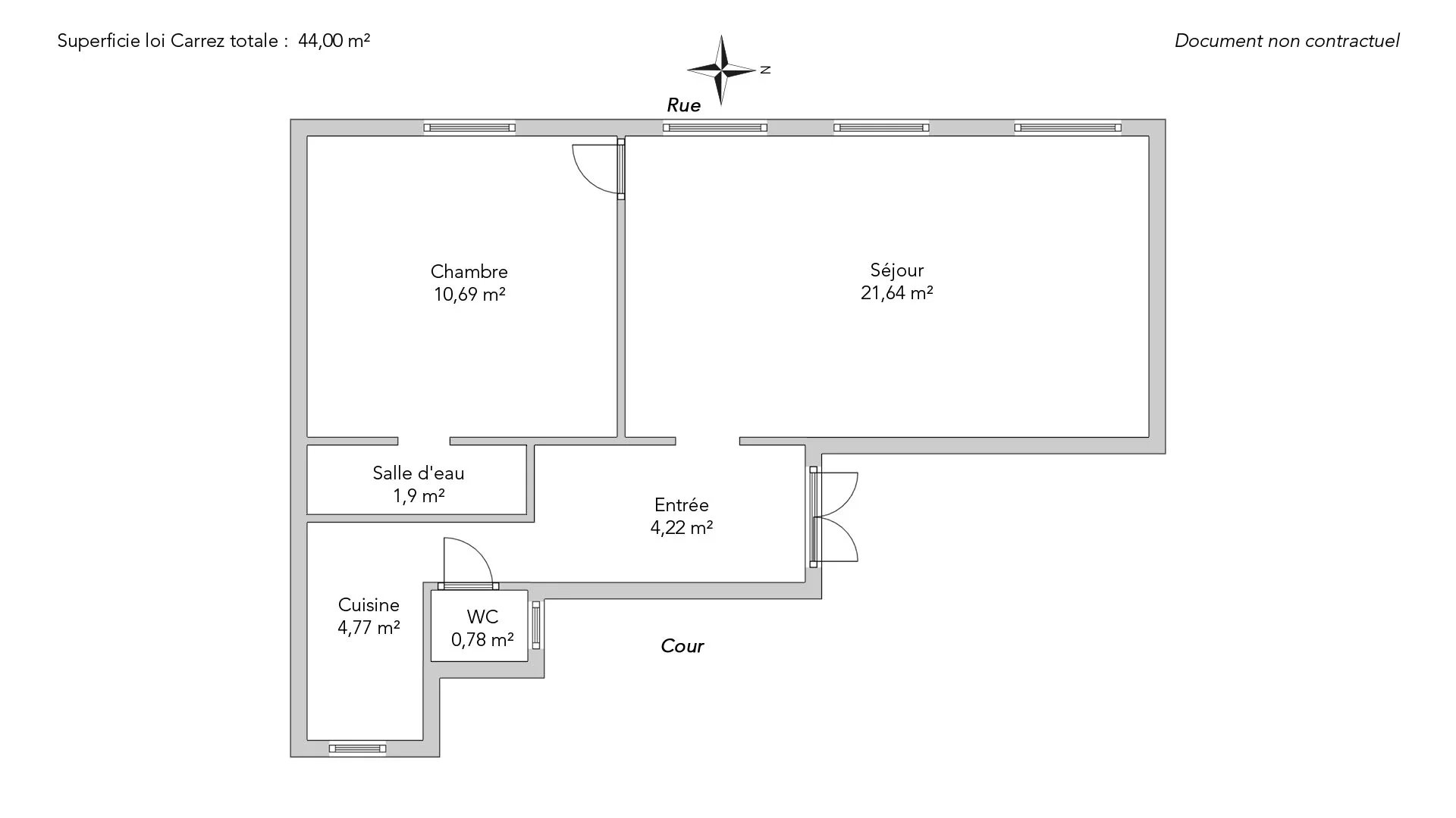
Doté de généreux volumes, son agencement parfaitement optimisé offre une entrée, un double séjour de 21,64m² ouvert à l'ouest sur la rue, une cuisine aménagée équipée sur une jolie courette, une confortable chambre agrémentée de placards et de la climatisation, une salle de douche attenante et des toilettes séparées.
Cette offre rare, proposée meublée, est idéale pour un pied-à-terre.
- Habitable : 44,00 m²
- 2 pièces
- 1 chambre
- 1 salle de douche
- Étage 1/6
- Exposition Ouest
- Neuf
- Meublé
Ce qui nous séduit
- Adresse très recherchée
- Gardien
- Lumineux
- Traversant
- Ascenseur
On vous en dit plus
Réglementations & éléments financiers
Les informations sur les risques auxquels ce bien est exposé sont disponibles sur le site Géorisques : www.georisques.gouv.fr
| Diagnostics |
|---|
Consommation énergie finale : C - 118 kWh/m²/an.
Montant estimé des dépenses annuelles d’énergie pour un usage standard : entre 950,00 € et 1 350,00 € /an (abonnement compris).
Prix moyen des énergies indexées au 01/01/2021.
| Éléments financiers |
|---|
Taxe foncière : 1 112,00 € /an
Détails de l’intérieur & de l’extérieur
| Pièce | Surface | Détail |
|---|---|---|
| 1x Entrée | 4.22 m² | Étage : 1er |
| 1x Double réception | 21.64 m² | Étage : 1er |
| 1x Cuisine | 4.77 m² | Étage : 1er |
| 1x Chambre | 10.69 m² | Étage : 1er |
| 1x Salle de douche | 1.9 m² | Étage : 1er |
| 1x Toilettes | 0.78 m² | Étage : 1er |
Prestations
Bâtiment & Copropriété
| Bâtiment |
|---|
-
Construit en : 1880
-
Type : Pierre de taille
-
Nombre d'étages : 6
| Copropriété |
|---|
30 lots d'habitation
Montant moyen annuel de la quote part de charges courantes : 2 100 €
Procédure en cours : Non
Rencontrez votre agence
Simulateur de financement
Calculez le montant des mensualités de votre prêt immobilier correspondant à l'emprunt que vous souhaitez effectuer.
Prix du bien HAI
825 000 €
€
par mois
Vous devez vendre pour acheter ?
Nos consultants immobiliers se tiennent à votre disposition pour réaliser une estimation de la valeur de votre bien. Toutes nos estimations sont offertes.
Je fais estimer mon bienUn lieu de vie à votre image
Junot vous fait visiter les quartiers dans lesquels nos agences vous accueillent, et vous présente les spécificités et bonnes adresses.
Parcourir les quartiers











