Faisons un tour d'horizon
Référence de l’annonce : 3334ABBLEV
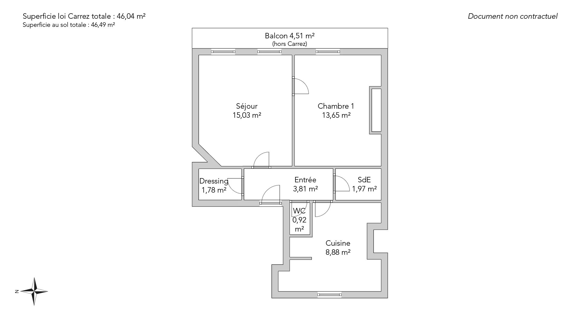
Au sein d'un immeuble en pierre de taille, ce charmant deux pièces de 46.49m² au sol (dont 46,04m² loi Carrez) situé au cinquième étage par ascenseur séduit par sa lumière, son plan harmonieux et une vue dégagée.
Exposé plein est, l’appartement profite d’une belle lumière et d'une rénovation de qualité tout en ayant préservé le charme de l'ancien.
Il s’ouvre sur un séjour avec balcon, une grande cuisine indépendante aux volumes généreux, une chambre, une salle de douche et des toilettes séparées.
Une cave complète ce bien.
EXCLUSIVITÉ.
- Habitable : 46,04 m² Total : 46,49 m²
- 2 pièces
- 1 chambre
- 1 salle de douche
- Étage 5/6
- Exposition Est
- Bon état
Ce qui nous séduit
- Balcon/Terrasse
- Traversant
- Ascenseur
- Cave
- Vue dégagée
On vous en dit plus
Réglementations & éléments financiers
Les informations sur les risques auxquels ce bien est exposé sont disponibles sur le site Géorisques : www.georisques.gouv.fr
| Diagnostics |
|---|
Consommation énergie finale : C - 146 kWh/m²/an.
Logement à consommation énergétique excessive : classe F
Montant estimé des dépenses annuelles d’énergie pour un usage standard : entre 1 220,00 € et 1 690,00 € /an (abonnement compris).
| Éléments financiers |
|---|
Taxe foncière : 648,00 € /an
Détails de l’intérieur & de l’extérieur
| Pièce | Surface | Détail |
|---|---|---|
| 1x Cave | ||
| 1x Entrée | 3.81 m² |
Étage : 5ème Revêtement : Parquet |
| 1x Dressing | 1.78 m² | Étage : 5ème |
| 1x Séjour | 15.03 m² |
Étage : 5ème Exposition : Est Revêtement : Parquet |
| 1x Chambre | 13.65 m² |
Étage : 5ème Revêtement : Parquet |
| 1x Cuisine | 8.88 m² |
Étage : 5ème Revêtement : Carrelage |
| 1x Salle de douche | 1.97 m² |
Étage : 5ème Revêtement : Carreau ciment |
| 1x Toilettes | 0.92 m² | Étage : 5ème |
| 1x Balcon | 4.51 m² |
Étage : 5ème Exposition : Est |
Prestations
Bâtiment & Copropriété
| Bâtiment |
|---|
-
Construit en : 1850
-
Type : Pierre de taille
-
Nombre d'étages : 6
| Copropriété |
|---|
Montant moyen annuel de la quote part de charges courantes : 1 780 €
Procédure en cours : Non
Rencontrez votre agence
Simulateur de financement
Calculez le montant des mensualités de votre prêt immobilier correspondant à l'emprunt que vous souhaitez effectuer.
Prix du bien HAI
500 000 €
€
par mois
Vous devez vendre pour acheter ?
Nos consultants immobiliers se tiennent à votre disposition pour réaliser une estimation de la valeur de votre bien. Toutes nos estimations sont offertes.
Je fais estimer mon bienUn lieu de vie à votre image
Junot vous fait visiter les quartiers dans lesquels nos agences vous accueillent, et vous présente les spécificités et bonnes adresses.
Parcourir les quartiers











