Faisons un tour d'horizon
Référence de l’annonce : 5735JASHEN
Idéalement situé à l’angle de la rue Alfred Laurant et de la rue Escudier, au cœur de Boulogne Nord, cet élégant appartement de deux pièces au premier étage bénéficie d’une luminosité exceptionnelle grâce à sa double exposition sud et ouest.
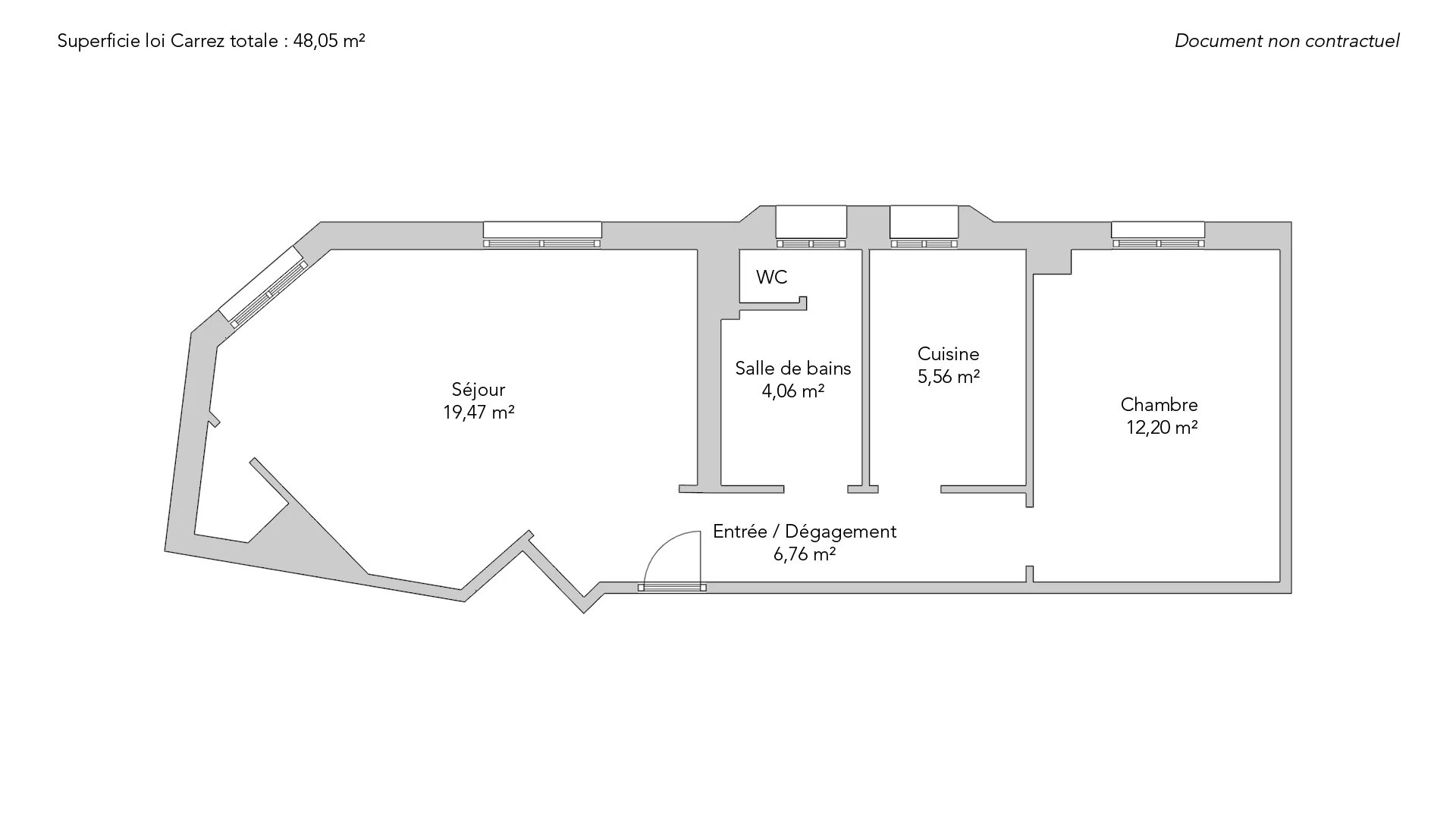
D'une superficie de 48,05m² loi Carrez, il comprend une entrée, un vaste séjour-salle à manger baigné de lumière, une cuisine séparée et entièrement équipée, une grande chambre ainsi qu'une salle de bains avec toilettes.
À deux pas des commerces, des transports et de toutes les commodités, cet appartement offre un cadre de vie à la fois dynamique et paisible, idéal pour une résidence principale ou un pied-à-terre.
EXCLUSIVITÉ
- Habitable : 48,05 m²
- 2 pièces
- 1 chambre
- 1 salle de bains
- Exposition Ouest, Sud
- Bon état
Ce qui nous séduit
- Adresse très recherchée
- Lumineux
- Calme
- Traversant
- Ascenseur
On vous en dit plus
Réglementations & éléments financiers
Les informations sur les risques auxquels ce bien est exposé sont disponibles sur le site Géorisques : www.georisques.gouv.fr
| Diagnostics |
|---|
Consommation énergie finale : D - 242 kWh/m²/an.
Montant estimé des dépenses annuelles d’énergie pour un usage standard : entre 1 230,00 € et 1 680,00 € /an (abonnement compris).
Prix moyen des énergies indexées au 01/01/2021.
| Éléments financiers |
|---|
Détails de l’intérieur & de l’extérieur
| Pièce | Surface | Détail |
|---|---|---|
| 1x Entrée | 6.76 m² | Étage : 1er |
| 1x Séjour | 19.47 m² | Étage : 1er |
| 1x Cuisine | 5.56 m² | Étage : 1er |
| 1x Chambre | 12.2 m² | Étage : 1er |
| 1x Salle de bains / toilettes | 4.06 m² | Étage : 1er |
Prestations
Bâtiment & Copropriété
| Bâtiment |
|---|
-
Construit en : 1930
-
Niveau de qualité : Standing
| Copropriété |
|---|
31 lots d'habitation
Montant moyen annuel de la quote part de charges courantes : 2 400 €
Procédure en cours : Non
Rencontrez votre agence
Simulateur de financement
Calculez le montant des mensualités de votre prêt immobilier correspondant à l'emprunt que vous souhaitez effectuer.
Prix du bien HAI
450 000 €
€
par mois
Vous devez vendre pour acheter ?
Nos consultants immobiliers se tiennent à votre disposition pour réaliser une estimation de la valeur de votre bien. Toutes nos estimations sont offertes.
Je fais estimer mon bienUn lieu de vie à votre image
Junot vous fait visiter les quartiers dans lesquels nos agences vous accueillent, et vous présente les spécificités et bonnes adresses.
Parcourir les quartiers













