Faisons un tour d'horizon
Référence de l’annonce : 2836WAGBOU
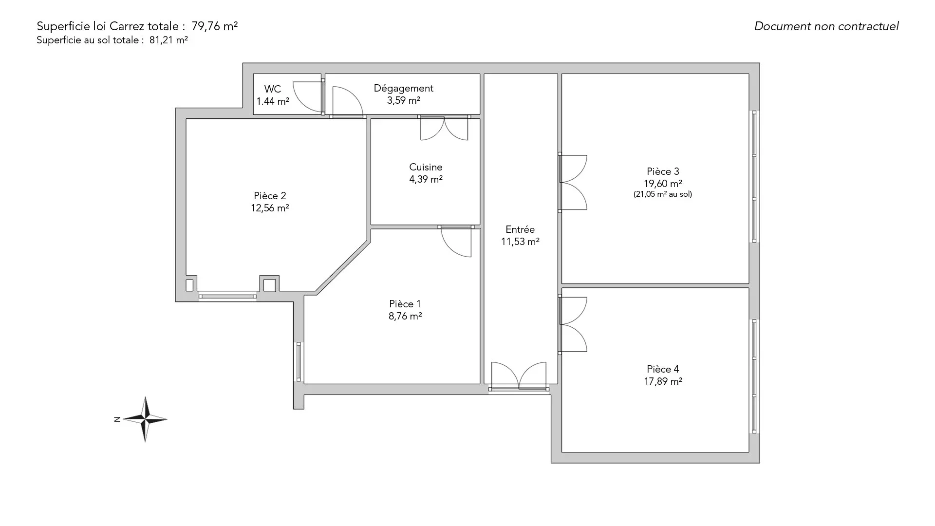
Boulevard Pereire, au sein d’un bel immeuble ancien pierre de taille avec gardienne à demeure, cet appartement de 79,76m² loi Carrez se situe au rez-de-chaussée sur rue.
L’entrée ouvre sur deux grandes pièces pouvant servir de bureaux ou de séjour avec une belle hauteur sous plafond et une très belle luminosité grâce à son exposition sud et sa vue dégagée sur la promenade Pereire, deux autres bureaux ou chambres sur cour, une cuisine et des toilettes séparées. Charme de l'ancien préservé (parquet, moulures, cheminée).
Une cave complète ce bien.
Idéal pour professions libérales à une belle adresse.
- Habitable : 79,76 m² Total : 81,21 m²
- 4 pièces
- suite
- Cheminée
- Exposition Sud
- À rafraîchir
Ce qui nous séduit
- Adresse très recherchée
- Gardien
- Lumineux
- Calme
- Traversant
- Ascenseur
- Cave
- Vue dégagée
On vous en dit plus
Réglementations & éléments financiers
Les informations sur les risques auxquels ce bien est exposé sont disponibles sur le site Géorisques : www.georisques.gouv.fr
| Diagnostics |
|---|
Consommation énergie finale : E - 286 kWh/m²/an.
Montant estimé des dépenses annuelles d’énergie pour un usage standard : entre 1 870,00 € et 2 540,00 € /an (abonnement compris).
Prix moyen des énergies indexées au 01/01/2023.
| Éléments financiers |
|---|
Taxe foncière : 1 205,00 € /an
Détails de l’intérieur & de l’extérieur
| Pièce | Surface | Détail |
|---|---|---|
| 1x Cave | 8.15 m² | Étage : Sous-sol |
| 1x Entrée | 11.53 m² | Étage : Rez-de-chaussée |
| 1x Bureau | 8.76 m² | Étage : Rez-de-chaussée |
| 1x Dégagement | 3.59 m² | Étage : Rez-de-chaussée |
| 1x Cuisine | 4.39 m² | Étage : Rez-de-chaussée |
| 1x Bureau | 12.56 m² | Étage : Rez-de-chaussée |
| 1x Toilettes | 1.44 m² | Étage : Rez-de-chaussée |
| 1x Bureau | 19.6 m² | Étage : Rez-de-chaussée |
| 1x Bureau | 17.89 m² | Étage : Rez-de-chaussée |
Prestations
Bâtiment & Copropriété
| Bâtiment |
|---|
-
Construit en : 1915
-
Nombre d'étages : 7
| Copropriété |
|---|
62 lots d'habitation
Montant moyen annuel de la quote part de charges courantes : 4 967 €
Procédure en cours : Non
Rencontrez votre agence
Simulateur de financement
Calculez le montant des mensualités de votre prêt immobilier correspondant à l'emprunt que vous souhaitez effectuer.
Prix du bien HAI
850 000 €
€
par mois
Vous devez vendre pour acheter ?
Nos consultants immobiliers se tiennent à votre disposition pour réaliser une estimation de la valeur de votre bien. Toutes nos estimations sont offertes.
Je fais estimer mon bienUn lieu de vie à votre image
Junot vous fait visiter les quartiers dans lesquels nos agences vous accueillent, et vous présente les spécificités et bonnes adresses.
Parcourir les quartiers












