Faisons un tour d'horizon
Référence de l’annonce : 2856WAGMBK
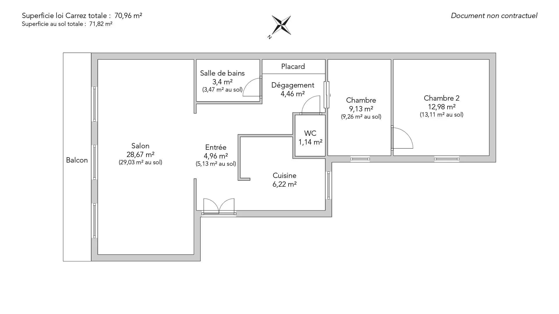
Rue Laugier, à proximité immédiate des transports et du marché Poncelet, au deuxième étage par ascenseur d'un bel immeuble haussmannien, nous vous proposons un charmant appartement de 71m² loi Carrez.
Avec un plan optimisé, cet appartement traversant, en bon état, s'ouvre sur une entrée, un double séjour donnant sur un balcon, une cuisine semi-ouverte et équipée, deux chambres sur cour, une salle de douche et des toilettes séparés.
Vous serez séduits par l'optimisation du plan, les nombreux rangements et le charme de l'ancien préservé (parquet, moulures, cheminées).
Une cave complète ce bien.
Possibilité d'acquérir une place de parking en supplément situé rue Poncelet au -2.
EXCLUSIVITÉ.
- Habitable : 70,96 m² Total : 71,82 m²
- 3 pièces
- 2 chambres
- 1 salle de douche
- Étage 2/6
- Cheminée
- Exposition Nord-est
- Bon état
Ce qui nous séduit
- Balcon/Terrasse
- Adresse très recherchée
- Calme
- Traversant
- Parking
- Ascenseur
- Cave
On vous en dit plus
Réglementations & éléments financiers
Les informations sur les risques auxquels ce bien est exposé sont disponibles sur le site Géorisques : www.georisques.gouv.fr
| Diagnostics |
|---|
Consommation énergie finale : E - 269 kWh/m²/an.
Montant estimé des dépenses annuelles d’énergie pour un usage standard : entre 1 740,00 € et 2 420,00 € /an (abonnement compris).
Prix moyen des énergies indexées au 01/01/2023.
| Éléments financiers |
|---|
Taxe foncière : 1 584,00 € /an
Détails de l’intérieur & de l’extérieur
| Pièce | Surface | Détail |
|---|---|---|
| 1x Entrée | ||
| 1x Séjour | ||
| 1x Cuisine | ||
| 1x Salle de douche | ||
| 1x Toilettes | ||
| 2x Chambre | ||
| 1x Cave | ||
| 1x Parking | ||
| 1x Balcon | 2 m² |
Prestations
Bâtiment & Copropriété
| Bâtiment |
|---|
-
Construit en : 1870
-
Nombre d'étages : 6
| Copropriété |
|---|
21 lots d'habitation
Montant moyen annuel de la quote part de charges courantes : 2 400 €
Procédure en cours : Non
Rencontrez votre agence
Simulateur de financement
Calculez le montant des mensualités de votre prêt immobilier correspondant à l'emprunt que vous souhaitez effectuer.
Prix du bien HAI
950 000 €
€
par mois
Vous devez vendre pour acheter ?
Nos consultants immobiliers se tiennent à votre disposition pour réaliser une estimation de la valeur de votre bien. Toutes nos estimations sont offertes.
Je fais estimer mon bienUn lieu de vie à votre image
Junot vous fait visiter les quartiers dans lesquels nos agences vous accueillent, et vous présente les spécificités et bonnes adresses.
Parcourir les quartiers









