Faisons un tour d'horizon
Référence de l’annonce : 1920VHUVER
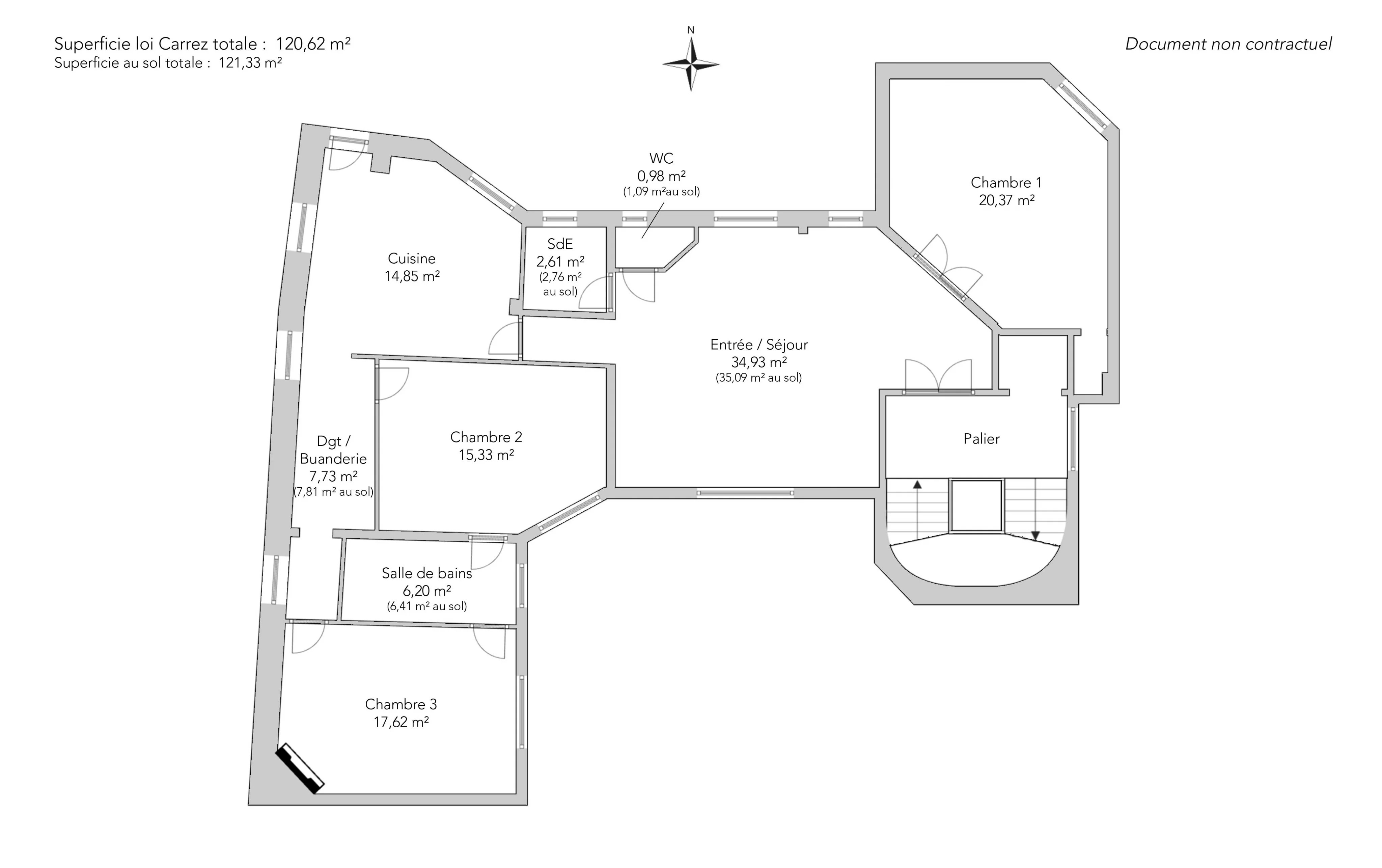
C'est au cinquième étage par ascenseur d'une emblématique copropriété de 1930 parfaitement tenue, au cœur du quartier Saint-James, que se trouve ce bel appartement familial de 120,62m² loi Carrez.
Rénové récemment avec des matériaux de grande qualité, il comprend une entrée desservant une chambre parentale, une salle de douche et un salon avec une vue dégagée plein sud et, en majesté, la tour Eiffel. La cuisine dînatoire est attenante. Deux grandes chambres d'enfants se partagent une salle de bains avec toilettes.
Appartement au charme fou, à 3 minutes de la ligne 1, station Pont de Neuilly, à voir.
Une cave complète ce bien.
EXCLUSIVITÉ.
- Habitable : 120,62 m² Total : 121,33 m²
- 4 pièces
- 3 chambres
- 1 salle de bains
- 1 salle de douche
- Étage 5/6
- Exposition Sud
- Excellent état
Ce qui nous séduit
- Vue exceptionnelle
- Gardien
- Vue monument historique
- Lumineux
- Calme
- Ascenseur
- Cave
- Vue dégagée
On vous en dit plus
Réglementations & éléments financiers
Les informations sur les risques auxquels ce bien est exposé sont disponibles sur le site Géorisques : www.georisques.gouv.fr
| Diagnostics |
|---|
Consommation énergie finale : D - 235 kWh/m²/an.
Montant estimé des dépenses annuelles d’énergie pour un usage standard : entre 1 810,00 € et 2 460,00 € /an (abonnement compris).
Prix moyen des énergies indexées au 01/01/2021.
| Éléments financiers |
|---|
Taxe foncière : 1 557,00 € /an
Détails de l’intérieur & de l’extérieur
| Pièce | Surface | Détail |
|---|---|---|
| 1x Cave | ||
| 1x Séjour | 34.93 m² |
Étage : 5ème Exposition : Sud Revêtement : Parquet |
| 1x Chambre de maître | 20.37 m² |
Étage : 5ème Revêtement : Parquet |
| 1x Chambre | 15.33 m² |
Étage : 5ème Revêtement : Parquet |
| 1x Dégagement | 7.73 m² |
Étage : 5ème Revêtement : Parquet |
| 1x Cuisine équipée | 14.85 m² |
Étage : 5ème Revêtement : Carrelage |
| 1x Salle de douche | 2.61 m² |
Étage : 5ème Revêtement : Carrelage |
| 1x Salle de bains / toilettes | 6.2 m² |
Étage : 5ème Revêtement : Carrelage |
| 1x Toilettes | 0.98 m² | Étage : 5ème |
| 1x Chambre | 17.62 m² |
Étage : 5ème Revêtement : Parquet |
Prestations
Bâtiment & Copropriété
| Bâtiment |
|---|
-
Construit en : 1930
-
Type : Brique
-
Nombre d'étages : 6
| Copropriété |
|---|
Montant moyen annuel de la quote part de charges courantes : 4 860 €
Procédure en cours : Non
Rencontrez votre agence
Simulateur de financement
Calculez le montant des mensualités de votre prêt immobilier correspondant à l'emprunt que vous souhaitez effectuer.
Prix du bien HAI
1 560 000 €
€
par mois
Vous devez vendre pour acheter ?
Nos consultants immobiliers se tiennent à votre disposition pour réaliser une estimation de la valeur de votre bien. Toutes nos estimations sont offertes.
Je fais estimer mon bienUn lieu de vie à votre image
Junot vous fait visiter les quartiers dans lesquels nos agences vous accueillent, et vous présente les spécificités et bonnes adresses.
Parcourir les quartiers












