Faisons un tour d'horizon
Référence de l’annonce : 2904TERLAL
À deux pas du Parc Monceau, appartement avec terrasse à rénover.
Idéalement situé à proximité immédiate du Parc Monceau, au 5ᵉ étage d’un immeuble récent de bon standing avec gardien à demeure, cet appartement de 88,6 m² loi Carrez séduit par sa luminosité, ses volumes et son immense espace extérieur.
Bénéficiant d’une exposition sud-ouest, le séjour s’ouvre sur cette grande terrasse de 56 m², offrant une vue dégagée avec perspective sur la Tour Eiffel, rare dans ce secteur recherché.
L’appartement, entièrement à rénover, constitue une opportunité unique de créer un lieu de vie sur mesure, au calme et baigné de lumière, dans l’un des quartiers les plus prisés de l’ouest parisien.
Une adresse de premier ordre, un étage élevé, un extérieur généreux et un fort potentiel patrimonial font de ce bien une opportunité rare.
Une cave complète ce bien.
Un parking dans l'immeuble est vendu en sus.
EXCLUSIVITÉ
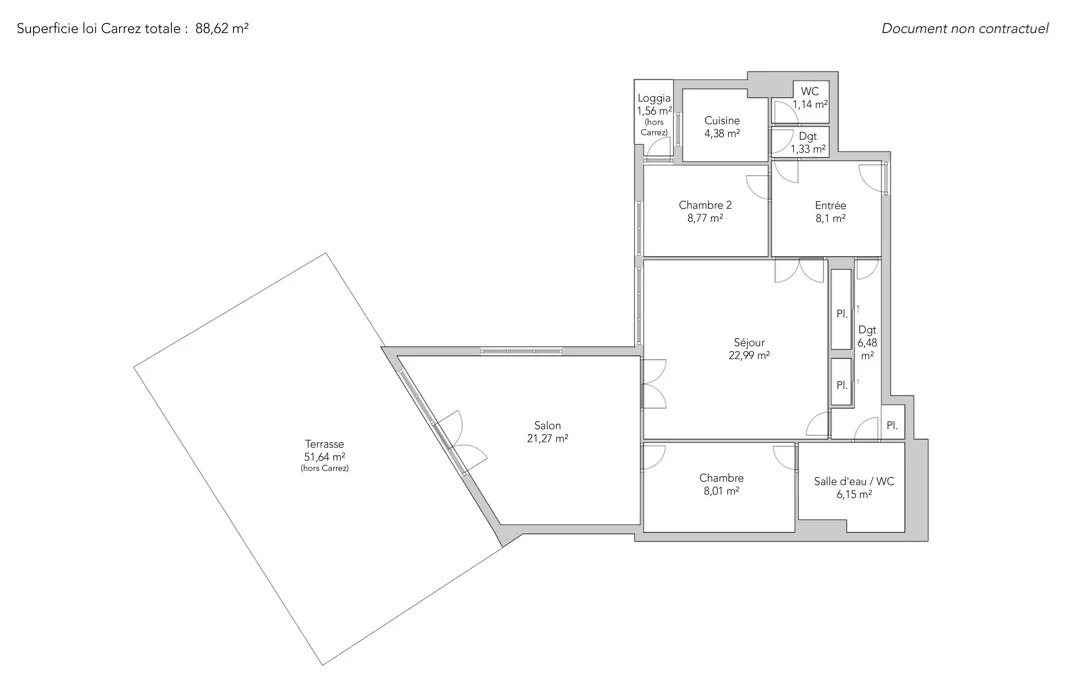
- Habitable : 88,62 m²
- 3 pièces
- 2 chambres
- 1 salle de bains
- Exposition Sud-ouest
- À rénover
Ce qui nous séduit
- Balcon/Terrasse
- Adresse très recherchée
- Gardien
- Parking
- Ascenseur
- Cave
On vous en dit plus
Réglementations & éléments financiers
Les informations sur les risques auxquels ce bien est exposé sont disponibles sur le site Géorisques : www.georisques.gouv.fr
| Diagnostics |
|---|
Consommation énergie finale : E - 268 kWh/m²/an.
Montant estimé des dépenses annuelles d’énergie pour un usage standard : entre 1 930,00 € et 2 620,00 € /an (abonnement compris).
Prix moyen des énergies indexées au 01/01/2021.
| Éléments financiers |
|---|
Taxe foncière : 1 257,00 € /an
Détails de l’intérieur & de l’extérieur
| Pièce | Surface | Détail |
|---|---|---|
| 1x Entrée | 8.1 m² | |
| 1x Séjour | 22.99 m² | |
| 1x Dégagement | 6.48 m² | |
| 1x Salle de bains / toilettes | 6.15 m² | |
| 1x Chambre | 8.01 m² | |
| 1x Salon | 21.27 m² | |
| 1x Chambre | 8.77 m² | |
| 1x Cuisine | 4.38 m² | |
| 1x Toilettes | 1.14 m² | |
| 1x Dégagement | 1.33 m² | |
| 1x Cave | ||
| 1x Parking | ||
| 1x Terrasse |
Prestations
Bâtiment & Copropriété
| Bâtiment |
|---|
-
Construit en : 1963
| Copropriété |
|---|
Montant moyen annuel de la quote part de charges courantes : 5 028 €
Procédure en cours : Non
Rencontrez votre agence
Simulateur de financement
Calculez le montant des mensualités de votre prêt immobilier correspondant à l'emprunt que vous souhaitez effectuer.
Prix du bien HAI
1 190 000 €
€
par mois
Vous devez vendre pour acheter ?
Nos consultants immobiliers se tiennent à votre disposition pour réaliser une estimation de la valeur de votre bien. Toutes nos estimations sont offertes.
Je fais estimer mon bienUn lieu de vie à votre image
Junot vous fait visiter les quartiers dans lesquels nos agences vous accueillent, et vous présente les spécificités et bonnes adresses.
Parcourir les quartiers












