Faisons un tour d'horizon
Référence de l’annonce : 2893WAGBOU
Avenue Niel, à proximité immédiate des transports et commerces.
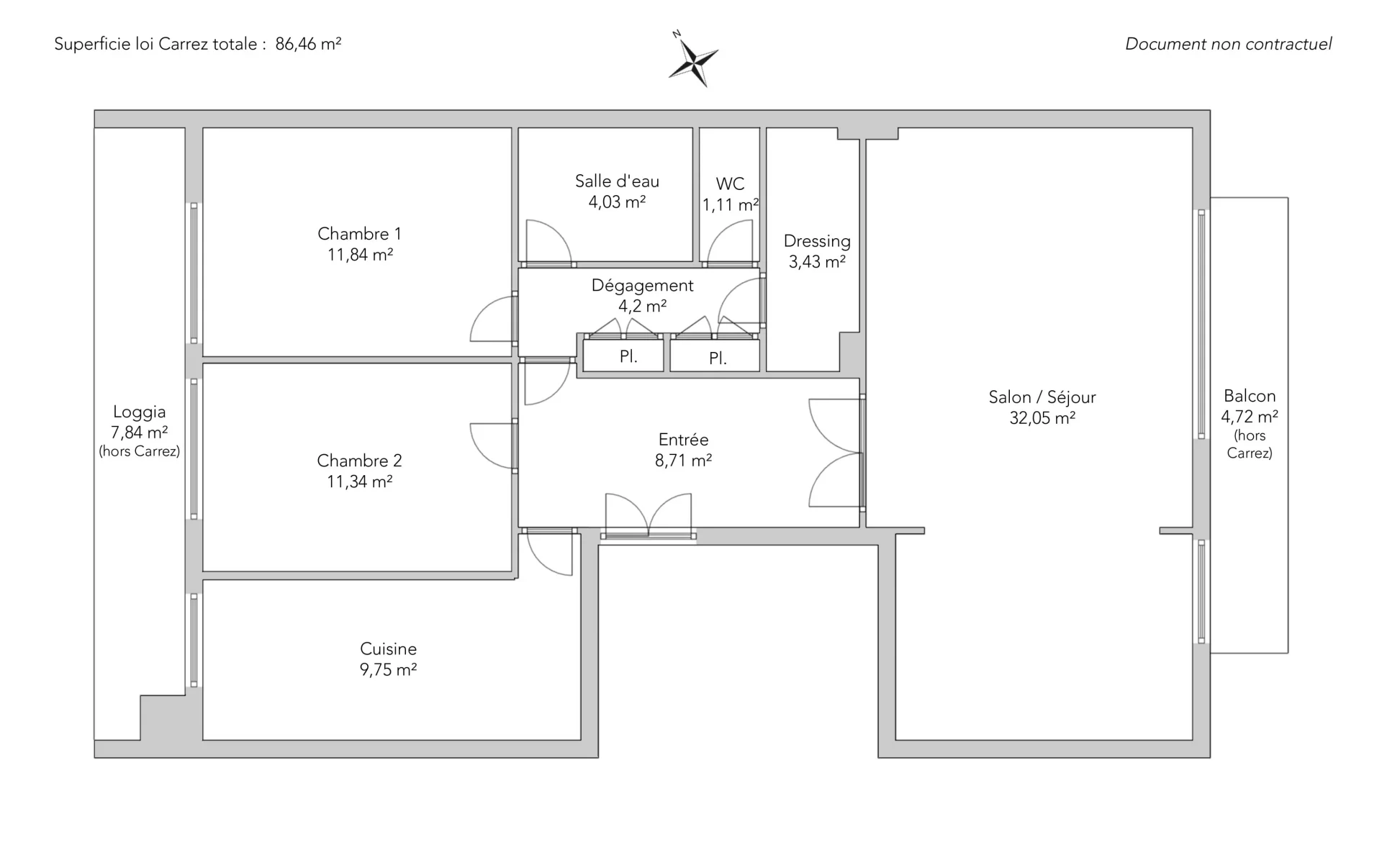
Dans un immeuble récent entretenu, nous vous proposons un bel appartement de 86,46m² loi Carrez au troisième étage par ascenseur.
À rénover, le plan traversant propose une entrée, un double séjour exposé sud-est donnant sur un balcon filant de 4,72m², deux chambres et une cuisine sur cour ouvrant sur un large balcon de 7,84m² à la vue dégagée et arborée, une salle de bains, un grand dressing et des toilettes séparées.
Une cave complète ce bien.
Possibilité d'acquérir en supplément une place de parking directement accessible dans l'immeuble.
Bien à fort potentiel après rénovation.
- Habitable : 86,46 m²
- 4 pièces
- 2 chambres
- 1 salle de bains
- Étage 3/8
- Exposition Sud-est
- À rénover
Ce qui nous séduit
- Balcon/Terrasse
- Adresse très recherchée
- Lumineux
- Calme
- Traversant
- Parking
- Ascenseur
- Cave
On vous en dit plus
Réglementations & éléments financiers
Les informations sur les risques auxquels ce bien est exposé sont disponibles sur le site Géorisques : www.georisques.gouv.fr
| Diagnostics |
|---|
Consommation énergie finale : B - 106 kWh/m²/an.
Montant estimé des dépenses annuelles d’énergie pour un usage standard : entre 1 630,00 € et 2 260,00 € /an (abonnement compris).
Prix moyen des énergies indexées au 01/01/2023.
| Éléments financiers |
|---|
Détails de l’intérieur & de l’extérieur
| Pièce | Surface | Détail |
|---|---|---|
| 1x Parking | ||
| 1x Cave | Étage : Sous-sol | |
| 1x Chambre | 11.84 m² | Étage : 3ème |
| 1x Chambre | 11.34 m² | Étage : 3ème |
| 1x Balcon | 4.72 m² | Étage : 3ème |
| 1x Balcon | 7.84 m² | Étage : 3ème |
| 1x Cuisine | 9.75 m² | Étage : 3ème |
| 1x Salle de bains | 4.03 m² | Étage : 3ème |
| 1x Toilettes | 1.11 m² | Étage : 3ème |
| 1x Dressing | 3.43 m² | Étage : 3ème |
| 1x Entrée | 8.71 m² | Étage : 3ème |
| 1x Dégagement | 4.2 m² | Étage : 3ème |
| 1x Séjour | 32.05 m² |
Étage : 3ème Exposition : Sud-est Plafond : 2.65m |
Prestations
Bâtiment & Copropriété
| Bâtiment |
|---|
-
Construit en : 1974
-
Nombre d'étages : 8
| Copropriété |
|---|
27 lots d'habitation
Montant moyen annuel de la quote part de charges courantes : 5 568 €
Procédure en cours : Non
Rencontrez votre agence
Simulateur de financement
Calculez le montant des mensualités de votre prêt immobilier correspondant à l'emprunt que vous souhaitez effectuer.
Prix du bien HAI
945 000 €
€
par mois
Vous devez vendre pour acheter ?
Nos consultants immobiliers se tiennent à votre disposition pour réaliser une estimation de la valeur de votre bien. Toutes nos estimations sont offertes.
Je fais estimer mon bienUn lieu de vie à votre image
Junot vous fait visiter les quartiers dans lesquels nos agences vous accueillent, et vous présente les spécificités et bonnes adresses.
Parcourir les quartiers










