Faisons un tour d'horizon
Référence de l’annonce : 5843JASPEI
Situé au sixième étage par ascenseur d’un bel immeuble des années 1930, cet appartement traversant d’une surface de 95,22m² loi Carrez bénéficie d’un emplacement privilégié à deux pas du métro.
Très lumineux et sublimé par le charme du style Art déco, il offre un double séjour traversant est/ouest qui ouvre sur un balcon à l’ouest. La cuisine ouverte apporte convivialité et fonctionnalité.
L’espace nuit comprend deux chambres en suite : l’une avec salle de bains et toilettes, l’autre avec salle de douche, ainsi que des toilettes invités.
De nombreux rangements et une cave complètent ce bien en bon état.
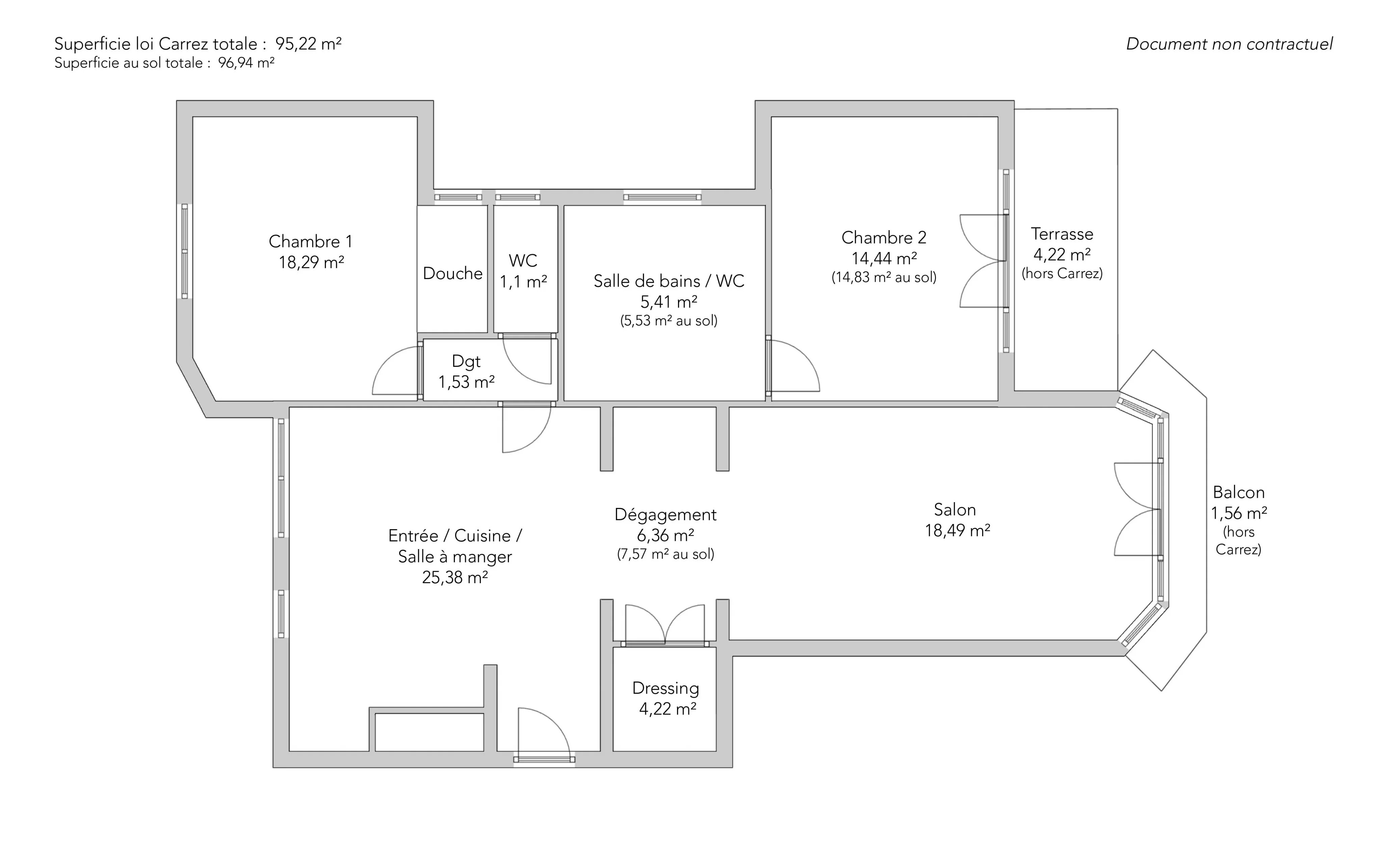
- Habitable : 95,22 m² Total : 102,72 m²
- 4 pièces
- 2 chambres
- 1 salle de bains
- Étage 6/8
- Exposition Est, Ouest
- Bon état
Ce qui nous séduit
- Balcon/Terrasse
- Gardien
- Ascenseur
- Cave
On vous en dit plus
Réglementations & éléments financiers
Les informations sur les risques auxquels ce bien est exposé sont disponibles sur le site Géorisques : www.georisques.gouv.fr
| Diagnostics |
|---|
Consommation énergie finale : E - 264 kWh/m²/an.
Montant estimé des dépenses annuelles d’énergie pour un usage standard : entre 2 350,00 € et 3 190,00 € /an (abonnement compris).
Prix moyen des énergies indexées au 01/01/2021.
| Éléments financiers |
|---|
Détails de l’intérieur & de l’extérieur
| Pièce | Surface | Détail |
|---|---|---|
| 1x Cave | ||
| 1x Terrasse | 4.22 m² | Étage : 6ème |
| 1x Balcon | 1.56 m² | Étage : 6ème |
| 1x Salon | 18.49 m² | Étage : 6ème |
| 1x Salle à manger/Cuisine | 25.38 m² | Étage : 6ème |
| 1x Chambre | 18.29 m² | Étage : 6ème |
| 1x Chambre | 14.44 m² | Étage : 6ème |
| 1x Dressing | 4.22 m² | Étage : 6ème |
| 1x Salle de bains / toilettes | 5.41 m² | Étage : 6ème |
| 1x Toilettes | 1.1 m² | Étage : 6ème |
| 1x Dégagement | 6.36 m² | Étage : 6ème |
| 1x Dégagement | 1.53 m² | Étage : 6ème |
Prestations
Bâtiment & Copropriété
| Bâtiment |
|---|
-
Construit en : 1930
-
Nombre d'étages : 8
| Copropriété |
|---|
111 lots d'habitation
Montant moyen annuel de la quote part de charges courantes : 4 836 €
Procédure en cours : Non
Rencontrez votre agence
Simulateur de financement
Calculez le montant des mensualités de votre prêt immobilier correspondant à l'emprunt que vous souhaitez effectuer.
Prix du bien HAI
1 250 000 €
€
par mois
Vous devez vendre pour acheter ?
Nos consultants immobiliers se tiennent à votre disposition pour réaliser une estimation de la valeur de votre bien. Toutes nos estimations sont offertes.
Je fais estimer mon bienUn lieu de vie à votre image
Junot vous fait visiter les quartiers dans lesquels nos agences vous accueillent, et vous présente les spécificités et bonnes adresses.
Parcourir les quartiers










