Faisons un tour d'horizon
Référence de l’annonce : 1176POIFAS09
À la lisière des 9e et 10e arrondissements, rue du Faubourg Poissonnière, au cinquième et dernier étage d’un immeuble ancien, appartement traversant baigné de lumière, entièrement au calme sur cour.
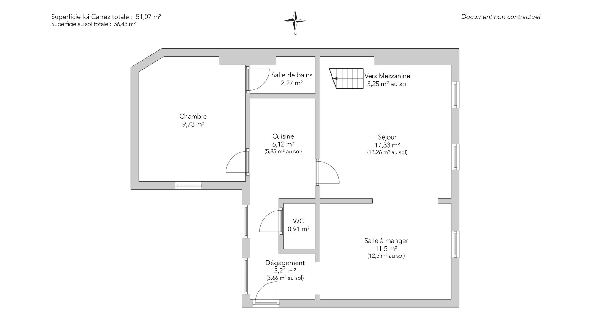
Il comprend une entrée, un séjour avec mezzanine bénéficiant de beaux volumes (jusqu’à 3,5m de hauteur sous plafond) avec une salle à manger attenante, une cuisine indépendante, une chambre, une salle de douche et de toilettes séparées. Le plan est modulable et permet facilement la création d’une seconde chambre.
Traversant est-ouest, ce bien profite d’une vue dégagée sans vis-à-vis et conserve le charme de l’ancien. L’organisation est fluide et fonctionnelle.
Emplacements pour vélos dans l'immeuble et gardien à demeure.
- Habitable : 51,07 m² Total : 56,43 m²
- 3 pièces
- 1 chambre
- 1 salle de bains
- Étage 5/5
- Exposition Est, Nord, Ouest
- À rénover
Ce qui nous séduit
- Dernier étage
- Gardien
- Lumineux
- Calme
- Traversant
On vous en dit plus
Réglementations & éléments financiers
Les informations sur les risques auxquels ce bien est exposé sont disponibles sur le site Géorisques : www.georisques.gouv.fr
| Diagnostics |
|---|
Consommation énergie finale : F - 356 kWh/m²/an.
Logement à consommation énergétique excessive : classe G
Montant estimé des dépenses annuelles d’énergie pour un usage standard : entre 3 150,00 € et 4 280,00 € /an (abonnement compris).
Prix moyen des énergies indexées au 01/01/2023.
| Éléments financiers |
|---|
Taxe foncière : 961,00 € /an
Détails de l’intérieur & de l’extérieur
| Pièce | Surface | Détail |
|---|---|---|
| 1x Entrée | 3.21 m² |
Étage : 5ème Revêtement : Carrelage |
| 1x Séjour | 17.33 m² |
Étage : 5ème Revêtement : Parquet |
| 1x Salle à manger | 11.5 m² |
Étage : 5ème Revêtement : Parquet |
| 1x Cuisine | 6.12 m² |
Étage : 5ème Revêtement : Carrelage |
| 1x Chambre | 9.73 m² |
Étage : 5ème Revêtement : Parquet |
| 1x Salle de bains | 2.27 m² |
Étage : 5ème Revêtement : Carrelage |
| 1x Toilettes | 0.91 m² |
Étage : 5ème Revêtement : Carrelage |
| 1x Mezzanine | 3.25 m² | Étage : 6ème |
Prestations
Bâtiment & Copropriété
| Bâtiment |
|---|
-
Construit en : 1900
-
Type : Pierre de taille
-
Nombre d'étages : 5
| Copropriété |
|---|
43 lots d'habitation
Montant moyen annuel de la quote part de charges courantes : 1 424 €
Procédure en cours : Non
Rencontrez votre agence
Simulateur de financement
Calculez le montant des mensualités de votre prêt immobilier correspondant à l'emprunt que vous souhaitez effectuer.
Prix du bien HAI
535 000 €
€
par mois
Vous devez vendre pour acheter ?
Nos consultants immobiliers se tiennent à votre disposition pour réaliser une estimation de la valeur de votre bien. Toutes nos estimations sont offertes.
Je fais estimer mon bienUn lieu de vie à votre image
Junot vous fait visiter les quartiers dans lesquels nos agences vous accueillent, et vous présente les spécificités et bonnes adresses.
Parcourir les quartiers











