Let's take an overview
Ad reference : 3436MARLAC/2878WAG
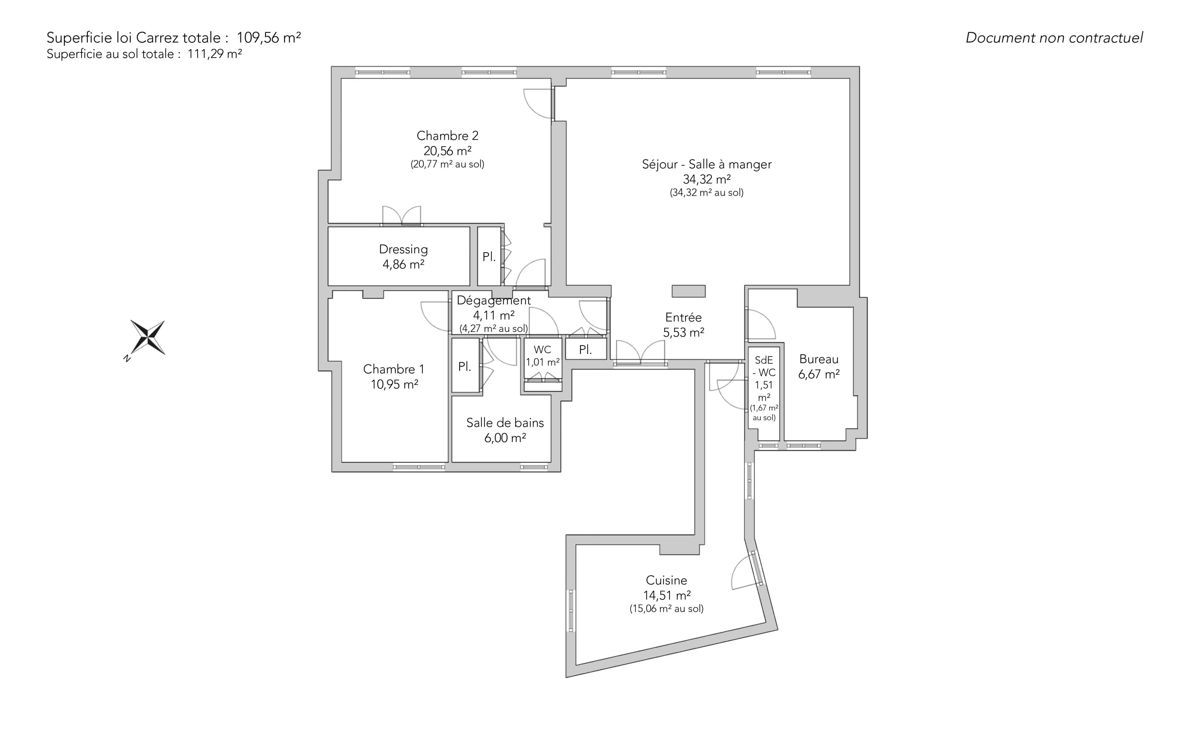
Close to Parc Monceau, shops and transport, in a quiet street on the fourth floor with elevator of a well-maintained freestone building, magnificent 109.56sqm (111.29sqm on the ground) walk-through apartment.
The only one on the first floor, it comprises an entrance hall with cupboards, a beautiful south-east-facing double living room with custom-made bookshelves, a large master bedroom with two windows and a large dressing room, a bedroom and a quiet office overlooking the courtyard, a bathroom, a shower room with toilet, a separate kitchen and independent toilet.
A cellar completes this offer. Permanent janitor.
Ronsard sectorization. Private schools EIB, Sainte-Ursule and Fénelon Sainte Marie.
EXCLUSIVE
- Habitable : 1 179,29 Sq Ft Total : 1 197,91 Sq Ft
- 5 rooms
- 2 bedrooms
- 1 bathroom
- 1 shower room
- Floor 4/6
- Orientation South East
- Excellent condition
What seduced us
- Guardian
- Luminous
- Calm
- Crossing
- Elevator
We say more
Regulations & financial information
Information on the risks to which this property is exposed is available on the Géorisques website. : www.georisques.gouv.fr
| Diagnostics |
|---|
Final energy consumption : D - 213 kWh/m²/an.
Estimated annual energy costs for standard use: between 2 270,00 € and 3 080,00 € /year (including subscription).
Average energy price indexed to 01/01/2021.
| Financial elements |
|---|
Property tax : 2 119,00 € /an
Interior & exterior details
| Room | Surface | Detail |
|---|---|---|
| 1x Double reception | 364.36 Sq Ft |
Exposure : South East Coating : Parquet |
| 1x Entrance | 59.52 Sq Ft |
Floor : 4th Coating : Parquet |
| 1x Kitchen | 156.18 Sq Ft |
Floor : 4th Coating : Floor tile |
| 1x Bedroom | 221.31 Sq Ft |
Floor : 4th Exposure : South East Coating : Parquet |
| 1x Bedroom | 117.86 Sq Ft |
Floor : 4th Coating : Parquet |
| 1x Desk | 71.8 Sq Ft |
Floor : 4th Coating : Parquet |
| 1x Shower room/toilet | 16.25 Sq Ft |
Floor : 4th Coating : Floor tile |
| 1x Bathroom | 64.58 Sq Ft |
Floor : 4th Coating : Floor tile |
| 1x Dressing room | 52.31 Sq Ft |
Floor : 4th Coating : Parquet |
| 1x Bathroom | 10.87 Sq Ft |
Floor : 4th Coating : Floor tile |
| 1x Clearance | 44.24 Sq Ft |
Floor : 4th Coating : Parquet |
Services
Building & Co-ownership
| Building |
|---|
-
Built in : 1890
-
Type : cut stone
-
Number of floors : 6
| Co-ownership |
|---|
23 housing lots
Average annual amount of the share of current charges : 4 628 €
Procedure in progress : Non
Meet your agency
Simulator financing
Calculate the amount of the monthly payments on your home loan corresponding to the loan you wish to make.
FAI property price
1 490 000 €
€
per month
Do you have to sell to buy?
Our real estate consultants are at your disposal to estimate the value of your property. All our estimates are free of charge.
Estimate my propertyA living space to suit you
Junot takes you on a tour of the neighborhoods in which our agencies welcome you, and presents the specific features and good addresses.
Explore the neighborhoods











