Let's take an overview
Ad reference : 3298BTLOUV
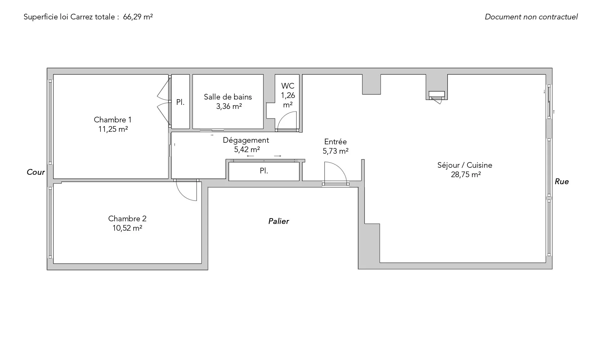
On the 3rd floor with elevator of a modern, secure, and high-standard residence, beautiful dual-aspect apartment of 66,29sqm.
The entrance opens on one side to the spacious living room with its open-plan kitchen, and on the other to the sleeping area.
The reception room overlooks the Canal Saint-Martin, and the large northwest-facing bay windows ensure constant brightness throughout the day.
On the night side: a bathroom, separate toilet, and two completely quiet bedrooms overlooking the residence’s garden.
The property is in good condition, peaceful, and enjoys an unobstructed view.
A cellar and a parking space complete this property. Caretaker in the building.
- Habitable : 713,54 Sq Ft
- 3 rooms
- 2 bedrooms
- 1 bathroom
- Floor 3/8
- Orientation South East, North West
- Good condition
What seduced us
- Calm
- Crossing
- Car park
- Elevator
- Cellar
- Open view
We say more
Regulations & financial information
Information on the risks to which this property is exposed is available on the Géorisques website. : www.georisques.gouv.fr
| Diagnostics |
|---|
Final energy consumption : C - 150.6 kWh/m²/an.
Estimated annual energy costs for standard use: between 930,00 € and 1 270,00 € /year (including subscription).
Average energy price indexed to 01/01/2021.
| Financial elements |
|---|
Property tax : 1 300,00 € /an
Interior & exterior details
| Room | Surface | Detail |
|---|---|---|
| 1x Cellar | Floor : 1 | |
| 1x Car park | Floor : 1 | |
| 1x Bathroom | 13.56 Sq Ft | Floor : 3rd |
| 1x Clearance | 58.34 Sq Ft | Floor : 3rd |
| 1x Living room/kitchen | 309.46 Sq Ft |
Floor : 3rd Ceiling : 2.4m |
| 1x Bedroom | 121.09 Sq Ft |
Floor : 3rd Ceiling : 2.4m |
| 1x Bedroom | 113.24 Sq Ft |
Floor : 3rd Ceiling : 2.4m |
| 1x Kitchen |
Floor : 3rd Ceiling : 2.4m |
|
| 1x Bathroom | 36.17 Sq Ft |
Floor : 3rd Ceiling : 2.4m |
| 1x Entrance | 61.68 Sq Ft |
Floor : 3rd Ceiling : 2.4m |
Services
Building & Co-ownership
| Building |
|---|
-
Built in : 1971
-
Type : Concrete
-
Number of floors : 8
-
Quality level : Normal
| Co-ownership |
|---|
420 housing lots
Average annual amount of the share of current charges : 3 200 €
Procedure in progress : Non
Meet your agency
Simulator financing
Calculate the amount of the monthly payments on your home loan corresponding to the loan you wish to make.
FAI property price
700 000 €
€
per month
Do you have to sell to buy?
Our real estate consultants are at your disposal to estimate the value of your property. All our estimates are free of charge.
Estimate my propertyA living space to suit you
Junot takes you on a tour of the neighborhoods in which our agencies welcome you, and presents the specific features and good addresses.
Explore the neighborhoods












