
Let's take an overview
Ad reference : 3281GREGEN
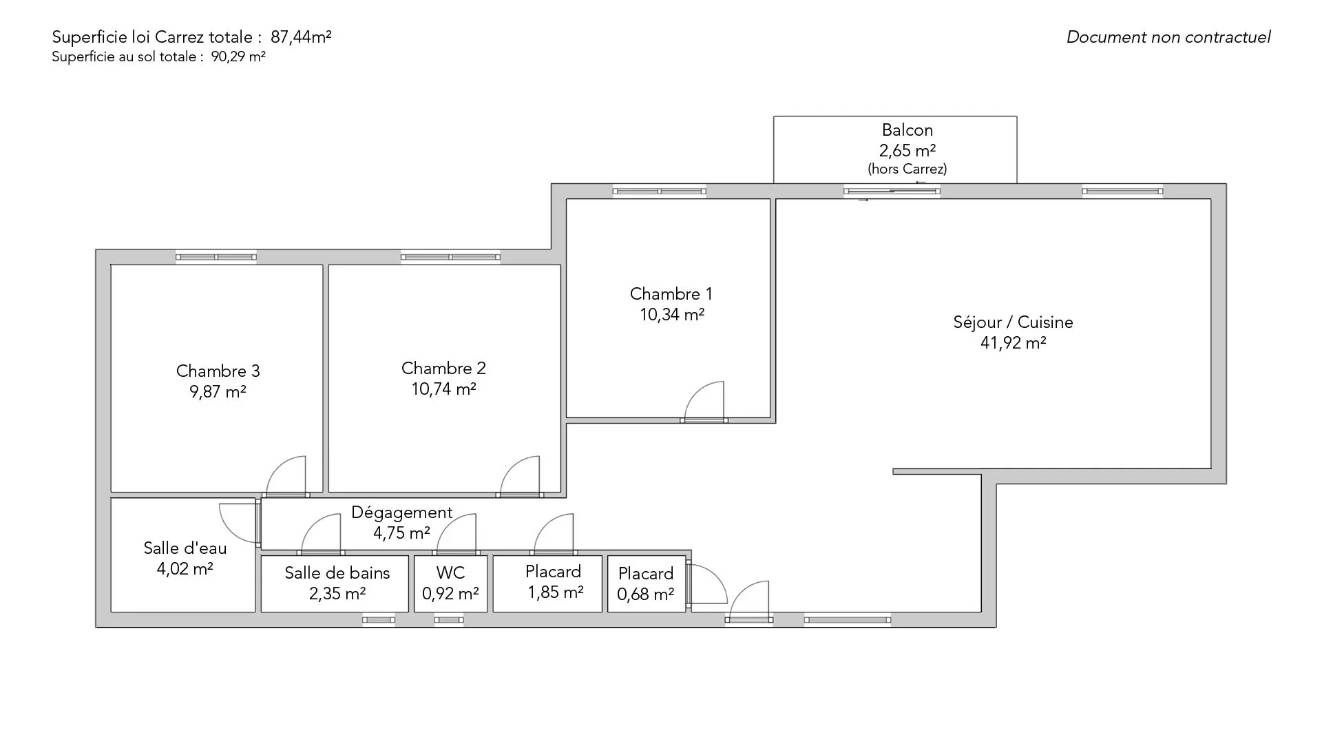
On the 8th floor by elevator of a 1958 luxury building with janitor, this superb 86.50sqm loi Carrez apartment with balcony offers beautiful unobstructed views.
It comprises an entrance hall, a beautiful living room with balcony and semi-open kitchen, three pleasant bedrooms, a bathroom as well as a shower room, storage and separate toilet.
This property is both quiet and sunny.
- Habitable : 941,20 Sq Ft
- 4 rooms
- 3 bedrooms
- 1 bathroom
- 1 shower room
- Floor 8/9
- Orientation South West
- Good condition
What seduced us
- Balcony/Terrace
- Guardian
- Historical monument view
- Luminous
- Calm
- Crossing
- Elevator
- Open view
We say more
Regulations & financial information
Information on the risks to which this property is exposed is available on the Géorisques website. : www.georisques.gouv.fr
Diagnostics |
---|
Final energy consumption : D - 237 kWh/m²/an.
Estimated annual energy costs for standard use: between 1 670,00 € and 2 310,00 € /year (including subscription).
Average energy price indexed to 01/01/2023.
Financial elements |
---|
Property tax : 1 710,00 € /an
Interior & exterior details
Room | Surface | Detail |
---|---|---|
1x Closet | 7.32 Sq Ft | |
1x Clearance | 51.13 Sq Ft | |
1x Living room/kitchen | 451.22 Sq Ft | Floor : 8th |
1x Balcony | Floor : 8th | |
1x Bedroom | 111.3 Sq Ft | Floor : 8th |
1x Bedroom | 115.6 Sq Ft | Floor : 8th |
1x Bedroom | 106.24 Sq Ft | Floor : 8th |
1x Bathroom | 9.9 Sq Ft | Floor : 8th |
1x Dressing room | 19.91 Sq Ft | Floor : 8th |
1x Bathroom | 25.3 Sq Ft | Floor : 8th |
1x Bathroom | 43.27 Sq Ft | Floor : 8th |
Services
Building & Co-ownership
Building |
---|
-
Built in : 1958
-
Number of floors : 9
Co-ownership |
---|
108 housing lots
Average annual amount of the share of current charges : 3 204 €
Procedure in progress : Non
Meet your agency

Simulator financing
Calculate the amount of the monthly payments on your home loan corresponding to the loan you wish to make.
FAI property price
1 190 000 €
€
per month
Do you have to sell to buy?
Our real estate consultants are at your disposal to estimate the value of your property. All our estimates are free of charge.
Estimate my propertyA living space to suit you
Junot takes you on a tour of the neighborhoods in which our agencies welcome you, and presents the specific features and good addresses.
Explore the neighborhoods