Let's take an overview
Ad reference : 2188PASCAS3
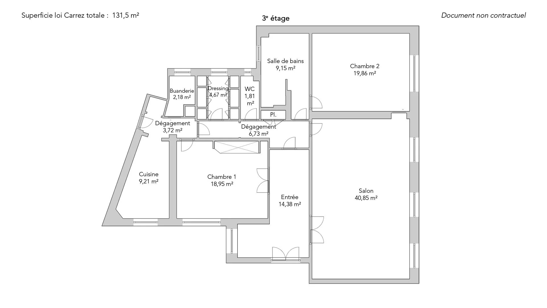
In an old stone building, this 131.51sqm Carrez apartment on the third floor with elevator boasts spacious rooms and preserved character.
It comprises an entrance hall, a double living room, a suite with bathroom, a second bedroom, a dressing room and a laundry room. A second bathroom is possible.
Old-world charm: parquet flooring, moldings, fireplaces and high ceilings.
A cellar completes this property.
Janitor on site.
- Habitable : 1 415,56 Sq Ft
- 4 rooms
- 2 bedrooms
- 1 bathroom
- Floor 3/6
- Fireplace
- Excellent condition
What seduced us
- Highly sought-after address
- Guardian
- Calm
- Crossing
- Elevator
- Cellar
We say more
Regulations & financial information
Information on the risks to which this property is exposed is available on the Géorisques website. : www.georisques.gouv.fr
| Diagnostics |
|---|
Final energy consumption : E - 305 kWh/m²/an.
Estimated annual energy costs for standard use: between 3 250,00 € and 4 410,00 € /year (including subscription).
Average energy price indexed to 01/01/2021.
| Financial elements |
|---|
Interior & exterior details
| Room | Surface | Detail |
|---|---|---|
| 1x Cellar | ||
| 1x Entrance | 154.78 Sq Ft | Floor : 3rd |
| 1x Stay | 439.71 Sq Ft | Floor : 3rd |
| 1x Kitchen | 99.14 Sq Ft | Floor : 3rd |
| 1x Bedroom | 213.77 Sq Ft | Floor : 3rd |
| 1x Bedroom | 203.98 Sq Ft | Floor : 3rd |
| 1x Dressing room | 50.27 Sq Ft | Floor : 3rd |
| 1x Bathroom | 98.49 Sq Ft | Floor : 3rd |
| 1x Bathroom | 19.48 Sq Ft | Floor : 3rd |
| 1x Laundry room | 23.47 Sq Ft | Floor : 3rd |
| 1x Clearance | 72.44 Sq Ft | Floor : 3rd |
| 1x Clearance | 40.04 Sq Ft | Floor : 3rd |
| 1x Closet | Floor : 3rd |
Services
Building & Co-ownership
| Building |
|---|
-
Built in : 1913
-
Number of floors : 6
| Co-ownership |
|---|
Procedure in progress : Non
Meet your agency
Simulator financing
Calculate the amount of the monthly payments on your home loan corresponding to the loan you wish to make.
FAI property price
1 890 000 €
€
per month
Do you have to sell to buy?
Our real estate consultants are at your disposal to estimate the value of your property. All our estimates are free of charge.
Estimate my propertyA living space to suit you
Junot takes you on a tour of the neighborhoods in which our agencies welcome you, and presents the specific features and good addresses.
Explore the neighborhoods












