• Exclusivity

Apartment
Lille - HYPER - CENTER

620 000 €

Fees payable by the seller

Fee schedule Simulate your financing

Do you like this property?

Let's take an overview

Ad reference : 867JLIBAT

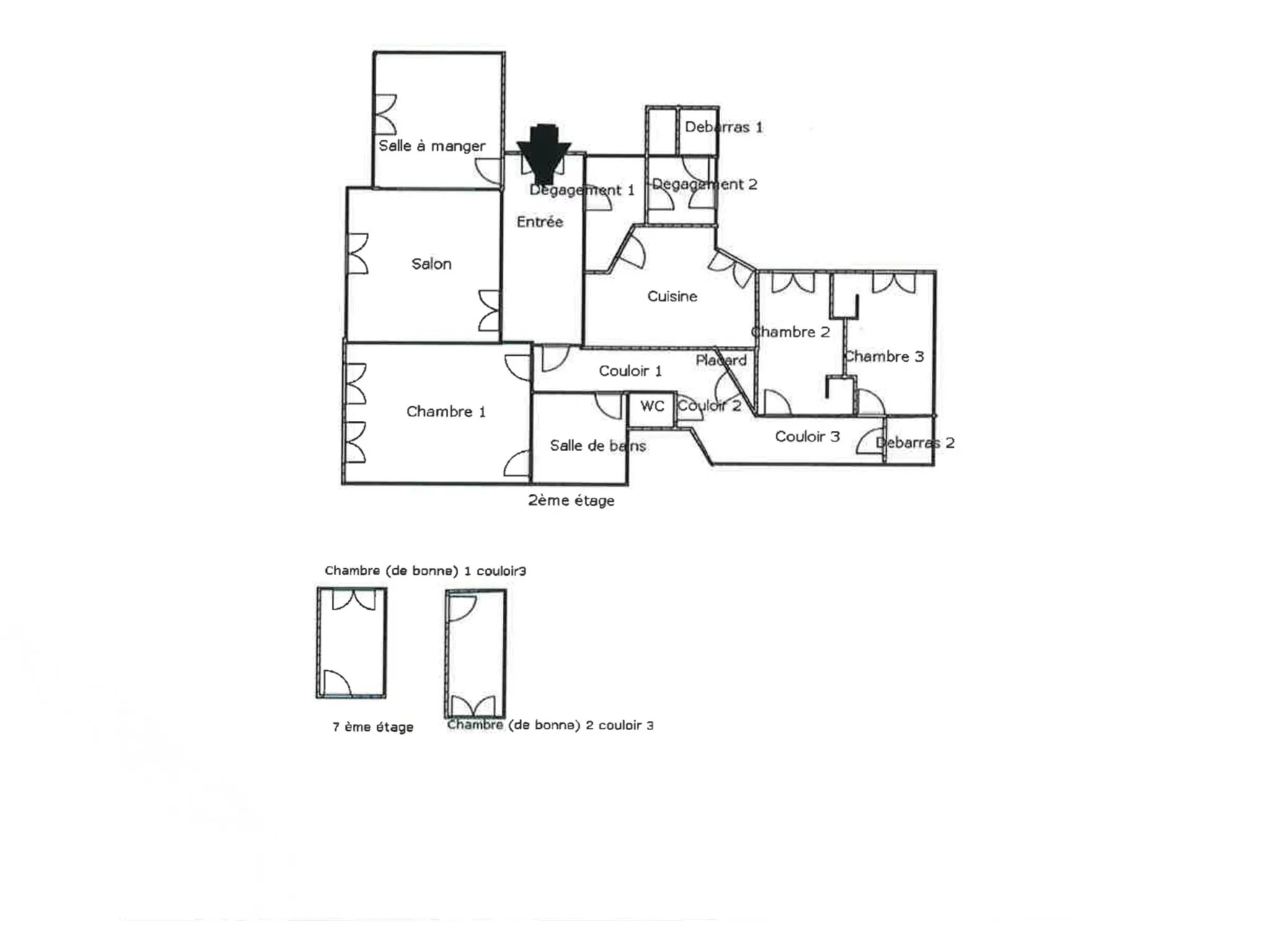
Ideally located in the heart of the city center, just a few steps from the Grand-Place and Old Lille, and a 5-minute walk from the train station, discover this exceptional apartment on the second floor of a character building with elevator.
As soon as you enter, you'll be charmed: the hall opens onto a luminous 36m² double living room, enhanced by marble fireplaces, refined parquet flooring and period moldings. On the other side, a fully equipped kitchen awaits you, combining functionality and comfort.
A hallway leads to three large bedrooms, a bathroom and separate toilet, offering each a genuine living space. Possibility of creating a second shower room. To complete this rare property: a cellar, two utility rooms and a garage, valuable assets right in the center of town.

  • Habitable : 1 467,01 Sq Ft Total : 1 616,52 Sq Ft
  • 4 rooms
  • 3 bedrooms
  • 1 bathroom
  • Floor 2/7
  • Orientation West, South East
  • Good condition

What seduced us

  • Highly sought-after address
  • Luminous
  • Elevator
  • Cellar

We say more

Regulations & financial information

Information on the risks to which this property is exposed is available on the Géorisques website. : www.georisques.gouv.fr


Diagnostics

DPE Graph GES Graph

Final energy consumption : a - 244 kWh/m²/an.
Estimated annual energy costs for standard use: between 2 610,00 € and 3 550,00 € /year (including subscription).
Average energy price indexed to 01/01/2021.


Financial elements
Average annual amount of the share of current charges : 4 044 €

Property tax : 2 556,00 € /an

Interior & exterior details

Room Surface Detail
1x Cellar Floor : Basement
1x Entrance 123.25 Sq Ft Floor : 2nd
Coating : Parquet
1x Stay 391.7 Sq Ft Floor : 2nd
Exposure : South East
Coating : Parquet
1x Clearance 34.55 Sq Ft Floor : 2nd
1x Clearance 25.83 Sq Ft Floor : 2nd
1x Equipped kitchen 83.53 Sq Ft Floor : 2nd
Exposure : West
Coating : Floor tile
1x Corridor 67.27 Sq Ft Floor : 2nd
Coating : Parquet
1x Bedroom 204.3 Sq Ft Floor : 2nd
Exposure : South East
Coating : Parquet
1x Bathroom 76.85 Sq Ft Floor : 2nd
Coating : Floor tile
1x Closet 4.31 Sq Ft Floor : 2nd
1x Bathroom 11.95 Sq Ft Floor : 2nd
Coating : Floor tile
1x Corridor 37.35 Sq Ft Floor : 2nd
Coating : Parquet
1x Bedroom 149.4 Sq Ft Floor : 2nd
Exposure : West
Coating : Parquet
1x Other 10.33 Sq Ft Floor : 2nd
1x Corridor 44.99 Sq Ft Floor : 2nd
Coating : Parquet
1x Bedroom 159.52 Sq Ft Floor : 2nd
Exposure : West
Coating : Parquet
1x Other 10.55 Sq Ft Floor : 2nd
1x Clearance 21.53 Sq Ft Floor : 2nd
1x Service room 78.47 Sq Ft Floor : 7th
1x Service room 71.04 Sq Ft Floor : 7th

Services

☑ Internet
☑ Alarm
☑ Elevator
☑ Double glazing
☑ Electric roller shutters

Building & Co-ownership

Building
  • Built in : 1900
  • Number of floors : 7
  • Quality level : Normal

Co-ownership

Average annual amount of the share of current charges : 4 044 €
Procedure in progress : Non

Meet your consultant

Simulator financing

Calculate the amount of the monthly payments on your home loan corresponding to the loan you wish to make.

FAI property price

620 000 €

This calculation takes into account registration fees of 7%.

per month

This is a simulation, only your bank can give you a precise value. Our consultants are at your disposal to support you.
Be contacted

You may also be interested in these properties

  • Lille - CENTER
    • Sold

    Apartment

    Lille - CENTER

    • 1 424,71 Sq Ft
    • 3 bedrooms
    • Floor 4/5
    • Elevator
    • Terrace
    Lille - CENTER
  • Lille - CENTRE
    • Sold

    Apartment

    Lille - CENTRE

    • 1 622,34 Sq Ft
    • 2 bedrooms
    • Floor 2/4
    • Elevator
    • Balcony
    Lille - CENTRE
  • Lille - OLD LILLE
    • Sold

    Apartment

    Lille - OLD LILLE

    • 1 192,96 Sq Ft
    • 3 bedrooms
    • Floor 2/3
    • Terrace
    Lille - OLD LILLE
  • Lille - OLD LILLE
    • Sold

    Apartment

    Lille - OLD LILLE

    • 1 159,38 Sq Ft
    • 3 bedrooms
    • Floor 3/4
    • Elevator
    Lille - OLD LILLE
  • Lille - OLD LILLE
    • Sold

    Apartment

    Lille - OLD LILLE

    • 1 284,35 Sq Ft
    • 3 bedrooms
    • Floor 1/2
    • Terrace
    Lille - OLD LILLE
  • Lille
    • Sold

    Apartment

    Lille

    • 1 071,01 Sq Ft
    • 3 bedrooms
    • Floor 3/6
    Lille
  • Lille
    • Sold

    Apartment

    Lille

    • 1 349,69 Sq Ft
    • 3 bedrooms
    • Floor 5/7
    • Elevator
    Lille
  • Lille
    • Sold

    Duplex

    Lille

    • 1 111,48 Sq Ft
    • 3 bedrooms
    • Floor 3/3
    Lille
  • Lille
    • Sold

    Loft

    Lille

    • 2 435,01 Sq Ft
    • 4 bedrooms
    • Terrace
    • Ground
    Lille
  • Paris 18e - ETEX
    • Sold

    Apartment

    Paris 18e - ETEX

    • 595,89 Sq Ft
    • 1 chambre
    • Floor 5/6
    • Elevator
    Paris 18e - ETEX
  • Paris 18e - BELLIARD
    • Sold

    Apartment

    Paris 18e - BELLIARD

    • 630,12 Sq Ft
    • 2 bedrooms
    • Floor 4/7
    • Elevator
    • Balcony
    Paris 18e - BELLIARD

    Do you have to sell to buy?

    Our real estate consultants are at your disposal to estimate the value of your property. All our estimates are free of charge.

    Estimate my property

    A living space to suit you

    Junot takes you on a tour of the neighborhoods in which our agencies welcome you, and presents the specific features and good addresses.

    Explore the neighborhoods
I would like to visit
Do you really want to leave the page?
Do you really want to leave the page?
Do you really want to leave the page?
Do you really want to leave the page?
Do you really want to leave the page?
Do you really want to leave the page?
Do you really want to leave the page?
Do you really want to leave the page?
Do you really want to leave the page?
Do you really want to leave the page?
Do you really want to leave the page?