Let's take an overview
Ad reference : 3456BREPRI
Close to Place Vendôme and Jardin des Tuileries, in the heart of Rue Saint-Honoré.
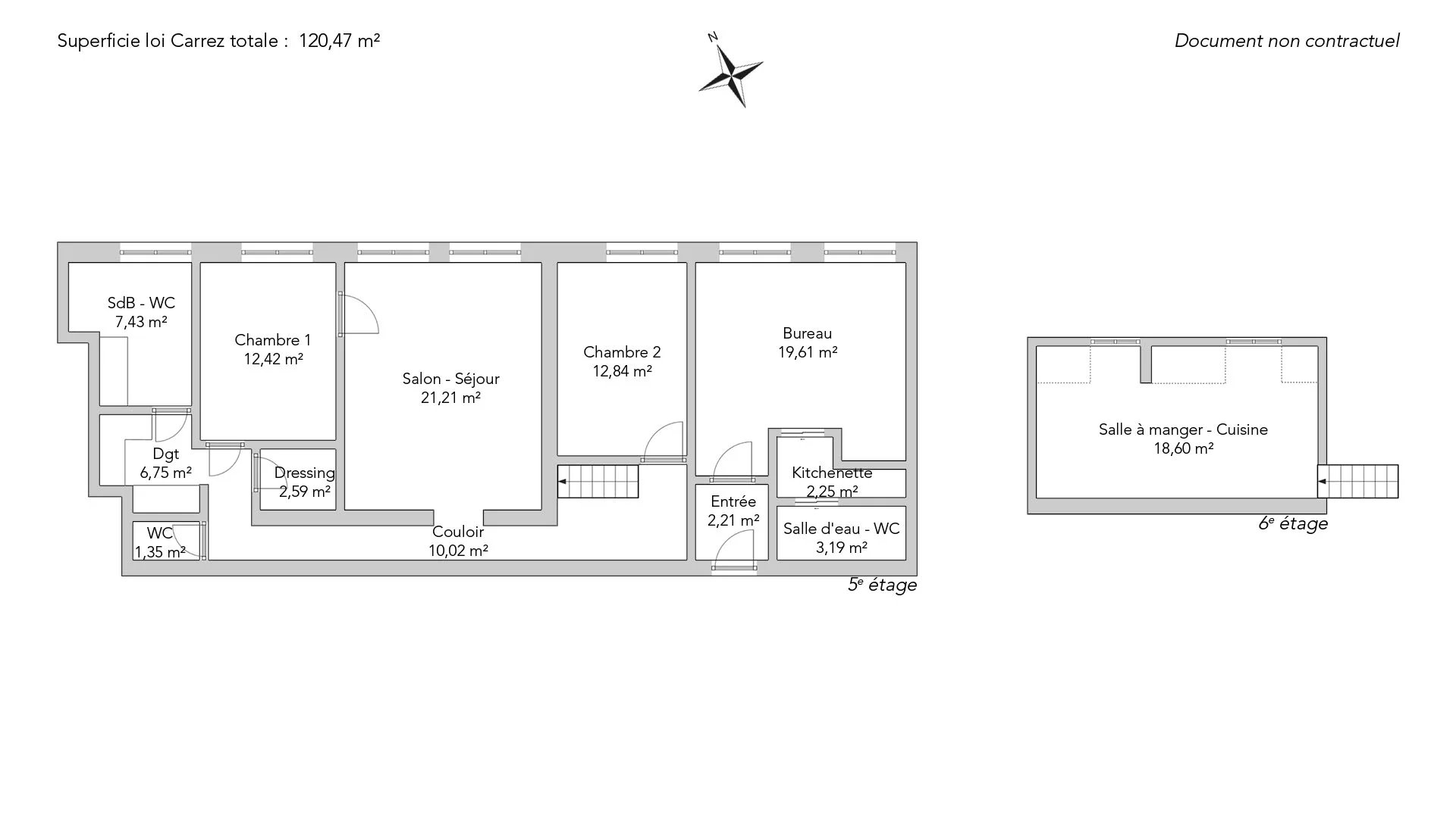
In a beautiful guarded building, on the fifth and sixth floors by elevator, an apartment of 128.25sqm floor area and 120.47sqm Carrez law.
The fifth floor comprises an entrance hall, a living room, two bedrooms, a bathroom, two dressing rooms and a guest toilet.
On the same landing, a studio with the option of attaching it to the main apartment.
The sixth floor features a fully-equipped open-plan kitchen/diner.
In the annex, two cellars.
This property boasts a prestigious location, a flexible floor plan and unobstructed views.
Perfect pied-à-terre.
- Habitable : 1 296,73 Sq Ft Total : 1 380,47 Sq Ft
- 5 rooms
- 3 bedrooms
- 1 bathroom
- 1 shower room
- Floor 5/7
- Orientation Northeast
- Excellent condition
What seduced us
- Last floor
- Guardian
- Calm
- Elevator
- Cellar
We say more
Regulations & financial information
Information on the risks to which this property is exposed is available on the Géorisques website. : www.georisques.gouv.fr
| Diagnostics |
|---|
Final energy consumption : a - 115 kWh/m²/an.
Estimated annual energy costs for standard use: between 2 440,00 € and 3 310,00 € /year (including subscription).
Average energy price indexed to 01/01/2021.
| Financial elements |
|---|
Interior & exterior details
| Room | Surface | Detail |
|---|---|---|
| 1x Cellar | 109.58 Sq Ft | Floor : Basement |
| 1x Cellar | 52.64 Sq Ft | Floor : Basement |
| 1x Entrance | 23.79 Sq Ft |
Floor : 5th Coating : Floor tile |
| 1x Bedroom | 211.08 Sq Ft |
Floor : 5th Coating : Carpet |
| 1x Kitchenette | 24.22 Sq Ft |
Floor : 5th Coating : Floor tile |
| 1x Shower room/toilet | 34.34 Sq Ft |
Floor : 5th Coating : Floor tile |
| 1x Corridor | 107.85 Sq Ft |
Floor : 5th Coating : Carpet |
| 1x Bathroom | 14.53 Sq Ft |
Floor : 5th Coating : Floor tile |
| 1x Clearance | 72.66 Sq Ft |
Floor : 5th Coating : Carpet |
| 1x Dressing room | 27.88 Sq Ft |
Floor : 5th Coating : Carpet |
| 1x Bathroom/toilet | 79.98 Sq Ft |
Floor : 5th Coating : Floor tile |
| 1x Bedroom | 133.69 Sq Ft |
Floor : 5th Coating : Carpet |
| 1x Stay | 228.3 Sq Ft |
Floor : 5th Coating : Carpet |
| 1x Bedroom | 138.21 Sq Ft |
Floor : 5th Coating : Carpet |
| 1x Living room/kitchen | 200.21 Sq Ft |
Floor : 6th Coating : Floor tile |
Services
Building & Co-ownership
| Building |
|---|
-
Built in : 1782
-
Number of floors : 7
| Co-ownership |
|---|
57 housing lots
Average annual amount of the share of current charges : 4 876 €
Procedure in progress : Non
Meet your agency
Simulator financing
Calculate the amount of the monthly payments on your home loan corresponding to the loan you wish to make.
FAI property price
2 650 000 €
€
per month
Do you have to sell to buy?
Our real estate consultants are at your disposal to estimate the value of your property. All our estimates are free of charge.
Estimate my propertyA living space to suit you
Junot takes you on a tour of the neighborhoods in which our agencies welcome you, and presents the specific features and good addresses.
Explore the neighborhoods












