Let's take an overview
Ad reference : 3515STGMIC
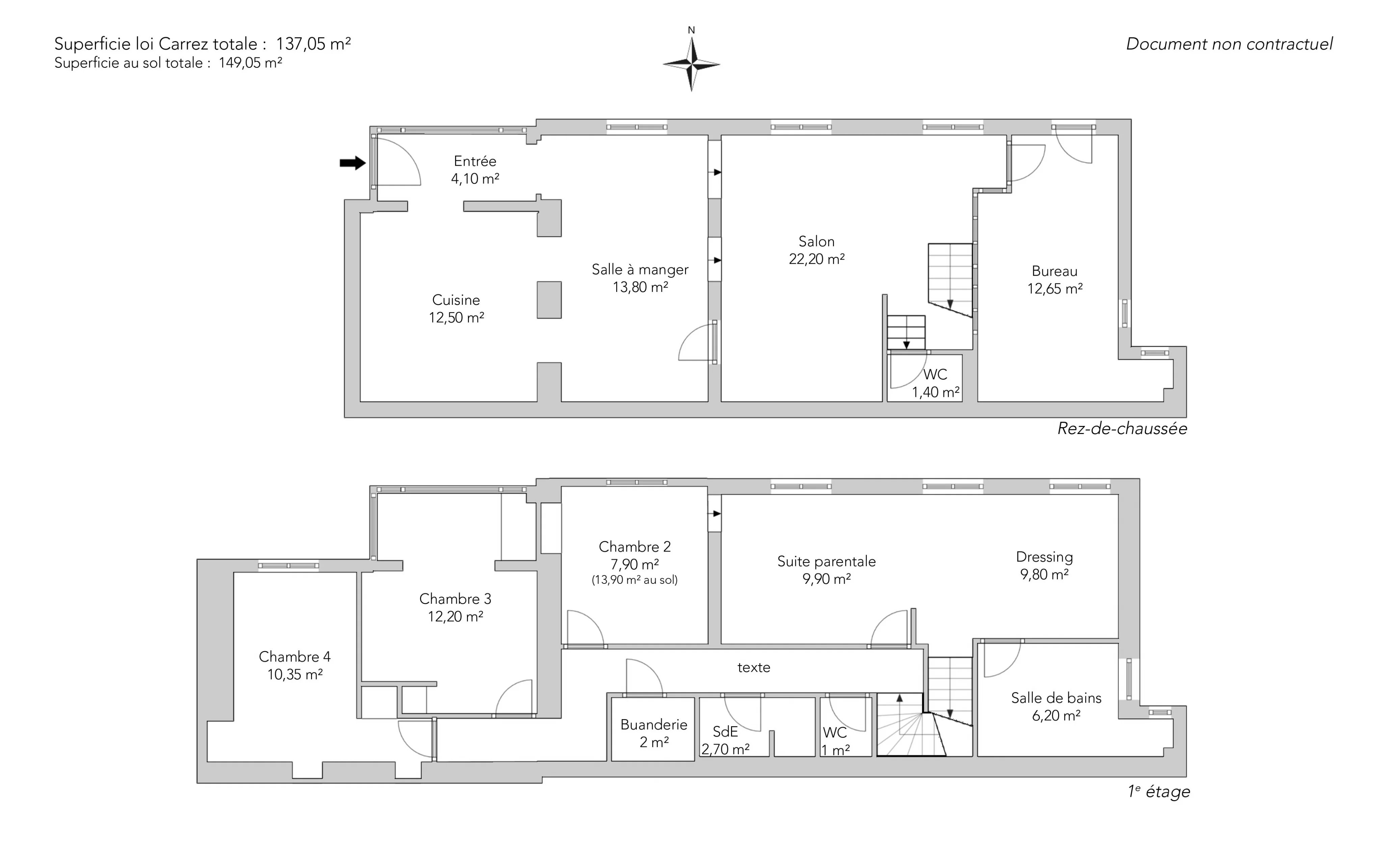
Rue de Clichy, close to rue Ballu and in the calm of a charming planted courtyard, superb family duplex, like a house, with recent careful renovation and ideal layout.
The first level (65sqm) includes a comfortable eat-in kitchen, a dining room/library with a functional ceramic stove, and a lovely living room extended by the study. This office is also accessible from a second entrance (ideal for a liberal profession). Separate toilet.
Upstairs, a beautiful master bedroom with dressing room and bathroom (shower and bath), three other bedrooms, a shower room, separate toilet and laundry room. The floor plan can be adapted to suit your needs.
With the exception of the last bedroom, the second level is a true top floor.
The property benefits from an ECD C rating.
Condorcet sectorization.
- Habitable : 1 475,19 Sq Ft Total : 1 604,36 Sq Ft
- 8 rooms
- 4 bedrooms
- 1 bathroom
- 1 shower room
- Fireplace
- Orientation North
- Excellent condition
What seduced us
- Calm
We say more
Regulations & financial information
Information on the risks to which this property is exposed is available on the Géorisques website. : www.georisques.gouv.fr
| Diagnostics |
|---|
Final energy consumption : C - 125 kWh/m²/an.
Estimated annual energy costs for standard use: between 1 279,00 € and 1 731,00 € /year (including subscription).
Average energy price indexed to 01/01/2021.
| Financial elements |
|---|
Property tax : 2 052,00 € /an
Interior & exterior details
| Room | Surface | Detail |
|---|---|---|
| 1x Entrance | 44.13 Sq Ft | Floor : Ground floor |
| 1x Stay | 238.96 Sq Ft | Floor : Ground floor |
| 1x Dining room | 148.54 Sq Ft | Floor : Ground floor |
| 1x Kitchen | 134.55 Sq Ft | Floor : Ground floor |
| 1x Desk | 136.16 Sq Ft | Floor : Ground floor |
| 1x Bathroom | 15.07 Sq Ft | Floor : Ground floor |
| 1x Bedroom | 106.56 Sq Ft | Floor : 1st |
| 1x Bathroom | 66.74 Sq Ft | Floor : 1st |
| 1x Bedroom | 85.03 Sq Ft | Floor : 1st |
| 1x Bedroom | 131.32 Sq Ft | Floor : 1st |
| 1x Bedroom | 111.41 Sq Ft | Floor : 1st |
| 1x Dressing room | 105.49 Sq Ft | Floor : 1st |
| 1x Bathroom | 29.06 Sq Ft | Floor : 1st |
| 1x Bathroom | 10.76 Sq Ft | Floor : 1st |
| 1x Clearance | 89.88 Sq Ft | Floor : 1st |
| 1x Laundry room | 21.53 Sq Ft | Floor : 1st |
Services
Building & Co-ownership
| Building |
|---|
-
Built in : 1830
-
Type : Rock
-
Number of floors : 6
-
Quality level : Luxury
| Co-ownership |
|---|
42 housing lots
Average annual amount of the share of current charges : 4 923 €
Procedure in progress : Non
Meet your agency
Simulator financing
Calculate the amount of the monthly payments on your home loan corresponding to the loan you wish to make.
FAI property price
1 730 000 €
€
per month
Do you have to sell to buy?
Our real estate consultants are at your disposal to estimate the value of your property. All our estimates are free of charge.
Estimate my propertyA living space to suit you
Junot takes you on a tour of the neighborhoods in which our agencies welcome you, and presents the specific features and good addresses.
Explore the neighborhoods









