Let's take an overview
Ad reference : 1939CHMGIR
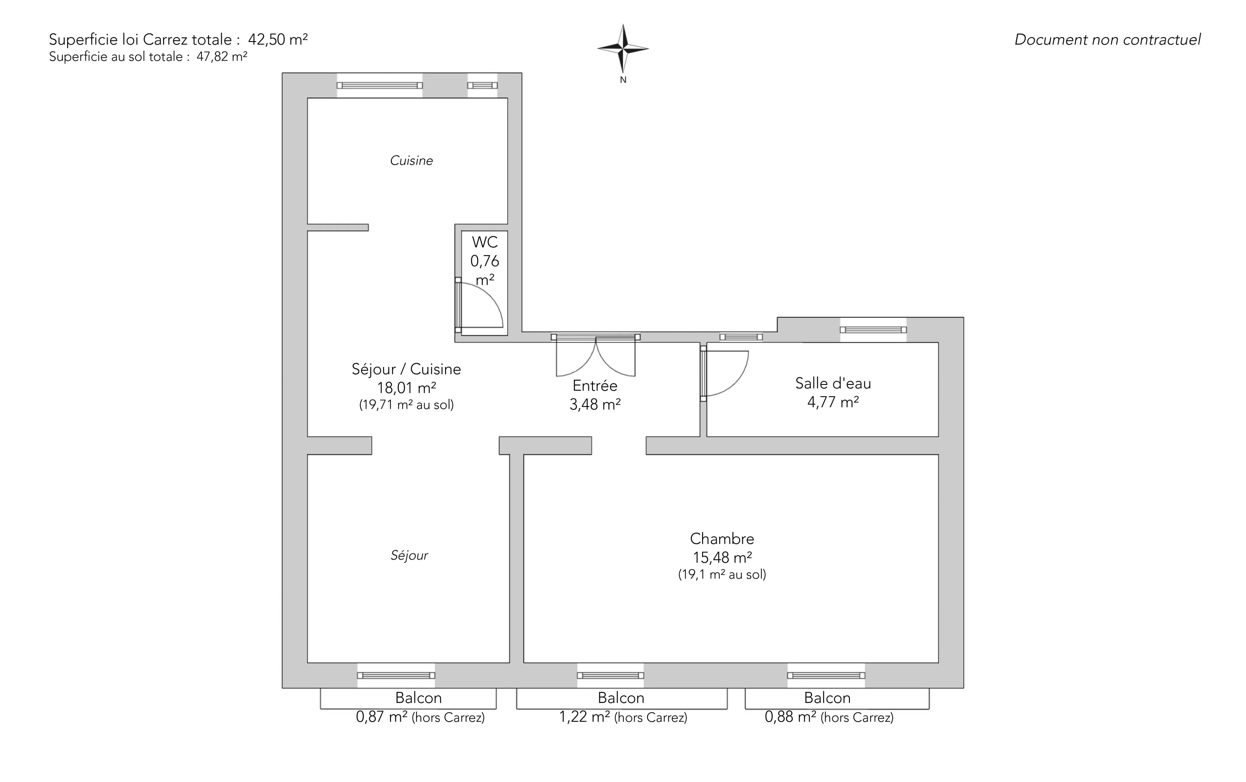
Ideally located on rue Caillaux, close to the metro and shops, a charming apartment of 42.50sqm loi Carrez and 47.82sqm on the ground floor, on the top floor by elevator of a beautiful old building.
This property benefits from three balconies offering exceptional luminosity and particularly pleasant unobstructed views.
The apartment is organized around a light-filled living room with open-plan kitchen and convivial dining area. The 16.09m² bedroom is spacious and elegant, with built-in storage and a beautiful office area.
A shower room and separate toilet complete the ensemble.
Quiet, extremely bright, with a rare unobstructed view and undeniable charm, this property will seduce you with its warm atmosphere and sought-after location.
A "coup de coeur" apartment, ideal as a main residence, pied-à-terre or quality investment.
EXCLUSIVE.
- Habitable : 457,47 Sq Ft Total : 514,73 Sq Ft
- 2 rooms
- 1 bedroom
- 1 shower room
- Orientation North, South
- Excellent condition
What seduced us
- Exceptional view
- Balcony/Terrace
- Last floor
- Luminous
- Calm
- Crossing
- Elevator
- Open view
We say more
Regulations & financial information
Information on the risks to which this property is exposed is available on the Géorisques website. : www.georisques.gouv.fr
| Diagnostics |
|---|
Final energy consumption : E - 275 kWh/m²/an.
Logement à consommation énergétique excessive : classe G
Estimated annual energy costs for standard use: between 2 070,00 € and 2 830,00 € /year (including subscription).
Average energy price indexed to 01/01/2023.
| Financial elements |
|---|
Interior & exterior details
| Room | Surface | Detail |
|---|---|---|
| 1x Entrance | 37.46 Sq Ft | Floor : 7th |
| 1x Bathroom | 8.18 Sq Ft | Floor : 7th |
| 1x Living room/kitchen | 193.86 Sq Ft |
Floor : 7th Ceiling : 2.6m |
| 1x Balcony | 9.47 Sq Ft | Floor : 7th |
| 1x Balcony | 13.13 Sq Ft | Floor : 7th |
| 1x Balcony | 9.36 Sq Ft | Floor : 7th |
| 1x Bedroom | 166.63 Sq Ft | Floor : 7th |
| 1x Bathroom | 51.34 Sq Ft | Floor : 7th |
Services
Building & Co-ownership
| Building |
|---|
-
Built in : 1906
-
Type : Brick
-
Number of floors : 7
-
Quality level : Standing
| Co-ownership |
|---|
40 housing lots
Average annual amount of the share of current charges : 2 316 €
Procedure in progress : Non
Meet your agency
Simulator financing
Calculate the amount of the monthly payments on your home loan corresponding to the loan you wish to make.
FAI property price
420 000 €
€
per month
Do you have to sell to buy?
Our real estate consultants are at your disposal to estimate the value of your property. All our estimates are free of charge.
Estimate my propertyA living space to suit you
Junot takes you on a tour of the neighborhoods in which our agencies welcome you, and presents the specific features and good addresses.
Explore the neighborhoods












