Let's take an overview
Ad reference : 2001VHUVID
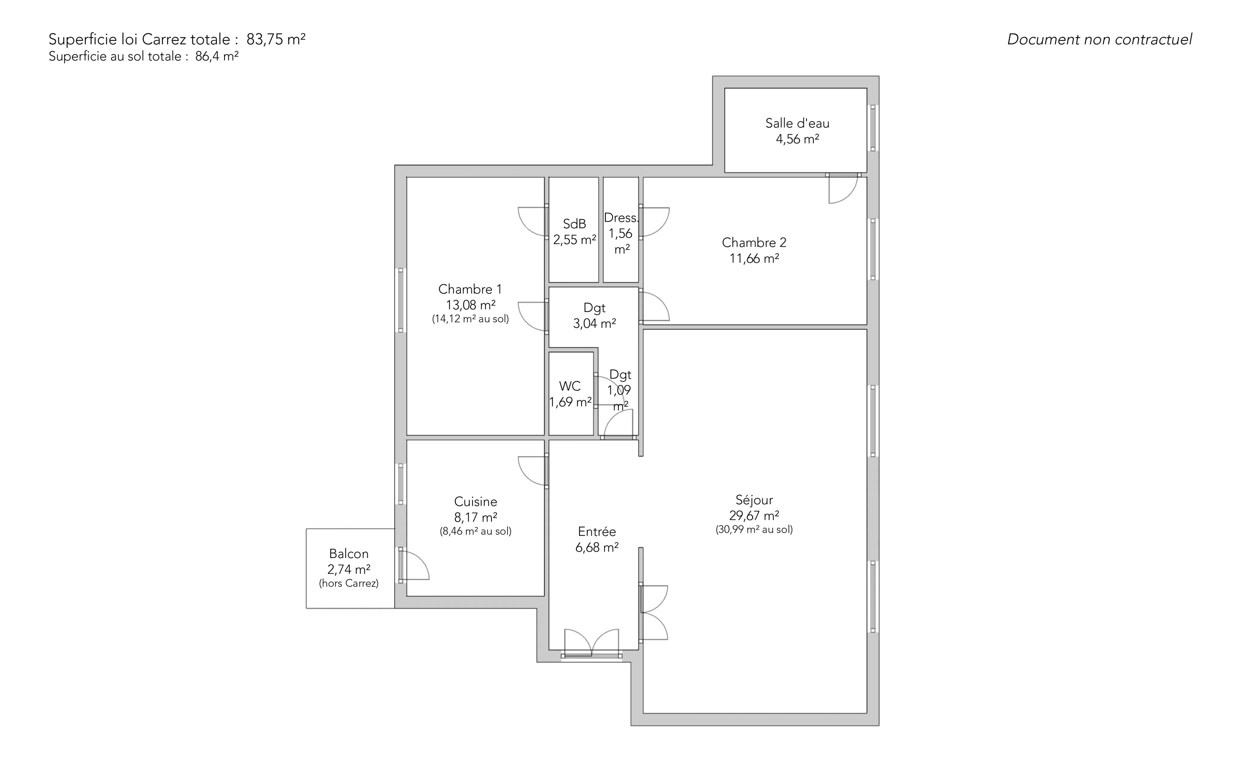
In a prestigious cut-stone building on Avenue de Malakoff, on the seventh and top floor (with elevator), a beautiful, bright, dual-aspect apartment of 83.75 sq m (Carrez Law).
It comprises an entrance hall, a bright double living room with unobstructed views over the rooftops, a fitted kitchen with access to an adjoining walkway furnished as a terrace, and two bedrooms, each with its own shower room and unobstructed views. A dressing room and separate WC complete the apartment.
The apartment is appealing thanks to its brightness, its perfectly optimized layout, and its open views.
A cellar completes this property.
EXCLUSIVE.
- Habitable : 901,48 Sq Ft Total : 959,49 Sq Ft
- 4 rooms
- 2 bedrooms
- 1 bathroom
- 1 shower room
- Floor 7/8
- Fireplace
- Orientation East
- Good condition
What seduced us
- Balcony/Terrace
- Last floor
- Guardian
- Luminous
- Crossing
- Elevator
- Cellar
- Open view
We say more
Regulations & financial information
Information on the risks to which this property is exposed is available on the Géorisques website. : www.georisques.gouv.fr
| Diagnostics |
|---|
Final energy consumption : a - 276 kWh/m²/an.
Estimated annual energy costs for standard use: between 1 880,00 € and 2 600,00 € /year (including subscription).
Average energy price indexed to 01/01/2023.
| Financial elements |
|---|
Property tax : 1 944,00 € /an
Interior & exterior details
| Room | Surface | Detail |
|---|---|---|
| 1x Cellar | ||
| 1x Bedroom | 140.79 Sq Ft | Floor : 7th |
| 1x Bedroom | 125.51 Sq Ft | Floor : 7th |
| 1x Bathroom | 49.08 Sq Ft | Floor : 7th |
| 1x Bathroom | 27.45 Sq Ft | Floor : 7th |
| 1x Kitchen | 87.94 Sq Ft | Floor : 7th |
| 1x Dressing room | 16.79 Sq Ft | Floor : 7th |
| 1x Bathroom | 11.73 Sq Ft | Floor : 7th |
| 1x Terrace | Floor : 7th | |
| 1x Clearance | 18.19 Sq Ft | Floor : 7th |
| 1x Clearance | 32.72 Sq Ft | Floor : 7th |
| 1x Entrance | 71.9 Sq Ft | Floor : 7th |
| 1x Stay | 319.36 Sq Ft | Floor : 7th |
Services
Building & Co-ownership
| Building |
|---|
-
Built in : 1880
-
Type : cut stone
-
Number of floors : 8
| Co-ownership |
|---|
Average annual amount of the share of current charges : 4 800 €
Procedure in progress : Non
Meet your agency
Simulator financing
Calculate the amount of the monthly payments on your home loan corresponding to the loan you wish to make.
FAI property price
1 185 000 €
€
per month
Do you have to sell to buy?
Our real estate consultants are at your disposal to estimate the value of your property. All our estimates are free of charge.
Estimate my propertyA living space to suit you
Junot takes you on a tour of the neighborhoods in which our agencies welcome you, and presents the specific features and good addresses.
Explore the neighborhoods












