Let's take an overview
Ad reference : 5865JASVAN
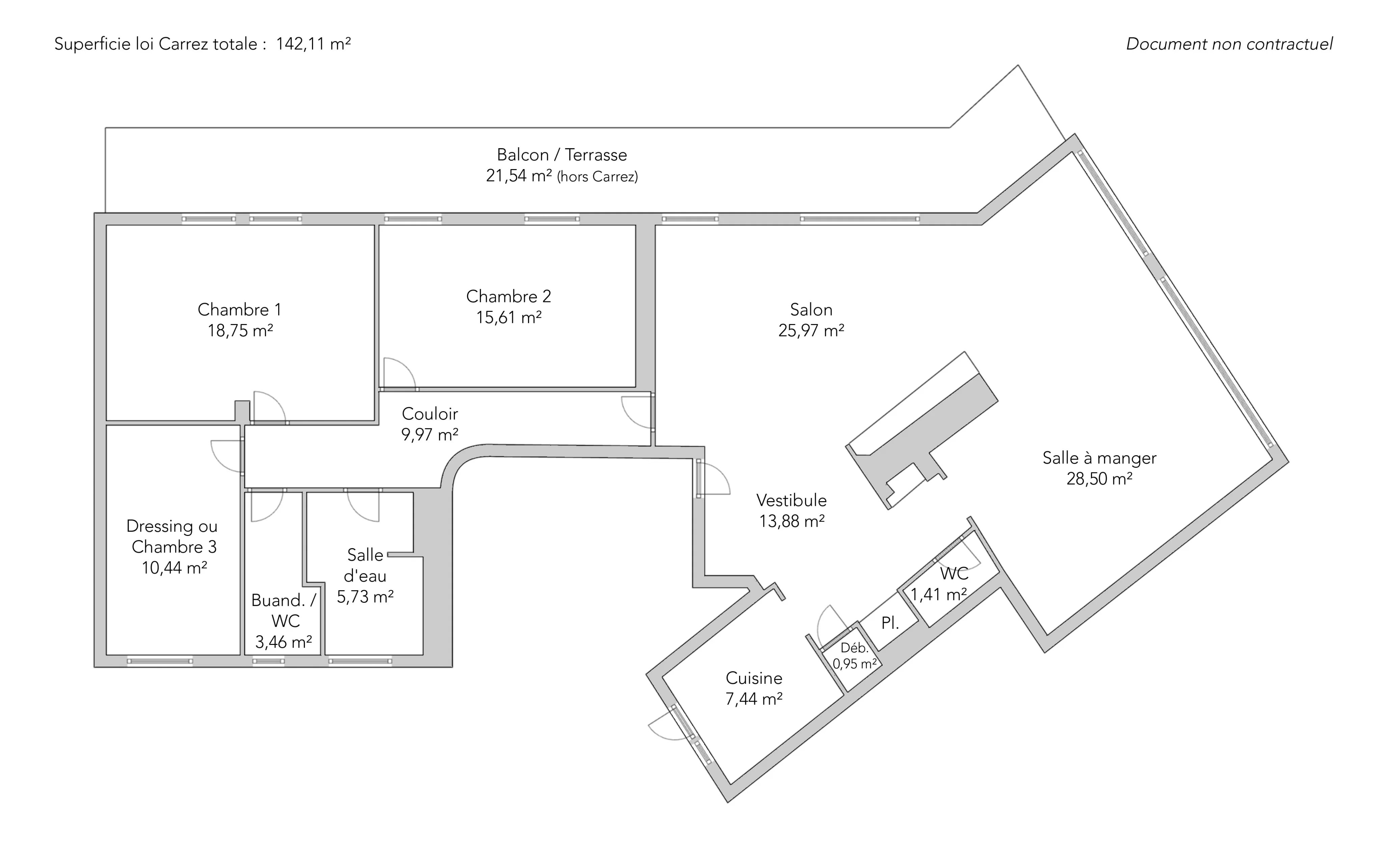
On the seventh floor by elevator of a 1950s building built by the famous modernist architect Jean Ginsberg, alone on the landing, superb fully renovated apartment of 142.11sqm Carrez law.
It consists of an entrance that leads to a large corner living-dining room flooded with light thanks to the large triple-aspect bay windows east/south/west.
The living area opens onto a 10-meter-long balcony terrace offering a magnificent unobstructed view of the Paris rooftops and the Eiffel Tower.
A semi-open kitchen serves the service entrance with its elevator.
The sleeping area currently includes two large bedrooms, a dressing room, a shower room, and separate toilets.
A third bedroom can be easily arranged.
A basement completes this exceptional property, which is prized for its natural light, spacious rooms, and breathtaking views.
A parking space in the building and a guest room on the ground floor are available for an additional fee.
Resident caretaker.
EXCLUSIVE
- Habitable : 1 529,66 Sq Ft
- 5 rooms
- 3 bedrooms
- 1 shower room
- Floor 7/8
- Orientation South, South East, South West
- Excellent condition
What seduced us
- Balcony/Terrace
- Highly sought-after address
- Guardian
- Historical monument view
- Luminous
- Calm
- Elevator
- Cellar
- Open view
We say more
Regulations & financial information
Information on the risks to which this property is exposed is available on the Géorisques website. : www.georisques.gouv.fr
| Diagnostics |
|---|
Final energy consumption : a - 139 kWh/m²/an.
Estimated annual energy costs for standard use: between 2 230,00 € and 3 090,00 € /year (including subscription).
Average energy price indexed to 01/01/2023.
| Financial elements |
|---|
Property tax : 4 000,00 € /an
Interior & exterior details
| Room | Surface | Detail |
|---|---|---|
| 1x Cellar | 59.42 Sq Ft | Floor : Basement |
| 1x Indoor parking | Floor : Basement | |
| 1x Service room | Floor : Ground floor | |
| 1x Entrance | 149.4 Sq Ft | Floor : 7th |
| 1x Stay | 279.54 Sq Ft |
Floor : 7th Exposure : Est, Ouest, Sud Ceiling : 2.8m |
| 1x Terrace | 231.85 Sq Ft | Floor : 7th |
| 1x Dining room | 306.77 Sq Ft | Floor : 7th |
| 1x Kitchen | 80.08 Sq Ft | Floor : 7th |
| 1x Bedroom | 201.82 Sq Ft | Floor : 7th |
| 1x Bedroom | 168.02 Sq Ft | Floor : 7th |
| 1x Bedroom | 112.38 Sq Ft | Floor : 7th |
| 1x Bathroom | 15.18 Sq Ft | Floor : 7th |
| 1x Corridor | 107.32 Sq Ft | Floor : 7th |
| 1x Bathroom | 61.68 Sq Ft | Floor : 7th |
| 1x Laundry room | 37.24 Sq Ft | Floor : 7th |
| 1x Clearance | 10.23 Sq Ft | Floor : 7th |
Services
Building & Co-ownership
| Building |
|---|
-
Built in : 1953
-
Number of floors : 8
-
Quality level : Standing
| Co-ownership |
|---|
38 housing lots
Average annual amount of the share of current charges : 14 800 €
Procedure in progress : Non
Meet your agency
Simulator financing
Calculate the amount of the monthly payments on your home loan corresponding to the loan you wish to make.
FAI property price
2 800 000 €
€
per month
Do you have to sell to buy?
Our real estate consultants are at your disposal to estimate the value of your property. All our estimates are free of charge.
Estimate my propertyA living space to suit you
Junot takes you on a tour of the neighborhoods in which our agencies welcome you, and presents the specific features and good addresses.
Explore the neighborhoods









