Let's take an overview
Ad reference : 5880JUNDEL
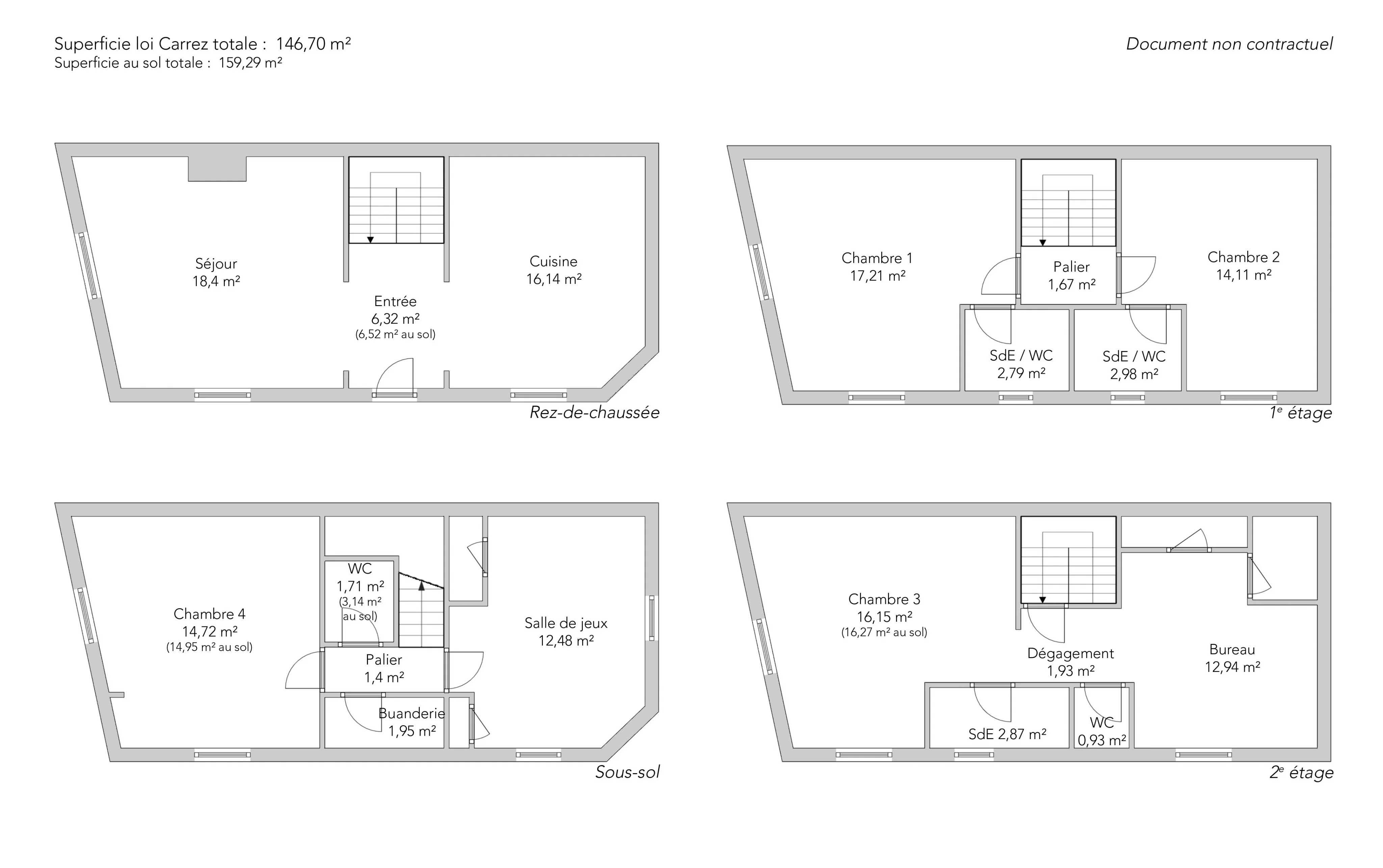
Located in a private passage in the heart of Abbesses, splendid fully renovated house of 146.70sqm (159.29sqm of livinf space) and benefiting from a large garden of nearly 70sqm.
This property includes a living space with a living room on one side and an open kitchen/dining room equipped on the other, 4 beautiful bedrooms, each with its own bathroom or shower room, an office (or 5th bedroom), as well as a laundry room and a playroom.
Enormous charm, quietness, and prime location in the heart of Abbesses.
- Habitable : 1 579,06 Sq Ft Total : 1 714,58 Sq Ft
- 8 rooms
- 4 bedrooms
- 1 bathroom
- 2 shower rooms
What seduced us
- Highly sought-after address
We say more
Regulations & financial information
Information on the risks to which this property is exposed is available on the Géorisques website. : www.georisques.gouv.fr
| Diagnostics |
|---|
Final energy consumption : a - 230 kWh/m²/an.
Estimated annual energy costs for standard use: between 3 570,00 € and 4 850,00 € /year (including subscription).
Average energy price indexed to 01/01/2023.
| Financial elements |
|---|
Property tax : 2 148,00 € /an
Interior & exterior details
| Room | Surface | Detail |
|---|---|---|
| 1x Laundry room | 20.99 Sq Ft |
Floor : Basement Coating : Parquet |
| 1x Landing | 15.07 Sq Ft |
Floor : Basement Coating : Parquet |
| 1x Game room | 134.33 Sq Ft |
Floor : Basement Coating : Parquet |
| 1x Bathroom | 18.41 Sq Ft |
Floor : Basement Coating : Floor tile |
| 1x Bedroom | 158.44 Sq Ft |
Floor : Basement Coating : Parquet |
| 1x Entrance | 68.03 Sq Ft |
Floor : Ground floor Coating : Parquet |
| 1x Stay | 198.06 Sq Ft |
Floor : Ground floor Coating : Parquet |
| 1x Kitchen | 173.73 Sq Ft |
Floor : Ground floor Coating : Parquet |
| 1x Landing | 17.98 Sq Ft |
Floor : 1st Coating : Parquet |
| 1x Bedroom | 185.25 Sq Ft |
Floor : 1st Coating : Parquet |
| 1x Bedroom | 151.88 Sq Ft |
Floor : 1st Coating : Parquet |
| 1x Shower room/toilet | 30.03 Sq Ft |
Floor : 1st Coating : Floor tile |
| 1x Bathroom/toilet | 32.08 Sq Ft |
Floor : 1st Coating : Floor tile |
| 1x Bedroom | 173.84 Sq Ft |
Floor : 2nd Coating : Parquet |
| 1x Desk | 139.28 Sq Ft |
Floor : 2nd Coating : Parquet |
| 1x Bathroom | 10.01 Sq Ft |
Floor : 2nd Coating : Floor tile |
| 1x Bathroom | 30.89 Sq Ft |
Floor : 2nd Coating : Floor tile |
| 1x Clearance | 20.77 Sq Ft |
Floor : 2nd Coating : Parquet |
Building & Co-ownership
| Co-ownership |
|---|
30 housing lots
Procedure in progress : Non
Meet your agency
Simulator financing
Calculate the amount of the monthly payments on your home loan corresponding to the loan you wish to make.
FAI property price
2 750 000 €
€
per month
Do you have to sell to buy?
Our real estate consultants are at your disposal to estimate the value of your property. All our estimates are free of charge.
Estimate my propertyA living space to suit you
Junot takes you on a tour of the neighborhoods in which our agencies welcome you, and presents the specific features and good addresses.
Explore the neighborhoods








