Let's take an overview
Ad reference : 3034MONRAF
Ideally located on Guy Môquet Street, within a well-maintained co-ownership, just steps from the metro and shops.
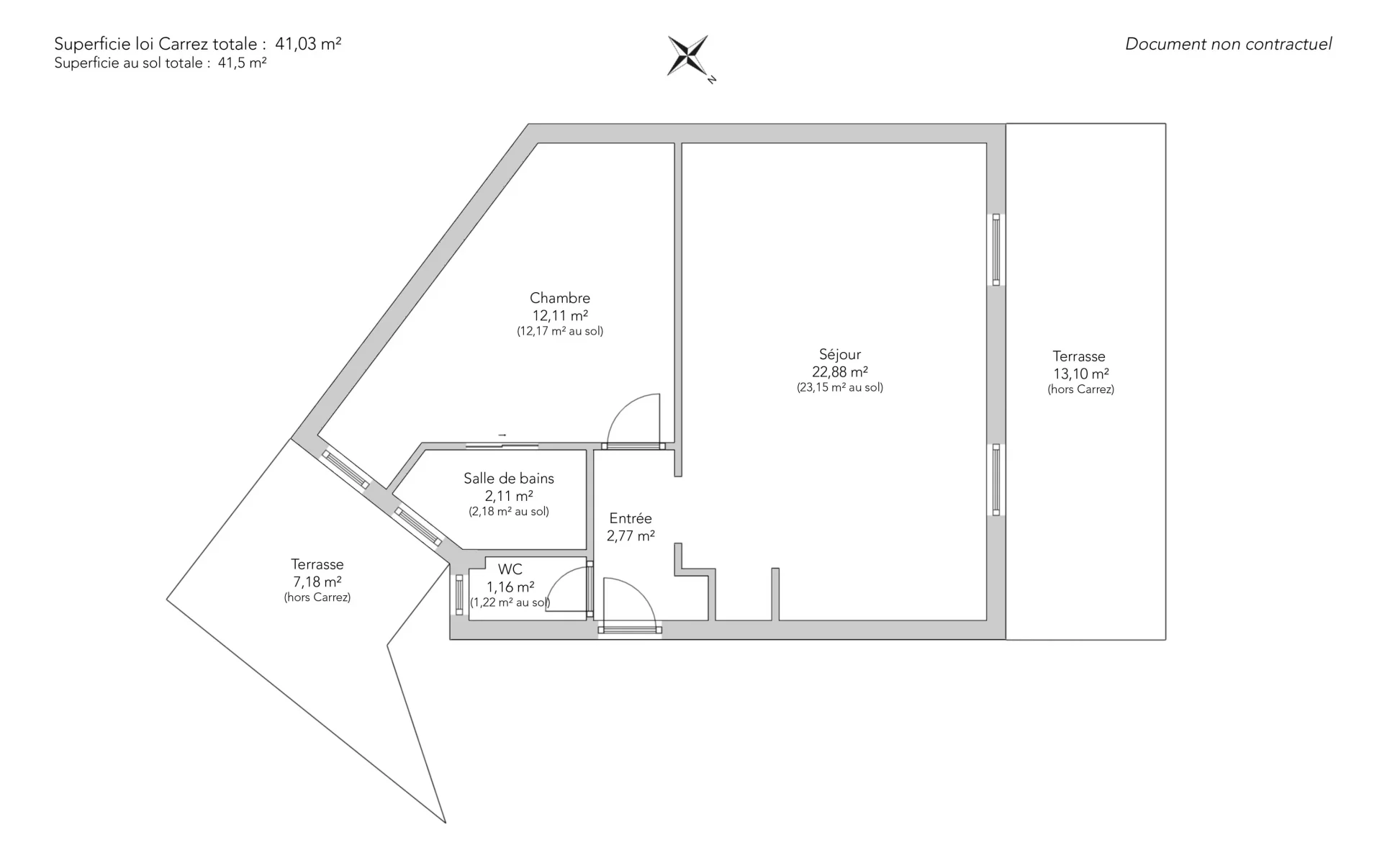
Fully renovated and very quiet, this 41.03sqm Carrez law apartment consists of an entrance with storage, a living room with an open kitchen leading to a ground-floor terrace of 13.10 m², a bedroom with a bathroom opening onto a second terrace of 7.18sqm, as well as separate toilets.
A cellar completes this property.
- Habitable : 441,64 Sq Ft Total : 659,93 Sq Ft
- 2 rooms
- 1 bedroom
- 1 bathroom
- Floor 1/2
- Orientation North West
- Nine
What seduced us
- Balcony/Terrace
- Calm
- Crossing
- Cellar
We say more
Regulations & financial information
Information on the risks to which this property is exposed is available on the Géorisques website. : www.georisques.gouv.fr
| Diagnostics |
|---|
Final energy consumption : a - 105.7 kWh/m²/an.
Estimated annual energy costs for standard use: between 850,00 € and 1 160,00 € /year (including subscription).
Average energy price indexed to 01/01/2023.
| Financial elements |
|---|
Interior & exterior details
| Room | Surface | Detail |
|---|---|---|
| 1x Cellar | Floor : Basement | |
| 1x Entrance | 29.82 Sq Ft | Floor : 1st |
| 1x Stay | 246.28 Sq Ft |
Floor : 1st Exposure : North West Coating : Parquet |
| 1x Terrace | 141.01 Sq Ft |
Floor : 1st Exposure : North West Coating : Teak |
| 1x Bedroom | 130.35 Sq Ft | Floor : 1st |
| 1x Terrace | 77.28 Sq Ft |
Floor : 1st Coating : Teak |
| 1x Bathroom | 22.71 Sq Ft | Floor : 1st |
| 1x Bathroom | 12.49 Sq Ft | Floor : 1st |
Services
Building & Co-ownership
| Building |
|---|
-
Built in : 1870
-
Type : Rock
-
Number of floors : 2
-
Quality level : Standing
| Co-ownership |
|---|
25 housing lots
Average annual amount of the share of current charges : 1 260 €
Procedure in progress : Non
Meet your agency
Simulator financing
Calculate the amount of the monthly payments on your home loan corresponding to the loan you wish to make.
FAI property price
557 000 €
€
per month
Do you have to sell to buy?
Our real estate consultants are at your disposal to estimate the value of your property. All our estimates are free of charge.
Estimate my propertyA living space to suit you
Junot takes you on a tour of the neighborhoods in which our agencies welcome you, and presents the specific features and good addresses.
Explore the neighborhoods










