Faisons un tour d'horizon
Référence de l’annonce : 2823WAGGUI
Au sein d’un bel immeuble en pierre de taille, cet élégant appartement de 70,45m² situé au deuxième étage par ascenseur séduit par son charme et sa belle luminosité.
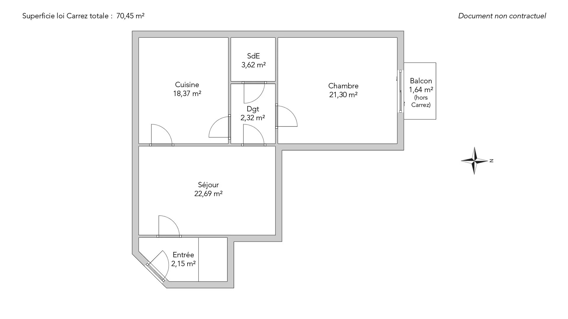
Il comprend une petite entrée, un agréable séjour bénéficiant de près de 3 mètres de hauteur sous plafond, une cuisine-salle à manger conviviale, une salle de douche avec toilettes et une vaste chambre ouvrant sur un charmant balcon à la vue totalement dégagée.
Le charme de l’ancien a été préservé — parquet, moulures, cheminée — tout en offrant un plan optimisé et modulable permettant aisément la création d’une seconde chambre.
L’appartement profite d’une très belle lumière tout au long de la journée et d’une atmosphère chaleureuse.
Une cave complète ce bien rare. Professions libérales possibles
- Habitable : 70,45 m² Total : 72,09 m²
- 3 pièces
- 1 chambre
- 1 salle de douche
- Étage 2/6
- Cheminée
- Exposition Nord, Sud
- Excellent état
Ce qui nous séduit
- Balcon/Terrasse
- Gardien
- Calme
- Ascenseur
- Cave
- Vue dégagée
On vous en dit plus
Réglementations & éléments financiers
Les informations sur les risques auxquels ce bien est exposé sont disponibles sur le site Géorisques : www.georisques.gouv.fr
| Diagnostics |
|---|
Consommation énergie finale : C - 152 kWh/m²/an.
Logement à consommation énergétique excessive : classe F
Montant estimé des dépenses annuelles d’énergie pour un usage standard : entre 1 880,00 € et 2 590,00 € /an (abonnement compris).
Prix moyen des énergies indexées au 01/01/2023.
| Éléments financiers |
|---|
Détails de l’intérieur & de l’extérieur
| Pièce | Surface | Détail |
|---|---|---|
| 1x Cave | ||
| 1x Entrée | 2.15 m² |
Étage : 2ème Revêtement : Parquet |
| 1x Séjour | 22.69 m² |
Étage : 2ème Exposition : Nord Revêtement : Parquet Plafond : 3m |
| 1x Salle à manger/Cuisine | 18.37 m² |
Étage : 2ème Revêtement : Parquet |
| 1x Chambre | 21.3 m² |
Étage : 2ème Exposition : Sud |
| 1x Salle de douche / toilettes | 3.62 m² |
Étage : 2ème Revêtement : Parquet |
| 1x Dégagement | 2.32 m² |
Étage : 2ème Revêtement : Parquet |
| 1x Balcon | 1.64 m² | Étage : 2ème |
Prestations
Bâtiment & Copropriété
| Bâtiment |
|---|
-
Construit en : 1890
-
Type : Pierre de taille
-
Nombre d'étages : 6
-
Niveau de qualité : Standing
| Copropriété |
|---|
44 lots d'habitation
Montant moyen annuel de la quote part de charges courantes : 3 144 €
Procédure en cours : Non
Rencontrez votre agence
Simulateur de financement
Calculez le montant des mensualités de votre prêt immobilier correspondant à l'emprunt que vous souhaitez effectuer.
Prix du bien HAI
775 000 €
€
par mois
Vous devez vendre pour acheter ?
Nos consultants immobiliers se tiennent à votre disposition pour réaliser une estimation de la valeur de votre bien. Toutes nos estimations sont offertes.
Je fais estimer mon bienUn lieu de vie à votre image
Junot vous fait visiter les quartiers dans lesquels nos agences vous accueillent, et vous présente les spécificités et bonnes adresses.
Parcourir les quartiers













