
Faisons un tour d'horizon
Référence de l’annonce : 1849VHUCOH
Idéalement situé au pied du Trocadéro.
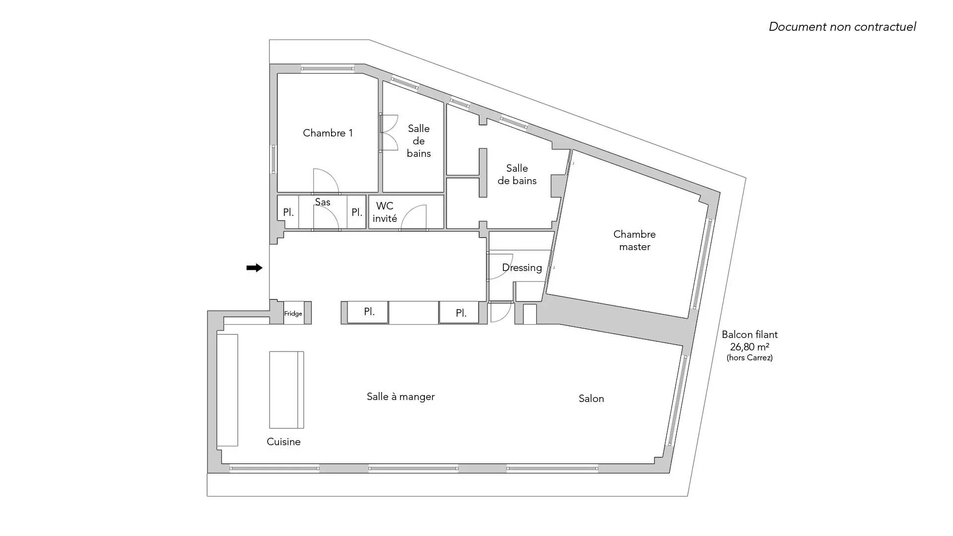
Au septième étage par ascenseur d'une copropriété sécurisée et gardiennée. appartement traversant élégamment rénové de 122.18m² loi Carrez aux vues exceptionnelles.
Ce bien bénéficie d'une triple exposition. de matériaux de qualité et est entièrement climatisé. Ensoleillé. il comprend une belle entrée. une réception de 57.46m² avec cuisine ouverte haut de gamme ouvrant sur un balcon de 26.80m² aux vues imprenables sur les monuments emblématiques de Paris et entourant l'intégralité de l'appartement.
La partie nuit comprend deux belles suites avec dressing et salle d'eau avec toilettes, des toilettes invités, un espace buanderie ainsi que de nombreux rangements sur-mesure.
Une cave et un emplacement de parking complètent cette offre rare.
- Habitable : 122,18 m²
- 4 pièces
- 2 chambres
- 2 salles de bains
- 1 salle de douche
- Étage 7/9
- Exposition Sud
- Neuf
- Meublé
Ce qui nous séduit
- Vue exceptionnelle
- Balcon/Terrasse
- Adresse très recherchée
- Prestations exceptionnelles
- Gardien
- Vue monument historique
- Lumineux
- Calme
- Traversant
- Ascenseur
- Cave
- Vue dégagée
On vous en dit plus
Réglementations & éléments financiers
Les informations sur les risques auxquels ce bien est exposé sont disponibles sur le site Géorisques : www.georisques.gouv.fr
Diagnostics |
---|
Consommation énergie finale : C - 111 kWh/m²/an.
Montant estimé des dépenses annuelles d’énergie pour un usage standard : entre 1 736,00 € et 2 350,00 € /an (abonnement compris).
Prix moyen des énergies indexées au 01/01/2021.
Éléments financiers |
---|
Détails de l’intérieur & de l’extérieur
Pièce | Surface | Détail |
---|---|---|
1x Entrée | 12.76 m² | |
1x Placard | 2.16 m² | |
1x Chambre | 11.41 m² | |
1x Salle de douche / toilettes | 6.9 m² | |
1x Toilettes | 2.5 m² | |
1x Dressing | 3.86 m² | |
1x Chambre | 16.6 m² | |
1x Salle de bains / toilettes | 5.99 m² | |
1x Toilettes | 1.41 m² | |
1x Salle de bains | 1.13 m² | |
1x Séjour/cuisine | 57.46 m² | |
1x Terrasse | 26.8 m² | |
1x Cave | ||
1x Parking intérieur |
Prestations
Bâtiment & Copropriété
Bâtiment |
---|
-
Construit en : 1954
-
Type : Pierre
-
Nombre d'étages : 9
-
Niveau de qualité : Grand Luxe
Copropriété |
---|
57 lots d'habitation
Montant moyen annuel de la quote part de charges courantes : 15 168 €
Procédure en cours : Non
Rencontrez votre agence

Simulateur de financement
Calculez le montant des mensualités de votre prêt immobilier correspondant à l'emprunt que vous souhaitez effectuer.
Prix du bien HAI
2 750 000 €
€
par mois
Vous devez vendre pour acheter ?
Nos consultants immobiliers se tiennent à votre disposition pour réaliser une estimation de la valeur de votre bien. Toutes nos estimations sont offertes.
Je fais estimer mon bienUn lieu de vie à votre image
Junot vous fait visiter les quartiers dans lesquels nos agences vous accueillent, et vous présente les spécificités et bonnes adresses.
Parcourir les quartiers