Faisons un tour d'horizon
Référence de l’annonce : 3231ABBLEV
Situé rue du Poteau, à deux pas des commerces et des transports, au cinquième et dernier étage par escalier d’un immeuble ancien,
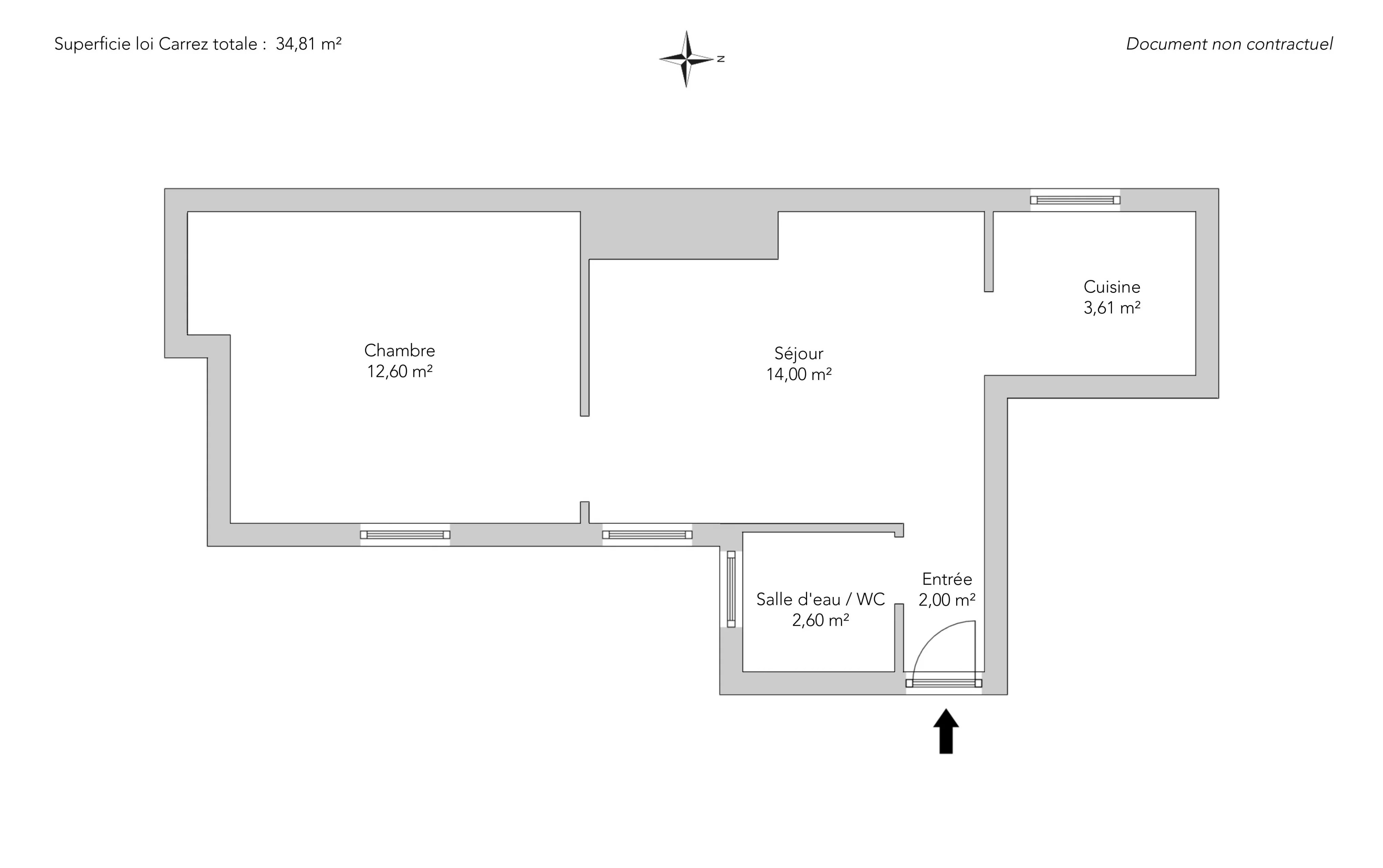
Cet appartement de 35,21 m² loi Carrez baigné de lumière grâce à son exposition est comprend: une entrée, un agréable séjour avec cuisine ouverte aménagée et équipée, une chambre avec dressing ainsi qu’une salle de douche avec toilettes.
Calme et lumineux, ce lieu de vie séduit par tout le charme de l’ancien, avec parquet, cheminée et grandes fenêtres.
Une cave complète cet appartement idéalement situé, au cœur d’un quartier recherché.
- Habitable : 35,21 m²
- 2 pièces
- 1 chambre
- 1 salle de douche
- Étage 5/6
- Exposition Est
- Excellent état
Ce qui nous séduit
- Adresse très recherchée
- Dernier étage
- Lumineux
- Calme
- Traversant
- Cave
- Vue dégagée
On vous en dit plus
Réglementations & éléments financiers
Les informations sur les risques auxquels ce bien est exposé sont disponibles sur le site Géorisques : www.georisques.gouv.fr
| Diagnostics |
|---|
Consommation énergie finale : a - 294 kWh/m²/an.
Logement à consommation énergétique excessive : classe G
Montant estimé des dépenses annuelles d’énergie pour un usage standard : entre 1 818,00 € et 2 460,00 € /an (abonnement compris).
Prix moyen des énergies indexées au 01/01/2023.
| Éléments financiers |
|---|
Charges : 39,00 €
Montant moyen annuel de la quote part de charges courantes : 1 472 €Détails de l’intérieur & de l’extérieur
| Pièce | Surface | Détail |
|---|---|---|
| 1x Cave | ||
| 1x Entrée | 2 m² |
Étage : 5ème Revêtement : Parquet |
| 1x Salle de douche / toilettes | 2.6 m² |
Étage : 5ème Revêtement : Carrelage |
| 1x Séjour | 14 m² | Étage : 5ème |
| 1x Chambre | 12.61 m² |
Étage : 5ème Revêtement : Parquet |
| 1x Cuisine | 4 m² |
Étage : 5ème Revêtement : Carrelage |
Prestations
Bâtiment & Copropriété
| Bâtiment |
|---|
-
Construit en : 1900
-
Nombre d'étages : 6
| Copropriété |
|---|
Montant moyen annuel de la quote part de charges courantes : 1 472 €
Procédure en cours : Non
Rencontrez votre agence
Simulateur de financement
Calculez le montant des mensualités de votre prêt immobilier correspondant à l'emprunt que vous souhaitez effectuer.
Prix du bien HAI
390 000 €
€
par mois
Vous devez vendre pour acheter ?
Nos consultants immobiliers se tiennent à votre disposition pour réaliser une estimation de la valeur de votre bien. Toutes nos estimations sont offertes.
Je fais estimer mon bienUn lieu de vie à votre image
Junot vous fait visiter les quartiers dans lesquels nos agences vous accueillent, et vous présente les spécificités et bonnes adresses.
Parcourir les quartiers









