Faisons un tour d'horizon
Référence de l’annonce : 1843CHMGIR05
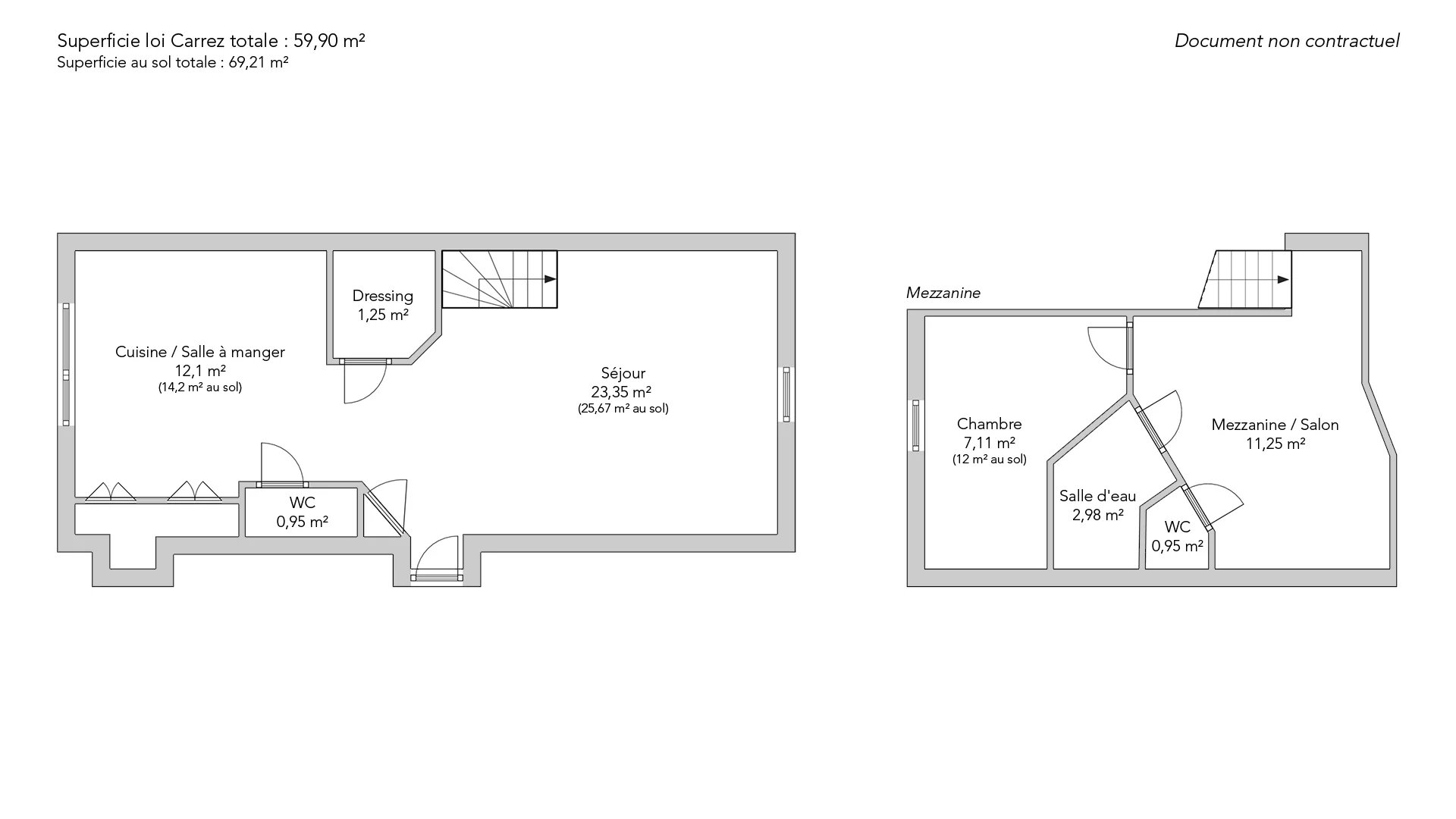
Dns un bel immeuble ancien sécurisé avec gardien, à quelques pas du jardin du Luxembourg, boulevard Saint-Michel, un charmant atelier en parfait état. Situé au cinquième par ascenseur, ce duplex lumineux de 59,90m² loi Carrez et 69,21m² au sol bénéficie de vues exceptionnelles sur les monuments de Paris, dont la tour Eiffel.
Il comporte un séjour cathédrale avec une belle hauteur sous plafond, une cuisine ouverte aménagée et équipe avec salle à manger, un dressing et deux toilettes séparées dont un sanibroyeur.
À l'étage supérieur, en mezzanine, un espace bureau et une chambre avec une vue sur la tour Eiffel et le dôme du Val de Grâce, une salle de douche et des toilettes séparées.
Ce bien calme dispose de nombreux rangements et d'une climatisation réversible.
- Habitable : 60,00 m² Total : 69,21 m²
- 3 pièces
- 1 chambre
- 1 salle de douche
- Exposition Est, Ouest
- Excellent état
- Meublé
Ce qui nous séduit
- Vue exceptionnelle
- Adresse très recherchée
- Prestations exceptionnelles
- Dernier étage
- Gardien
- Vue monument historique
- Lumineux
- Calme
- Traversant
- Ascenseur
- Vue dégagée
On vous en dit plus
Réglementations & éléments financiers
Les informations sur les risques auxquels ce bien est exposé sont disponibles sur le site Géorisques : www.georisques.gouv.fr
| Diagnostics |
|---|
Consommation énergie finale : A - 70 kWh/m²/an.
Montant estimé des dépenses annuelles d’énergie pour un usage standard : entre 800,00 € et 1 130,00 € /an (abonnement compris).
Prix moyen des énergies indexées au 01/01/2021.
| Éléments financiers |
|---|
Charges : 120,00 €
Montant moyen annuel de la quote part de charges courantes : 1 860 €Taxe foncière : 1 359,00 € /an
Détails de l’intérieur & de l’extérieur
| Pièce | Surface | Détail |
|---|---|---|
| 1x Séjour | 23.35 m² | Étage : 5ème |
| 1x Toilettes | 0.91 m² | Étage : 5ème |
| 1x Salle à manger/Cuisine | 12.1 m² | Étage : 5ème |
| 1x Bureau | 11.25 m² | Étage : 5ème |
| 1x Salle de douche | 2.98 m² | Étage : 5ème |
| 1x Chambre | 7.11 m² | Étage : 5ème |
| 1x Dressing | 1.25 m² | Étage : 5ème |
| 1x Toilettes | 0.95 m² | Étage : 5ème |
Prestations
Bâtiment & Copropriété
| Bâtiment |
|---|
-
Construit en : 1860
-
Type : Pierre
-
Nombre d'étages : 5
| Copropriété |
|---|
58 lots d'habitation
Montant moyen annuel de la quote part de charges courantes : 1 860 €
Procédure en cours : Non
Rencontrez votre agence
Simulateur de financement
Calculez le montant des mensualités de votre prêt immobilier correspondant à l'emprunt que vous souhaitez effectuer.
Prix du bien HAI
1 200 000 €
€
par mois
Vous devez vendre pour acheter ?
Nos consultants immobiliers se tiennent à votre disposition pour réaliser une estimation de la valeur de votre bien. Toutes nos estimations sont offertes.
Je fais estimer mon bienUn lieu de vie à votre image
Junot vous fait visiter les quartiers dans lesquels nos agences vous accueillent, et vous présente les spécificités et bonnes adresses.
Parcourir les quartiers











