Faisons un tour d'horizon
Référence de l’annonce : 3263GREGEN
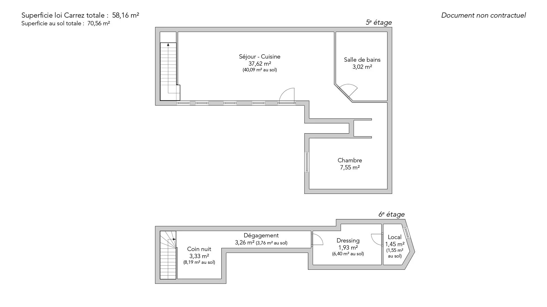
À proximité immédiate du Musée d'Orsay, rue de Bellechasse. Au dernier étage par ascenseur d'un bel immeuble en pierre de taille, un appartement en duplex de 58,16m² Carrez et 70,56m² au sol.
Il comporte au niveau principal une très belle pièce de vie avec sa cuisine ouverte, une chambre ou bureau et une salle de douche avec des toilettes.
Au second niveau, l'espace nuit complété par un dressing, un point d'eau et des toilettes.
Entièrement rénové, ce bien est unique dans le quartier.
Une cave complète cette offre.
- Habitable : 58,16 m² Total : 70,56 m²
- 3 pièces
- 1 chambre
- 1 salle de bains
- Exposition Sud-est
- Neuf
Ce qui nous séduit
- Adresse très recherchée
- Dernier étage
- Lumineux
- Calme
- Ascenseur
- Cave
On vous en dit plus
Réglementations & éléments financiers
Les informations sur les risques auxquels ce bien est exposé sont disponibles sur le site Géorisques : www.georisques.gouv.fr
| Diagnostics |
|---|
Consommation énergie finale : a - 69 kWh/m²/an.
Montant estimé des dépenses annuelles d’énergie pour un usage standard : entre 780,00 € et 1 070,00 € /an (abonnement compris).
Prix moyen des énergies indexées au 01/01/2021.
| Éléments financiers |
|---|
Détails de l’intérieur & de l’extérieur
| Pièce | Surface | Détail |
|---|---|---|
| 1x Cave | ||
| 1x Séjour/cuisine | 37.62 m² |
Étage : 5ème Exposition : Sud-est Revêtement : Parquet |
| 1x Salle de bains | 3.02 m² |
Étage : 5ème Revêtement : Carrelage |
| 1x Chambre | 7.55 m² |
Étage : 5ème Revêtement : Parquet |
| 1x Pièce de vie | 3.33 m² |
Étage : 6ème Revêtement : Parquet |
| 1x Dégagement | 3.26 m² |
Étage : 6ème Revêtement : Parquet |
| 1x Dressing | 1.93 m² |
Étage : 6ème Revêtement : Parquet |
| 1x Local technique | 1.45 m² |
Étage : 6ème Revêtement : Parquet |
Prestations
Bâtiment & Copropriété
| Bâtiment |
|---|
-
Construit en : 1900
-
Type : Pierre de taille
-
Nombre d'étages : 6
| Copropriété |
|---|
Montant moyen annuel de la quote part de charges courantes : 4 044 €
Procédure en cours : Non
Rencontrez votre agence
Simulateur de financement
Calculez le montant des mensualités de votre prêt immobilier correspondant à l'emprunt que vous souhaitez effectuer.
Prix du bien HAI
1 050 000 €
€
par mois
Vous devez vendre pour acheter ?
Nos consultants immobiliers se tiennent à votre disposition pour réaliser une estimation de la valeur de votre bien. Toutes nos estimations sont offertes.
Je fais estimer mon bienUn lieu de vie à votre image
Junot vous fait visiter les quartiers dans lesquels nos agences vous accueillent, et vous présente les spécificités et bonnes adresses.
Parcourir les quartiers











