Faisons un tour d'horizon
Référence de l’annonce : 5719JASHEN
Idéalement situé à proximité immédiate du village d’Auteuil, des commerces de la rue du Docteur Blanche et de l’avenue Mozart, cet appartement traversant de 74,12m² se trouve au cinquième étage d’une résidence récente de standing avec gardien, dont les parties communes ont été entièrement rénovées.
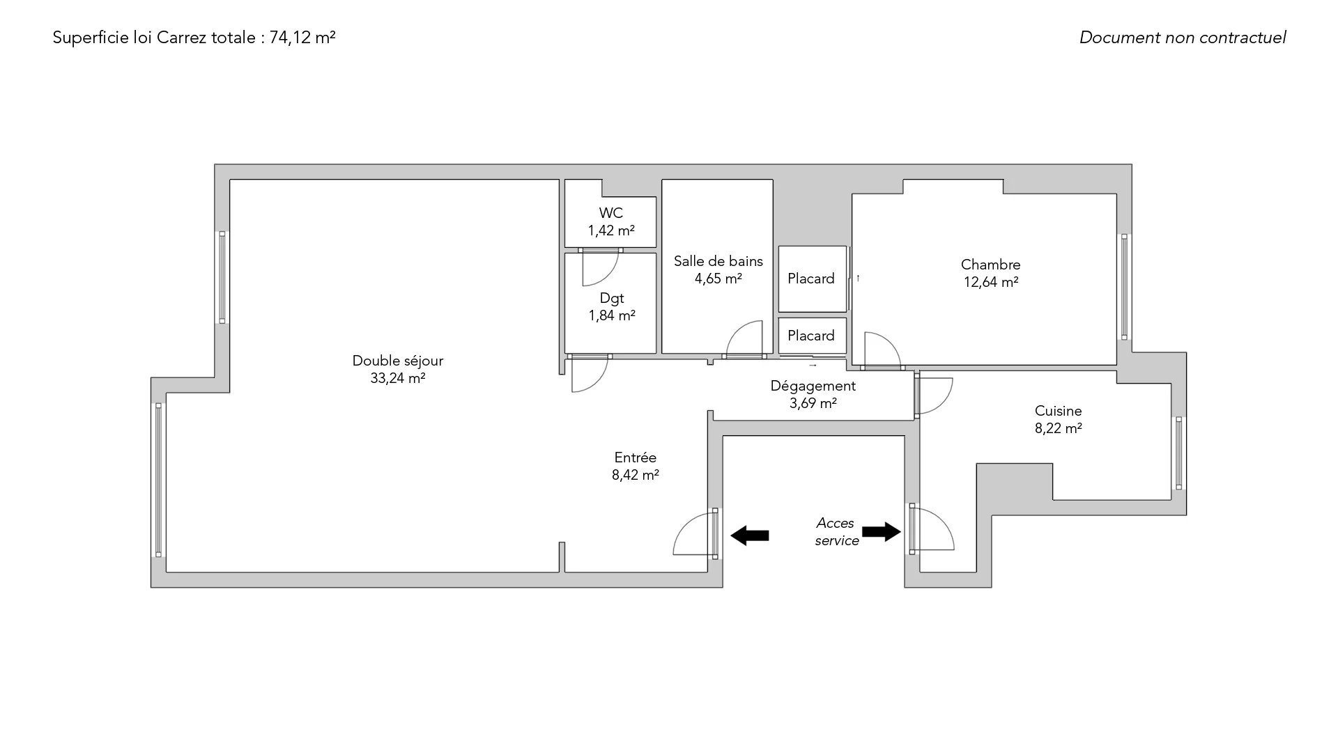
Il comporte une entrée, un double séjour, une cuisine aménagée et équipée, une chambre, une salle de bains, des toilettes séparées et de nombreux rangements.
Baigné de lumière grâce à sa double exposition est-ouest et offrant de belles vues dégagées sur la verdure, il bénéficie d’un agencement fonctionnel et équilibré.
Une cave complète ce bien.
- Habitable : 74,12 m²
- 3 pièces
- 1 chambre
- 1 salle de bains
- Étage 5/11
- Exposition Est, Ouest
- Excellent état
Ce qui nous séduit
- Gardien
- Ascenseur
- Cave
On vous en dit plus
Réglementations & éléments financiers
Les informations sur les risques auxquels ce bien est exposé sont disponibles sur le site Géorisques : www.georisques.gouv.fr
| Diagnostics |
|---|
Consommation énergie finale : D - 184 kWh/m²/an.
Montant estimé des dépenses annuelles d’énergie pour un usage standard : entre 1 120,00 € et 1 540,00 € /an (abonnement compris).
Prix moyen des énergies indexées au 01/01/2021.
| Éléments financiers |
|---|
Détails de l’intérieur & de l’extérieur
| Pièce | Surface | Détail |
|---|---|---|
| 1x Cave | ||
| 1x Entrée | 8.42 m² | Étage : 5ème |
| 1x Séjour | 33.24 m² |
Étage : 5ème Exposition : Ouest |
| 1x Cuisine | 8.22 m² | Étage : 5ème |
| 1x Chambre | 12.64 m² |
Étage : 5ème Exposition : Est |
| 1x Salle de bains | 4.65 m² | Étage : 5ème |
| 1x Dégagement | 1.84 m² | Étage : 5ème |
| 1x Dégagement | 3.69 m² | Étage : 5ème |
| 1x Toilettes | 1.42 m² | Étage : 5ème |
Prestations
Bâtiment & Copropriété
| Bâtiment |
|---|
-
Construit en : 1966
-
Nombre d'étages : 11
| Copropriété |
|---|
82 lots d'habitation
Montant moyen annuel de la quote part de charges courantes : 3 924 €
Procédure en cours : Non
Rencontrez votre agence
Simulateur de financement
Calculez le montant des mensualités de votre prêt immobilier correspondant à l'emprunt que vous souhaitez effectuer.
Prix du bien HAI
850 000 €
€
par mois
Vous devez vendre pour acheter ?
Nos consultants immobiliers se tiennent à votre disposition pour réaliser une estimation de la valeur de votre bien. Toutes nos estimations sont offertes.
Je fais estimer mon bienUn lieu de vie à votre image
Junot vous fait visiter les quartiers dans lesquels nos agences vous accueillent, et vous présente les spécificités et bonnes adresses.
Parcourir les quartiers












