Faisons un tour d'horizon
Référence de l’annonce : 3258GREANN
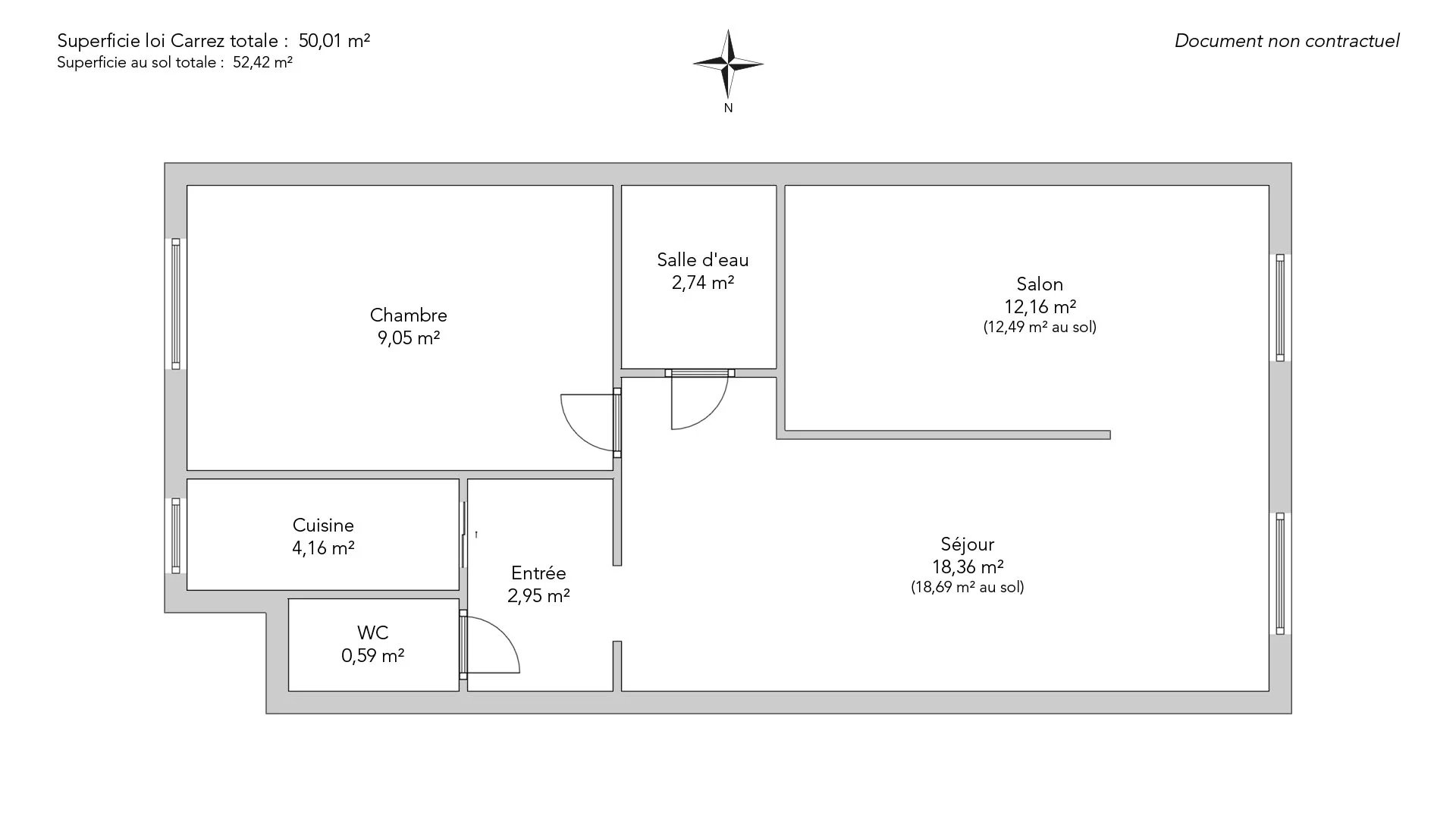
À proximité de l'École Militaire et des commerces, dans une rue calme, ravissant appartement lumineux et traversant de 50,01m² loi Carrez situé au quatrième étage par ascenseur.
Il comporte un double séjour donnant sur rue, une cuisine séparée aménagée et équipée sur cour, une chambre au grand calme sur cour, un dressing, une salle de douche attenante à la chambre et des toilettes séparées avec fenêtre.
Une cave complète cette offre.
- Habitable : 50,01 m² Total : 50,67 m²
- 3 pièces
- 1 chambre
- 1 salle de douche
- Étage 4/5
- Exposition Est, Ouest
- Bon état
Ce qui nous séduit
- Ascenseur
- Cave
On vous en dit plus
Réglementations & éléments financiers
Les informations sur les risques auxquels ce bien est exposé sont disponibles sur le site Géorisques : www.georisques.gouv.fr
| Diagnostics |
|---|
Consommation énergie finale : a - 311 kWh/m²/an.
Montant estimé des dépenses annuelles d’énergie pour un usage standard : entre 1 270,00 € et 1 770,00 € /an (abonnement compris).
| Éléments financiers |
|---|
Taxe foncière : 1 222,00 € /an
Détails de l’intérieur & de l’extérieur
| Pièce | Surface | Détail |
|---|---|---|
| 1x Cave | Étage : -1 | |
| 1x Entrée | 2.95 m² |
Étage : 4ème Revêtement : Moquette |
| 1x Toilettes | 0.59 m² |
Étage : 4ème Revêtement : Carrelage |
| 1x Cuisine | 4.16 m² |
Étage : 4ème Exposition : Sud Revêtement : Carrelage |
| 1x Salle à manger | 12.16 m² |
Étage : 4ème Exposition : Est Revêtement : Moquette |
| 1x Séjour | 18.36 m² |
Étage : 4ème Exposition : Est Revêtement : Moquette |
| 1x Chambre | 9.05 m² |
Étage : 4ème Revêtement : Moquette |
| 1x Salle de douche | 2.74 m² |
Étage : 4ème Revêtement : Carrelage |
Prestations
Bâtiment & Copropriété
| Bâtiment |
|---|
-
Construit en : 1869
-
Nombre d'étages : 5
-
Niveau de qualité : Normal
| Copropriété |
|---|
21 lots d'habitation
Montant moyen annuel de la quote part de charges courantes : 1 836 €
Procédure en cours : Non
Rencontrez votre agence
Simulateur de financement
Calculez le montant des mensualités de votre prêt immobilier correspondant à l'emprunt que vous souhaitez effectuer.
Prix du bien HAI
790 000 €
€
par mois
Vous devez vendre pour acheter ?
Nos consultants immobiliers se tiennent à votre disposition pour réaliser une estimation de la valeur de votre bien. Toutes nos estimations sont offertes.
Je fais estimer mon bienUn lieu de vie à votre image
Junot vous fait visiter les quartiers dans lesquels nos agences vous accueillent, et vous présente les spécificités et bonnes adresses.
Parcourir les quartiers










