Faisons un tour d'horizon
Référence de l’annonce : 2226PASTHI
Au calme et à proximité immédiate des commerces de la rue de Passy.
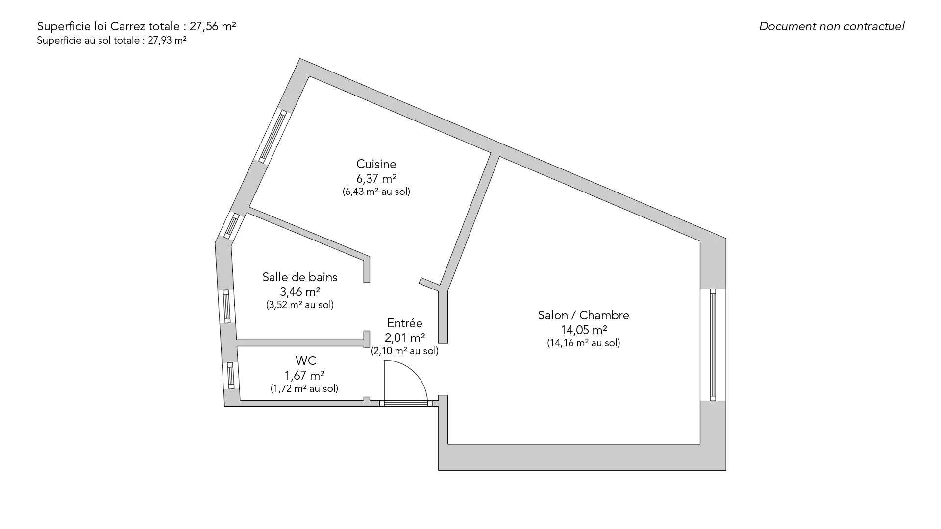
Au troisième étage par ascenseur, ce studio en parfait état d'une superficie de 27,56m² loi Carrez offre tout le charme de l'ancien avec parquet et cheminée.
Son plan en étoile comporte une entrée, un séjour, une cuisine séparée, une salle de bain, des toilettes séparées.
EXCLUSIVITÉ
- Habitable : 27,56 m² Total : 27,93 m²
- 1 pièce
- suite
- 1 salle de bains
- Étage 3/5
- Exposition Ouest
- Excellent état
Ce qui nous séduit
- Adresse très recherchée
- Lumineux
- Calme
- Traversant
- Ascenseur
On vous en dit plus
Réglementations & éléments financiers
Les informations sur les risques auxquels ce bien est exposé sont disponibles sur le site Géorisques : www.georisques.gouv.fr
| Diagnostics |
|---|
| Éléments financiers |
|---|
Détails de l’intérieur & de l’extérieur
| Pièce | Surface | Détail |
|---|---|---|
| 1x Pièce de vie | 14.05 m² | Étage : 3ème |
| 1x Cuisine | 6.37 m² | Étage : 3ème |
| 1x Salle de bains | 3.46 m² | Étage : 3ème |
| 1x Toilettes | 1.67 m² | Étage : 3ème |
| 1x Dégagement | 2.01 m² | Étage : 3ème |
Prestations
Bâtiment & Copropriété
| Bâtiment |
|---|
-
Construit en : 1870
-
Nombre d'étages : 5
-
Niveau de qualité : Normal
| Copropriété |
|---|
Procédure en cours : Non
Rencontrez votre agence
Simulateur de financement
Calculez le montant des mensualités de votre prêt immobilier correspondant à l'emprunt que vous souhaitez effectuer.
Prix du bien HAI
373 000 €
€
par mois
Vous devez vendre pour acheter ?
Nos consultants immobiliers se tiennent à votre disposition pour réaliser une estimation de la valeur de votre bien. Toutes nos estimations sont offertes.
Je fais estimer mon bienUn lieu de vie à votre image
Junot vous fait visiter les quartiers dans lesquels nos agences vous accueillent, et vous présente les spécificités et bonnes adresses.
Parcourir les quartiers













