Faisons un tour d'horizon
Référence de l’annonce : 2870WAGBOU
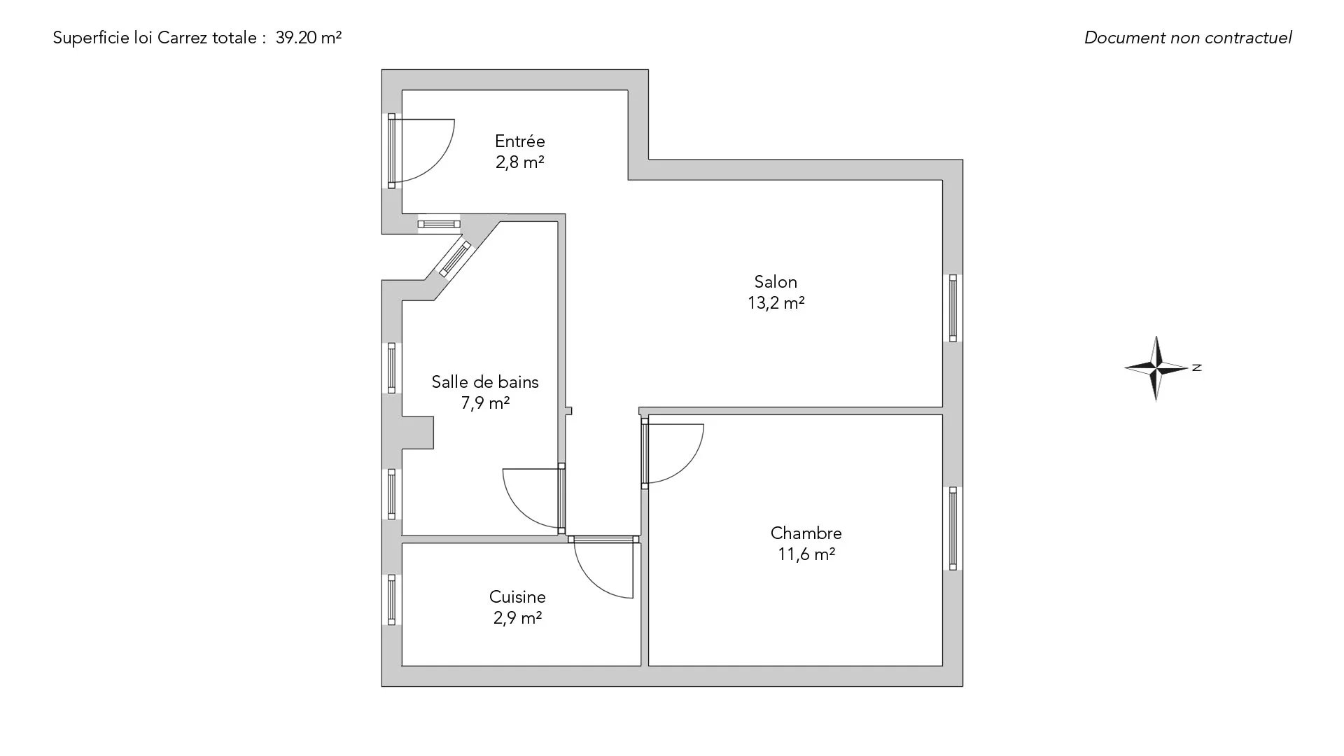
Au sein d’un bel immeuble art déco, à proximité immédiate des commerces et transports, cet appartement lumineux et traversant de 39,40m² loi Carrez se situe au deuxième étage par ascenseur.
Le plan parfaitement optimisé offre une entrée, une grande pièce de vie bénéficiant d'une très belle hauteur sous plafond de 3,35m et d’une vue dégagée sur le ciel, une cuisine équipée, une agréable chambre, une salle de douche avec toilettes.
Une cave complète cette offre.
L'appartement est en excellent état, récemment rénové.
EXCLUSIVITÉ.
- Habitable : 39,20 m²
- 2 pièces
- 1 chambre
- 1 salle de douche
- Exposition Nord-est
- Excellent état
Ce qui nous séduit
- Gardien
- Lumineux
- Calme
- Traversant
- Ascenseur
- Vue dégagée
On vous en dit plus
Réglementations & éléments financiers
Les informations sur les risques auxquels ce bien est exposé sont disponibles sur le site Géorisques : www.georisques.gouv.fr
| Diagnostics |
|---|
Consommation énergie finale : E - 315 kWh/m²/an.
Montant estimé des dépenses annuelles d’énergie pour un usage standard : entre 1 070,00 € et 1 460,00 € /an (abonnement compris).
Prix moyen des énergies indexées au 01/01/2021.
| Éléments financiers |
|---|
Taxe foncière : 958,00 € /an
Détails de l’intérieur & de l’extérieur
| Pièce | Surface | Détail |
|---|---|---|
| 1x Séjour | 13.2 m² |
Étage : 2ème Exposition : Nord-est Plafond : 3.35m |
| 1x Entrée | 2.8 m² | Étage : 2ème |
| 1x Chambre | 11.6 m² | Étage : 2ème |
| 1x Salle de douche / toilettes | 7.9 m² | Étage : 2ème |
| 1x Cuisine | 2.9 m² | Étage : 2ème |
| 1x Dégagement | 0.8 m² | Étage : 2ème |
Prestations
Bâtiment & Copropriété
| Bâtiment |
|---|
-
Construit en : 1900
-
Niveau de qualité : Standing
| Copropriété |
|---|
38 lots d'habitation
Montant moyen annuel de la quote part de charges courantes : 2 900 €
Procédure en cours : Non
Rencontrez votre agence
Simulateur de financement
Calculez le montant des mensualités de votre prêt immobilier correspondant à l'emprunt que vous souhaitez effectuer.
Prix du bien HAI
450 000 €
€
par mois
Vous devez vendre pour acheter ?
Nos consultants immobiliers se tiennent à votre disposition pour réaliser une estimation de la valeur de votre bien. Toutes nos estimations sont offertes.
Je fais estimer mon bienUn lieu de vie à votre image
Junot vous fait visiter les quartiers dans lesquels nos agences vous accueillent, et vous présente les spécificités et bonnes adresses.
Parcourir les quartiers












