Faisons un tour d'horizon
Référence de l’annonce : 3423BTLGRA
Dans un très bel immeuble de grand standing, boulevard Jean Mermoz, appartement familial en duplex offrant de beaux volumes, une distribution fluide et des prestations de qualité.
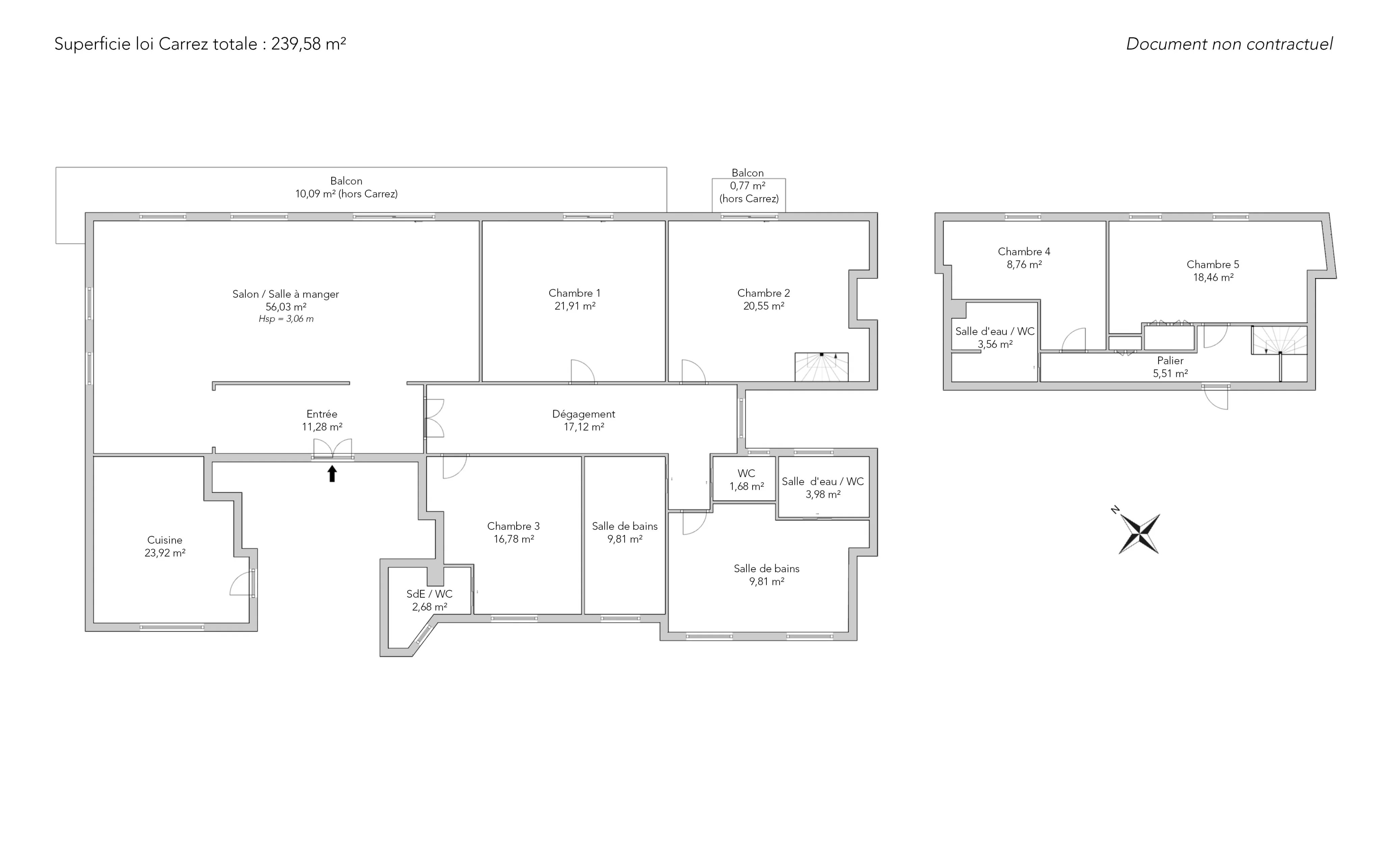
L’appartement s’ouvre sur une belle entrée desservant un vaste espace de réception composé d’un salon et d’une salle à manger, avec une cuisine élégante et fonctionnelle, l’ensemble bénéficiant d’une agréable luminosité et prolongé par un grand balcon.
La partie nuit comprend cinq chambres de belle taille, ainsi qu’une chambre de service. L’appartement dispose de trois salles de douche avec toilettes, d’une salle de bains, ainsi que d’un toilette séparé, offrant un confort optimal pour une vie familiale.
Une double cave complète ce bien. Possibilité de stationnement à proximité immédiate.
- Habitable : 239,58 m² Total : 243,13 m²
- 8 pièces
- 6 chambres
- 1 salle de bains
- 3 salles de douche
- Exposition Nord-est, Sud-ouest
- Excellent état
Ce qui nous séduit
- Balcon/Terrasse
- Adresse très recherchée
- Gardien
- Calme
- Ascenseur
- Cave
On vous en dit plus
Réglementations & éléments financiers
Les informations sur les risques auxquels ce bien est exposé sont disponibles sur le site Géorisques : www.georisques.gouv.fr
| Diagnostics |
|---|
Consommation énergie finale : E - 261 kWh/m²/an.
Logement à consommation énergétique excessive : classe F
Montant estimé des dépenses annuelles d’énergie pour un usage standard : entre 8 170,00 € et 11 070,00 € /an (abonnement compris).
Prix moyen des énergies indexées au 01/01/2021.
| Éléments financiers |
|---|
Taxe foncière : 3 236,00 € /an
Détails de l’intérieur & de l’extérieur
| Pièce | Surface | Détail |
|---|---|---|
| 1x Cave | 8.92 m² | Étage : Sous-sol |
| 1x Cave | 8.55 m² | Étage : Sous-sol |
| 1x Entrée | 11.28 m² | Étage : 4ème |
| 1x Salon | 56.03 m² | Étage : 4ème |
| 1x Cuisine | 23.92 m² | Étage : 4ème |
| 1x Dégagement | 17.12 m² | Étage : 4ème |
| 1x Chambre | 21.91 m² | Étage : 4ème |
| 1x Chambre | 20.55 m² | Étage : 4ème |
| 1x Toilettes | 1.68 m² | Étage : 4ème |
| 1x Chambre | 17.55 m² | Étage : 4ème |
| 1x Salle de douche / toilettes | 3.98 m² | Étage : 4ème |
| 1x Salle de bains | 9.81 m² | Étage : 4ème |
| 1x Chambre | 16.78 m² | Étage : 4ème |
| 1x Salle de douche / toilettes | 2.68 m² | Étage : 4ème |
| 1x Balcon | 10.09 m² | Étage : 4ème |
| 1x Balcon | 0.77 m² | Étage : 4ème |
| 1x Palier | 5.51 m² | Étage : 5ème |
| 1x Salle de douche / toilettes | 3.56 m² | Étage : 5ème |
| 1x Chambre | 8.76 m² | Étage : 5ème |
| 1x Chambre | 18.46 m² | Étage : 5ème |
Prestations
Bâtiment & Copropriété
| Bâtiment |
|---|
-
Construit en : 1900
-
Niveau de qualité : Luxe
| Copropriété |
|---|
7 lots d'habitation
Montant moyen annuel de la quote part de charges courantes : 17 160 €
Procédure en cours : Non
Rencontrez votre agence
Simulateur de financement
Calculez le montant des mensualités de votre prêt immobilier correspondant à l'emprunt que vous souhaitez effectuer.
Prix du bien HAI
3 690 000 €
€
par mois
Vous devez vendre pour acheter ?
Nos consultants immobiliers se tiennent à votre disposition pour réaliser une estimation de la valeur de votre bien. Toutes nos estimations sont offertes.
Je fais estimer mon bienUn lieu de vie à votre image
Junot vous fait visiter les quartiers dans lesquels nos agences vous accueillent, et vous présente les spécificités et bonnes adresses.
Parcourir les quartiers









