• Exclusivité

Appartement
Levallois-Perret - CENTRE

2 150 000 €

Honoraires à la charge du vendeur

Barème des prestations Simuler votre financement

Ce bien vous plaît ?

Faisons un tour d'horizon

Référence de l’annonce : 2989WAGDAH

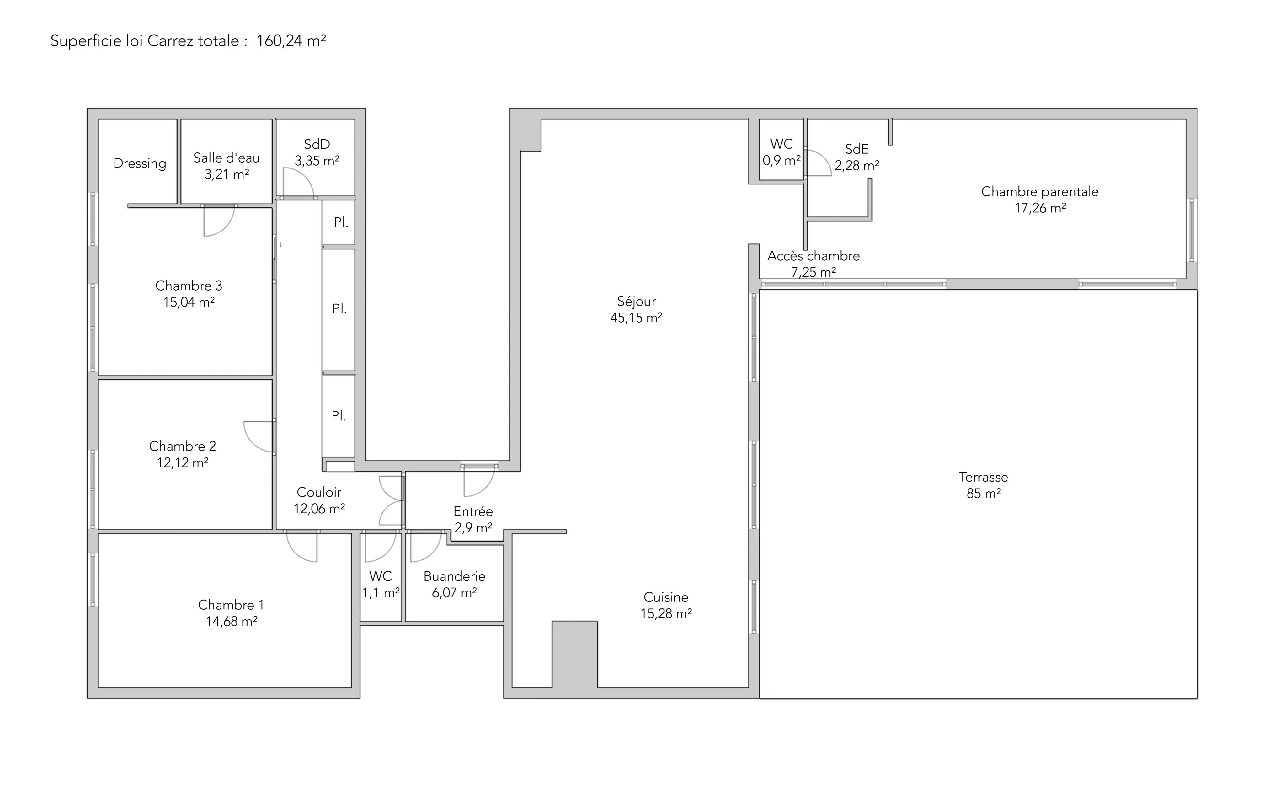
Au sein d’une copropriété de standing bien entretenue, au 1er étage avec ascenseur, découvrez ce bel appartement traversant de 160,24 m² loi Carrez, bénéficiant d’une superbe terrasse de 85 m².

Il se compose d’une entrée, d’une buanderie, d’une cuisine équipée semi-ouverte sur un vaste séjour, de 60 m², ainsi que d’une suite parentale avec salle de douche, des toilettes séparées. Chambre parentale et pièce de vie donnent sur la terrasse de plain-pied.

L’espace nuit comprend trois chambres, deux salles de douche et deux cabinets de toilettes.

L’appartement séduit par son calme, sa belle luminosité, son agencement optimisé sans perte de place et ses nombreux rangements.

Deux places de parking en sous-sol complètent ce bien.

Localisation recherchée, idéale pour une vie de famille, à proximité des commerces, transports et écoles.

EXCLUSIVITÉ.

  • Habitable : 160,24 m² Total : 247,18 m²
  • 5 pièces
  • 4 chambres
  • 3 salles de douche
  • Étage 1/6
  • Exposition Nord-est
  • Excellent état

Ce qui nous séduit

  • Balcon/Terrasse
  • Lumineux
  • Calme
  • Traversant
  • Parking
  • Ascenseur

On vous en dit plus

Réglementations & éléments financiers

Les informations sur les risques auxquels ce bien est exposé sont disponibles sur le site Géorisques : www.georisques.gouv.fr


Diagnostics

DPE Graph GES Graph

Consommation énergie finale : a - 60 kWh/m²/an.
Montant estimé des dépenses annuelles d’énergie pour un usage standard : entre 1 720,00 € et 2 370,00 € /an (abonnement compris).
Prix moyen des énergies indexées au 01/01/2023.


Éléments financiers
Montant moyen annuel de la quote part de charges courantes : 5 200 €

Taxe foncière : 2 961,00 € /an

Détails de l’intérieur & de l’extérieur

Pièce Surface Détail
2x Parking Étage : Sous-sol
1x Entrée 2.9 m² Étage : 1er
1x Séjour 45.15 m² Étage : 1er
1x Terrasse 85.83 m² Étage : 1er
1x Couloir 12.06 m² Étage : 1er
1x Toilettes 1.1 m² Étage : 1er
1x Cuisine 15.28 m² Étage : 1er
1x Toilettes 1.59 m² Étage : 1er
1x Chambre 14.68 m² Étage : 1er
1x Chambre 12.12 m² Étage : 1er
1x Chambre 15.04 m² Étage : 1er
1x Salle de douche 3.21 m² Étage : 1er
1x Salle de douche 2.28 m² Étage : 1er
1x Chambre de maître 17.26 m² Étage : 1er
1x Buanderie 3.35 m² Étage : 1er
1x Toilettes 0.9 m² Étage : 1er
1x Salle de douche 6.07 m² Étage : 1er

Prestations

☑ Internet
☑ Ascenseur
☑ Double vitrage
☑ Interphone
☑ Digicode

Bâtiment & Copropriété

Bâtiment
  • Construit en : 2006
  • Nombre d'étages : 6

Copropriété

21 lots d'habitation
Montant moyen annuel de la quote part de charges courantes : 5 200 €
Procédure en cours : Non

Simulateur de financement

Calculez le montant des mensualités de votre prêt immobilier correspondant à l'emprunt que vous souhaitez effectuer.

Prix du bien HAI

2 150 000 €

Ce calcul prend en compte des droits d'enregistrement de 7 %.

par mois

Ceci est une simulation, seule votre banque peut vous donner une valeur précise. Nos consultants sont à votre disposition pour vous accompagner.
Être recontacté

Ces biens pourraient aussi vous intéresser

    Vous devez vendre pour acheter ?

    Nos consultants immobiliers se tiennent à votre disposition pour réaliser une estimation de la valeur de votre bien. Toutes nos estimations sont offertes.

    Je fais estimer mon bien

    Un lieu de vie à votre image

    Junot vous fait visiter les quartiers dans lesquels nos agences vous accueillent, et vous présente les spécificités et bonnes adresses.

    Parcourir les quartiers
Je souhaite visiter
Souhaitez-vous vraiment quitter la page ?
Souhaitez-vous vraiment quitter la page ?
Souhaitez-vous vraiment quitter la page ?
Souhaitez-vous vraiment quitter la page ?
Souhaitez-vous vraiment quitter la page ?
Souhaitez-vous vraiment quitter la page ?
Souhaitez-vous vraiment quitter la page ?
Souhaitez-vous vraiment quitter la page ?
Souhaitez-vous vraiment quitter la page ?
Souhaitez-vous vraiment quitter la page ?
Souhaitez-vous vraiment quitter la page ?