Faisons un tour d'horizon
Référence de l’annonce : 5844JASPEI
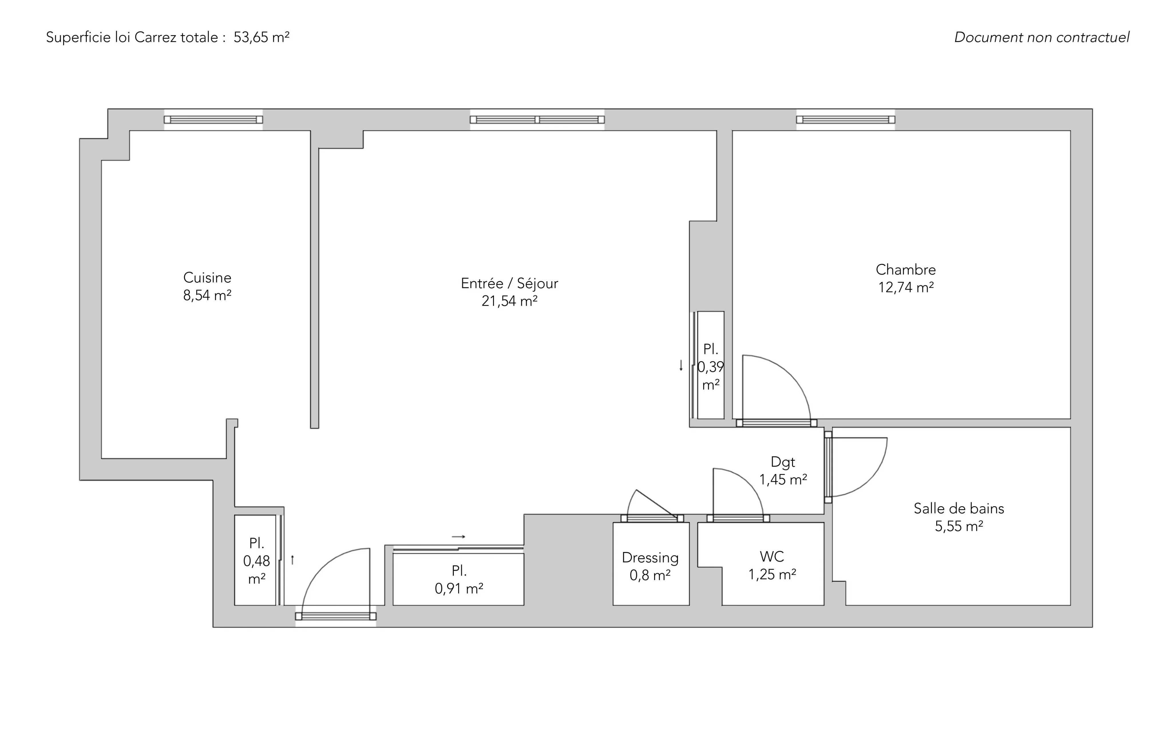
Proche du village d'Auteuil, au premier étage par ascenseur d’un immeuble sécurisé et bien entretenu, appartement de 53,65m² loi Carrez récemment refait à neuf.
Son plan comporte une entrée, un spacieux séjour lumineux orienté plein sud, une cuisine indépendante, une chambre au calme, une salle de bains et des toilettes séparées.
De nombreux rangements optimisent l’ensemble.
Une cave complète ce bien.
Gardien, vidéosurveillance 24/7, digicode.
À proximité immédiate du Parc Sainte-Périne.
- Habitable : 53,65 m²
- 2 pièces
- 1 chambre
- 1 salle de bains
- Étage 1/8
- Exposition Sud
- Neuf
Ce qui nous séduit
- Gardien
- Lumineux
- Calme
- Ascenseur
- Cave
- Vue dégagée
On vous en dit plus
Réglementations & éléments financiers
Les informations sur les risques auxquels ce bien est exposé sont disponibles sur le site Géorisques : www.georisques.gouv.fr
| Diagnostics |
|---|
Consommation énergie finale : a - 267 kWh/m²/an.
Montant estimé des dépenses annuelles d’énergie pour un usage standard : entre 1 170,00 € et 1 590,00 € /an (abonnement compris).
Prix moyen des énergies indexées au 01/01/2021.
| Éléments financiers |
|---|
Détails de l’intérieur & de l’extérieur
| Pièce | Surface | Détail |
|---|---|---|
| 1x Cave | ||
| 1x Séjour | 21.54 m² | Étage : 1er |
| 1x Bibliothèque | 0.39 m² | Étage : 1er |
| 1x Cuisine | 8.54 m² | Étage : 1er |
| 1x Chambre | 12.74 m² | Étage : 1er |
| 1x Salle de bains | 5.55 m² | Étage : 1er |
| 1x Toilettes | 1.25 m² | Étage : 1er |
| 1x Dressing | 0.8 m² | Étage : 1er |
| 1x Placard | 0.48 m² | Étage : 1er |
| 1x Placard | 0.91 m² | Étage : 1er |
| 1x Dégagement | 1.45 m² | Étage : 1er |
Prestations
Bâtiment & Copropriété
| Bâtiment |
|---|
-
Construit en : 1932
-
Nombre d'étages : 8
| Copropriété |
|---|
206 lots d'habitation
Montant moyen annuel de la quote part de charges courantes : 2 640 €
Procédure en cours : Non
Rencontrez votre agence
Simulateur de financement
Calculez le montant des mensualités de votre prêt immobilier correspondant à l'emprunt que vous souhaitez effectuer.
Prix du bien HAI
560 000 €
€
par mois
Vous devez vendre pour acheter ?
Nos consultants immobiliers se tiennent à votre disposition pour réaliser une estimation de la valeur de votre bien. Toutes nos estimations sont offertes.
Je fais estimer mon bienUn lieu de vie à votre image
Junot vous fait visiter les quartiers dans lesquels nos agences vous accueillent, et vous présente les spécificités et bonnes adresses.
Parcourir les quartiers













