Faisons un tour d'horizon
Référence de l’annonce : 3535BTLSLA
Superbe Penthouse situé au neuvième et dernier étage d'un immeuble de standing avec une terrasse panoramique de 61m² de plain-pied sans vis à vis et profitant d'une triple exposition est, sud et ouest.
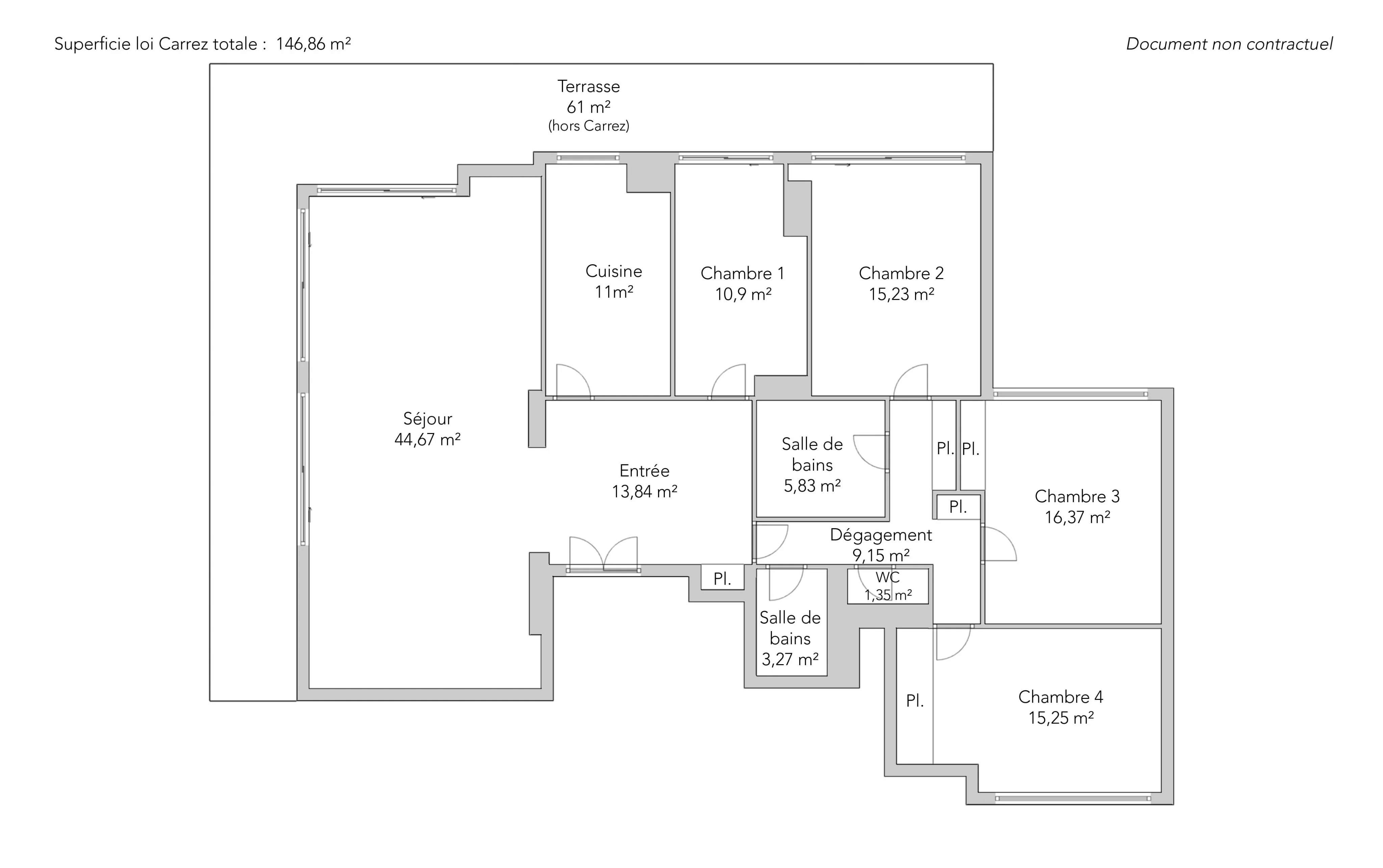
Idéalement situé à deux pas de la rue Daguerre, dans le quartier de l'Observatoire, cet appartement d’angle développe une superficie de 146,86m² loi Carrez.
Il est agencé de la façon suivante : une entrée, une cuisine indépendante, un double séjour de plain-pied sur la terrasse, quatre chambres, une salle de bains, une salle de douche avec toilette. Un second toilette séparé. De nombreux rangements.
Il vous séduira par ses volumes et son plan traversant sans perte d'espace, son ensoleillement et ses vues dégagées.
Une cave et un parking en deuxième sous-sol complètent ce bien.
En supplément, une chambre de service de 16.49m² carrez, au 1er étage est proposée 175 000 €.
- Habitable : 146,86 m²
- 6 pièces
- 4 chambres
- 1 salle de bains
- 1 salle de douche
- Étage 9/9
- Exposition Sud-est
- Bon état
Ce qui nous séduit
- Vue exceptionnelle
- Balcon/Terrasse
- Dernier étage
- Lumineux
- Calme
- Traversant
- Ascenseur
- Vue dégagée
On vous en dit plus
Réglementations & éléments financiers
Les informations sur les risques auxquels ce bien est exposé sont disponibles sur le site Géorisques : www.georisques.gouv.fr
| Diagnostics |
|---|
Consommation énergie finale : a - 410 kWh/m²/an.
Logement à consommation énergétique excessive : classe F
Montant estimé des dépenses annuelles d’énergie pour un usage standard : entre 4 650,00 € et 6 340,00 € /an (abonnement compris).
Prix moyen des énergies indexées au 01/01/2023.
| Éléments financiers |
|---|
Détails de l’intérieur & de l’extérieur
| Pièce | Surface | Détail |
|---|---|---|
| 1x Entrée | 13.84 m² | Étage : 9ème |
| 1x Séjour | 44.67 m² | Étage : 9ème |
| 1x Cuisine | 11 m² | Étage : 9ème |
| 1x Chambre | 10.9 m² | Étage : 9ème |
| 1x Chambre | 15.23 m² | Étage : 9ème |
| 1x Chambre | 16.37 m² | Étage : 9ème |
| 1x Chambre | 15.25 m² | Étage : 9ème |
| 1x Salle de bains / toilettes | 5.83 m² | Étage : 9ème |
| 1x Salle de douche | 3.27 m² | Étage : 9ème |
| 1x Toilettes | 1.35 m² | Étage : 9ème |
| 1x Terrasse | 61 m² | Étage : 9ème |
| 1x Dégagement | 9.15 m² | Étage : 9ème |
Prestations
Bâtiment & Copropriété
| Bâtiment |
|---|
-
Construit en : 1963
-
Type : Béton armé
-
Nombre d'étages : 9
-
Niveau de qualité : Standing
| Copropriété |
|---|
138 lots d'habitation
Montant moyen annuel de la quote part de charges courantes : 9 560 €
Procédure en cours : Non
Rencontrez votre agence
Simulateur de financement
Calculez le montant des mensualités de votre prêt immobilier correspondant à l'emprunt que vous souhaitez effectuer.
Prix du bien HAI
2 500 000 €
€
par mois
Vous devez vendre pour acheter ?
Nos consultants immobiliers se tiennent à votre disposition pour réaliser une estimation de la valeur de votre bien. Toutes nos estimations sont offertes.
Je fais estimer mon bienUn lieu de vie à votre image
Junot vous fait visiter les quartiers dans lesquels nos agences vous accueillent, et vous présente les spécificités et bonnes adresses.
Parcourir les quartiers











