Faisons un tour d'horizon
Référence de l’annonce : 2009VHUVID
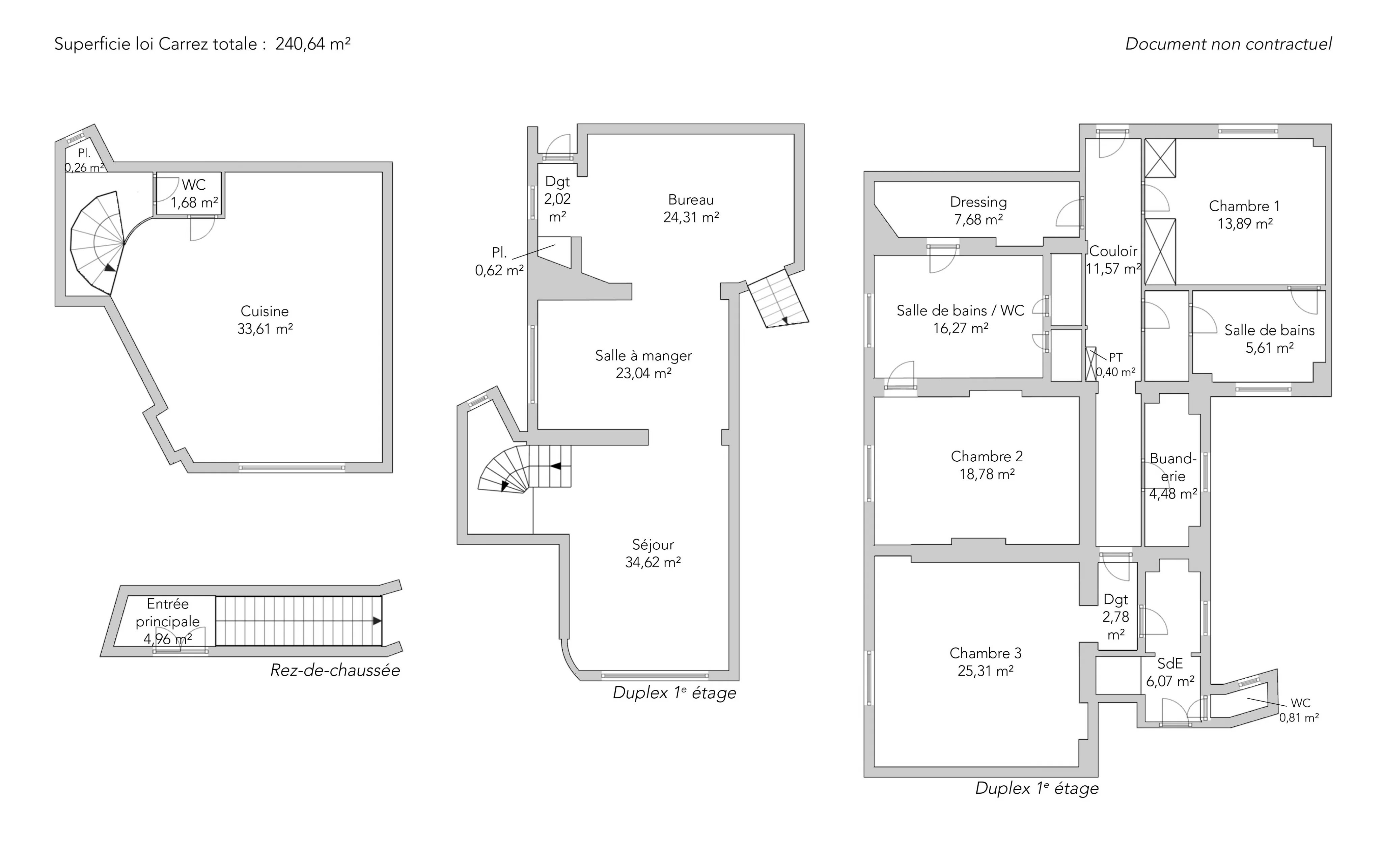
Au sein d’un très bel immeuble haussmannien en pierre de taille de l’avenue Foch, appartement d’exception de 240,64m² loi Carrez, entièrement repensé par l’architecte Pierre Yovanovitch.
L’entrée s’ouvre sur une élégante galerie desservant un vaste séjour baigné de lumière, bénéficiant d’une vue dégagée sur les arbres de l’avenue. Une salle à manger indépendante ainsi qu’un bureau complètent les espaces de réception.
Le mobilier du salon, de la salle à manger ainsi que les têtes de lit sont signés Maison Bentley, conférant à l’ensemble un niveau de prestation particulièrement haut de gamme.
L’espace nuit comprend trois suites. La suite parentale dispose d’un dressing et d’une salle de bains. Les deux autres chambres bénéficient chacune de leur salle d’eau. L’une d’elles, accessible par la porte de service, offre une indépendance appréciable.
En niveau inférieur, une vaste cuisine dînatoire s’ouvre sur un jardin paysager privatif signé Camille Muller, à l’abri des regards.
L’appartement bénéficie d’une insonorisation complète et de menuiseries à quadruple vitrage. Chauffage collectif au gaz, eau chaude individuelle.
Un bien rare alliant le charme de l’ancien à des prestations contemporaines de très haut niveau.
- Habitable : 240,64 m² Total : 310,64 m²
- 6 pièces
- 3 chambres
- 2 salles de bains
- 1 salle de douche
- Cheminée
- Exposition Sud
- Excellent état
- Meublé
Ce qui nous séduit
- Jardin
- Adresse très recherchée
- Gardien
- Lumineux
- Calme
- Ascenseur
- Cave
- Vue dégagée
On vous en dit plus
Réglementations & éléments financiers
Les informations sur les risques auxquels ce bien est exposé sont disponibles sur le site Géorisques : www.georisques.gouv.fr
| Diagnostics |
|---|
Consommation énergie finale : a - 92 kWh/m²/an.
Montant estimé des dépenses annuelles d’énergie pour un usage standard : entre 4 670,00 € et 6 390,00 € /an (abonnement compris).
Prix moyen des énergies indexées au 01/01/2023.
| Éléments financiers |
|---|
Taxe foncière : 6 574,00 € /an
Détails de l’intérieur & de l’extérieur
| Pièce | Surface | Détail |
|---|---|---|
| 1x Jardin | ||
| 1x Cave | Étage : Sous-sol | |
| 1x Entrée | 4.96 m² | Étage : Rez-de-chaussée |
| 1x Cuisine | 33.61 m² | Étage : Rez-de-chaussée |
| 1x Toilettes | 1.68 m² | Étage : Rez-de-chaussée |
| 1x Dégagement | 0.26 m² | Étage : Rez-de-chaussée |
| 1x Séjour | 34.62 m² | Étage : 1er |
| 1x Salle à manger | 23.04 m² | Étage : 1er |
| 1x Bureau | 24.31 m² | Étage : 1er |
| 1x Dégagement | 2.02 m² | Étage : 1er |
| 1x Placard | 0.62 m² | Étage : 1er |
| 1x Couloir | 11.57 m² | Étage : 1er |
| 1x Dégagement | 2.78 m² | Étage : 1er |
| 1x Chambre | 13.89 m² | Étage : 1er |
| 1x Salle de bains | 5.61 m² | Étage : 1er |
| 1x Toilettes | 1.87 m² | Étage : 1er |
| 1x Buanderie | 4.48 m² | Étage : 1er |
| 1x Dressing | 7.68 m² | Étage : 1er |
| 1x Salle de bains / toilettes | 16.27 m² | Étage : 1er |
| 1x Chambre | 18.78 m² | Étage : 1er |
| 1x Dégagement | 0.4 m² | Étage : 1er |
| 1x Chambre | 25.31 m² | Étage : 1er |
| 1x Salle de douche | 6.07 m² | Étage : 1er |
| 1x Toilettes | 0.81 m² | Étage : 1er |
Prestations
Bâtiment & Copropriété
| Bâtiment |
|---|
-
Construit en : 1914
-
Niveau de qualité : Grand ensemble
| Copropriété |
|---|
37 lots d'habitation
Montant moyen annuel de la quote part de charges courantes : 13 164 €
Procédure en cours : Non
Rencontrez votre agence
Simulateur de financement
Calculez le montant des mensualités de votre prêt immobilier correspondant à l'emprunt que vous souhaitez effectuer.
Prix du bien HAI
4 200 000 €
€
par mois
Vous devez vendre pour acheter ?
Nos consultants immobiliers se tiennent à votre disposition pour réaliser une estimation de la valeur de votre bien. Toutes nos estimations sont offertes.
Je fais estimer mon bienUn lieu de vie à votre image
Junot vous fait visiter les quartiers dans lesquels nos agences vous accueillent, et vous présente les spécificités et bonnes adresses.
Parcourir les quartiers










