Faisons un tour d'horizon
Référence de l’annonce : 3573GREGEN
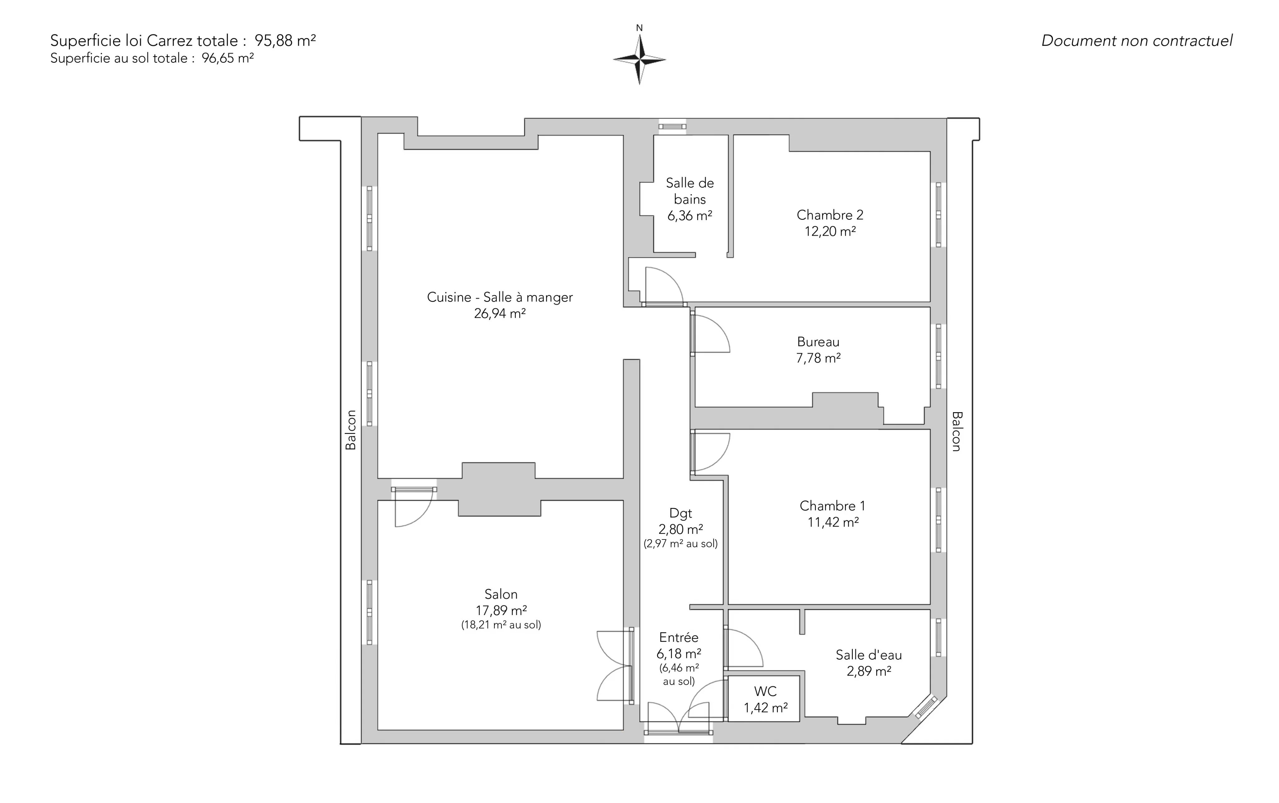
Au cœur du quartier du Gros Caillou, rue de l’Université, au cinquième étage par ascenseur d’un bel immeuble en pierre de taille avec gardienne, cet appartement de 95,88m² loi Carrez séduit par son élégance et son parfait état.
Traversant, il bénéficie de vues dégagées, dont une remarquable perspective sur la tour Eiffel, ainsi que d’un agréable espace extérieur.
L’entrée distribue une double réception composée d’un salon et d’une salle à manger, prolongée par une cuisine ouverte aménagée et équipée.
L’espace nuit accueille deux chambres au calme sur cour avec rangements, un bureau pouvant faire office de troisième chambre ou de dressing, une salle de bains avec toilettes, une salle de douche ainsi que des toilettes indépendantes.
L’ensemble conjugue avec harmonie le charme de l’ancien du parquet, des moulures, et de la cheminée à une rénovation contemporaine de qualité, dans une atmosphère élégante et feutrée.
Une cave complète cette offre.
EXCLUSIVITÉ.
- Habitable : 95,88 m² Total : 96,65 m²
- 5 pièces
- 3 chambres
- 1 salle de bains
- 1 salle de douche
- Étage 5/6
- Cheminée
- Exposition Ouest
- Excellent état
Ce qui nous séduit
- Vue exceptionnelle
- Balcon/Terrasse
- Adresse très recherchée
- Gardien
- Vue monument historique
- Lumineux
- Calme
- Traversant
- Ascenseur
- Cave
- Vue dégagée
On vous en dit plus
Réglementations & éléments financiers
Les informations sur les risques auxquels ce bien est exposé sont disponibles sur le site Géorisques : www.georisques.gouv.fr
| Diagnostics |
|---|
Consommation énergie finale : a - 133 kWh/m²/an.
Montant estimé des dépenses annuelles d’énergie pour un usage standard : entre 2 220,00 € et 3 050,00 € /an (abonnement compris).
Prix moyen des énergies indexées au 01/01/2023.
| Éléments financiers |
|---|
Taxe foncière : 2 249,00 € /an
Détails de l’intérieur & de l’extérieur
| Pièce | Surface | Détail |
|---|---|---|
| 1x Entrée | 6.18 m² | |
| 1x Salon | 17.89 m² | |
| 1x Salle à manger/Cuisine | 26.94 m² | |
| 1x Dégagement | 2.8 m² | |
| 1x Chambre | 11.42 m² | |
| 1x Salle de douche | 2.89 m² | |
| 1x Chambre | 7.78 m² | |
| 1x Chambre | 12.2 m² | |
| 1x Toilettes | 1.42 m² | |
| 1x Salle de bains | 6.36 m² | |
| 1x Balcon | ||
| 1x Balcon | ||
| 1x Cave | Étage : Sous-sol |
Prestations
Bâtiment & Copropriété
| Bâtiment |
|---|
-
Construit en : 1885
-
Nombre d'étages : 6
| Copropriété |
|---|
401 lots d'habitation
Procédure en cours : Non
Rencontrez votre agence
Simulateur de financement
Calculez le montant des mensualités de votre prêt immobilier correspondant à l'emprunt que vous souhaitez effectuer.
Prix du bien HAI
1 945 000 €
€
par mois
Vous devez vendre pour acheter ?
Nos consultants immobiliers se tiennent à votre disposition pour réaliser une estimation de la valeur de votre bien. Toutes nos estimations sont offertes.
Je fais estimer mon bienUn lieu de vie à votre image
Junot vous fait visiter les quartiers dans lesquels nos agences vous accueillent, et vous présente les spécificités et bonnes adresses.
Parcourir les quartiers











