Let's take an overview
Ad reference : 3459BREHUC
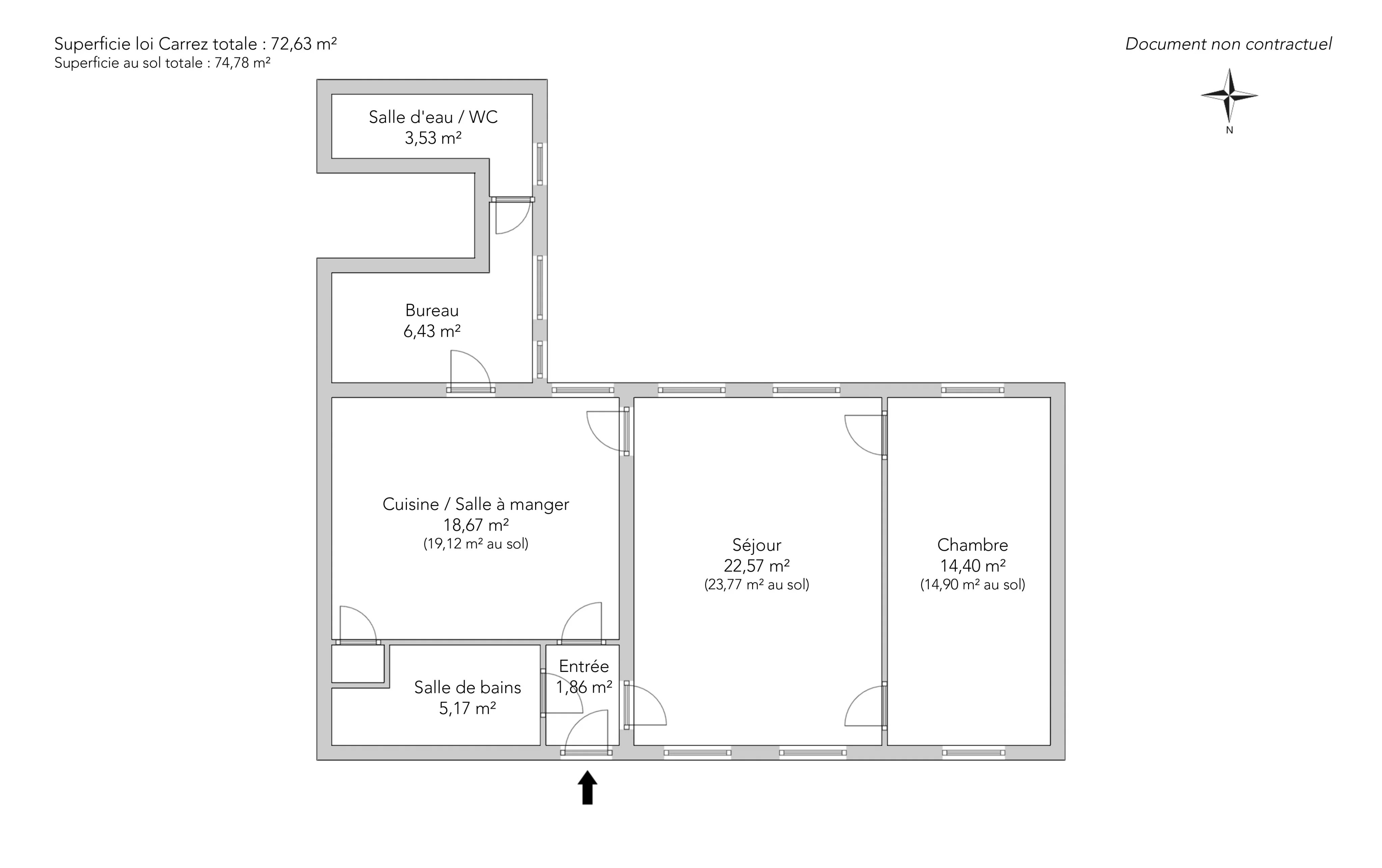
Located on the second floor by staircase of an old building in the heart of a quiet street in the Marais, this 72.63sqm loi Carrez apartment is in need of renovation.
It comprises a bright living room with four windows and double south/north exposure, a comfortable bedroom, a dining room with open kitchen, an office, a bathroom, a shower room and two toilets.
Great potential for this sought-after property. Possibility of creating two bedrooms.
A cellar completes this property.
Quiet condominium with live-in janitor.
- Habitable : 781,78 Sq Ft Total : 804,92 Sq Ft
- 3 rooms
- 2 bedrooms
- 1 bathroom
- 1 shower room
- Floor 2/3
- Fireplace
- Orientation West, South
- To renovate
What seduced us
- Guardian
- Calm
- Cellar
We say more
Regulations & financial information
Information on the risks to which this property is exposed is available on the Géorisques website. : www.georisques.gouv.fr
| Diagnostics |
|---|
Final energy consumption : E - 275 kWh/m²/an.
Estimated annual energy costs for standard use: between 1 840,00 € and 2 500,00 € /year (including subscription).
Average energy price indexed to 01/01/2023.
| Financial elements |
|---|
Property tax : 1 450,00 € /an
Interior & exterior details
| Room | Surface | Detail |
|---|---|---|
| 1x Bedroom | ||
| 1x Cellar | 43.06 Sq Ft | Floor : Basement |
| 1x Entrance | 20.02 Sq Ft |
Floor : 2nd Coating : Parquet |
| 1x Stay | 242.94 Sq Ft |
Floor : 2nd Exposure : South Coating : Parquet Ceiling : 2.65m |
| 1x Bedroom | 155 Sq Ft |
Floor : 2nd Exposure : South Ceiling : 2.65m |
| 1x American cuisine | 200.96 Sq Ft |
Floor : 2nd Exposure : South Coating : Parquet |
| 1x Bathroom/toilet | 55.65 Sq Ft |
Floor : 2nd Coating : Floor tile |
| 1x Shower room/toilet | 38 Sq Ft |
Floor : 2nd Exposure : West Coating : Floor tile |
| 1x Desk | 69.21 Sq Ft |
Floor : 2nd Exposure : West |
Services
Building & Co-ownership
| Building |
|---|
-
Built in : 1750
-
Type : Brick
-
Number of floors : 3
| Co-ownership |
|---|
49 housing lots
Average annual amount of the share of current charges : 1 972 €
Procedure in progress : Non
Meet your agency
Simulator financing
Calculate the amount of the monthly payments on your home loan corresponding to the loan you wish to make.
FAI property price
850 000 €
€
per month
Do you have to sell to buy?
Our real estate consultants are at your disposal to estimate the value of your property. All our estimates are free of charge.
Estimate my propertyA living space to suit you
Junot takes you on a tour of the neighborhoods in which our agencies welcome you, and presents the specific features and good addresses.
Explore the neighborhoods











