Let's take an overview
Ad reference : HP5707JUNORM
In one of Montmartre’s most sought-after addresses, a private mansion built in 1950 by architect Lucien Daboval offers 190.26sqm of living space (270.52sqm total floor area) and features two terraces.
Spread over three main levels connected by a beautiful original staircase, the property offers a family-friendly layout and generous volumes, as follows:
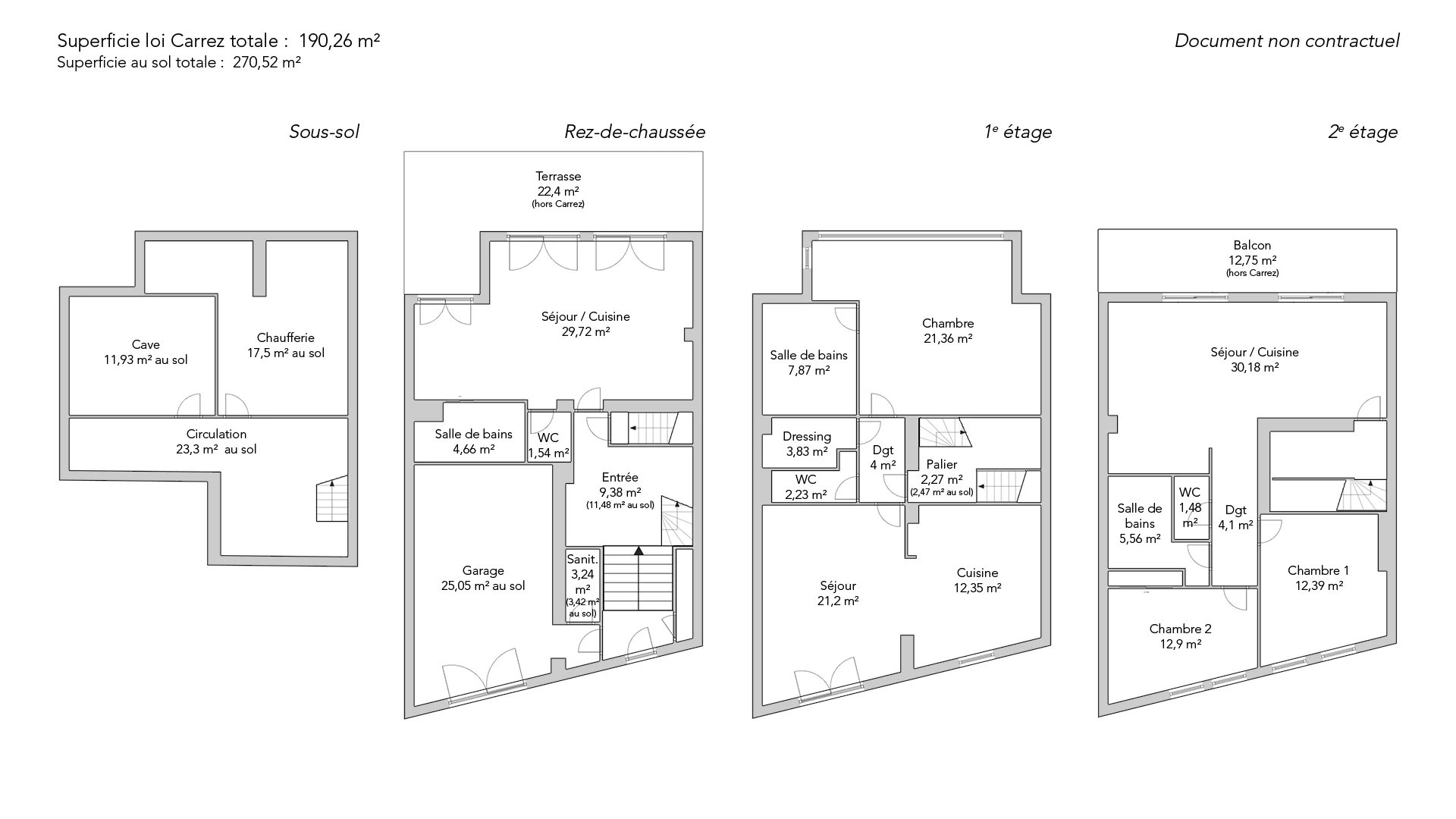
On the ground floor, the entrance opens onto a spacious bedroom with direct access to a landscaped terrace, a bathroom, a kitchen, and separate toilets.
On the first floor, an impressive living room with exceptional 3.80 m high ceilings, an open kitchen, and unobstructed views over Avenue Junot and its trees. On the courtyard side, a bedroom with an en-suite bathroom, built-in storage, and toilets.
On the second floor, a bright lounge opening onto a large south-facing terrace, a fully equipped kitchen, two bedrooms, a bathroom, and separate toilets.
In the basement, a large laundry area and cellar.
A spacious garage with direct street access, along with the generous laundry and cellar space in the basement, complete this exceptional property.
This private mansion offers outstanding layout potential on the most beautiful avenue in the neighborhood. A very rare opportunity on the market.
EXCLUSIVE.
- Habitable : 2 047,94 Sq Ft Total : 2 911,85 Sq Ft
- 7 rooms
- 4 bedrooms
- 3 bathrooms
- To renovate
What seduced us
- Balcony/Terrace
- Highly sought-after address
- Garage
- Calm
- Crossing
- Cellar
We say more
Regulations & financial information
Information on the risks to which this property is exposed is available on the Géorisques website. : www.georisques.gouv.fr
| Diagnostics |
|---|
Final energy consumption : E - 252 kWh/m²/an.
Estimated annual energy costs for standard use: between 4 520,00 € and 6 130,00 € /year (including subscription).
Average energy price indexed to 01/01/2021.
| Financial elements |
|---|
Interior & exterior details
| Room | Surface | Detail |
|---|---|---|
| 1x Technical area | 188.37 Sq Ft | Floor : Basement |
| 1x Cellar | 128.41 Sq Ft | Floor : Basement |
| 1x Basement | 250.8 Sq Ft | Floor : Basement |
| 1x Entrance | 100.97 Sq Ft | Floor : Ground floor |
| 1x Living room/kitchen | 319.9 Sq Ft | Floor : Ground floor |
| 1x Bathroom | 16.58 Sq Ft | Floor : Ground floor |
| 1x Bathroom | 50.16 Sq Ft | Floor : Ground floor |
| 1x Bathroom | 34.88 Sq Ft | Floor : Ground floor |
| 1x Garage | Floor : Ground floor | |
| 1x Terrace | 241.11 Sq Ft | Floor : Ground floor |
| 1x Landing | 24.43 Sq Ft | Floor : 1st |
| 1x Clearance | 43.06 Sq Ft | Floor : 1st |
| 1x Dressing room | 41.23 Sq Ft | Floor : 1st |
| 1x Stay | 228.19 Sq Ft | Floor : 1st |
| 1x Bedroom | 132.93 Sq Ft | Floor : 1st |
| 1x Bedroom | 229.92 Sq Ft | Floor : 1st |
| 1x Bathroom | 84.71 Sq Ft | Floor : 1st |
| 1x Bathroom | 24 Sq Ft | Floor : 1st |
| 1x Living room/kitchen | 324.85 Sq Ft | Floor : 2nd |
| 1x Clearance | 44.13 Sq Ft | Floor : 2nd |
| 1x Bedroom | 133.36 Sq Ft | Floor : 2nd |
| 1x Bedroom | 138.85 Sq Ft | Floor : 2nd |
| 1x Bathroom | 15.93 Sq Ft | Floor : 2nd |
| 1x Bathroom | 59.85 Sq Ft | Floor : 2nd |
| 1x Terrace | 137.24 Sq Ft | Floor : 2nd |
Building & Co-ownership
| Building |
|---|
-
Built in : 1953
| Co-ownership |
|---|
Procedure in progress : Non
Meet your agency
Simulator financing
Calculate the amount of the monthly payments on your home loan corresponding to the loan you wish to make.
FAI property price
3 700 000 €
€
per month
Do you have to sell to buy?
Our real estate consultants are at your disposal to estimate the value of your property. All our estimates are free of charge.
Estimate my propertyA living space to suit you
Junot takes you on a tour of the neighborhoods in which our agencies welcome you, and presents the specific features and good addresses.
Explore the neighborhoods












