Let's take an overview
Ad reference : 1120POIGON
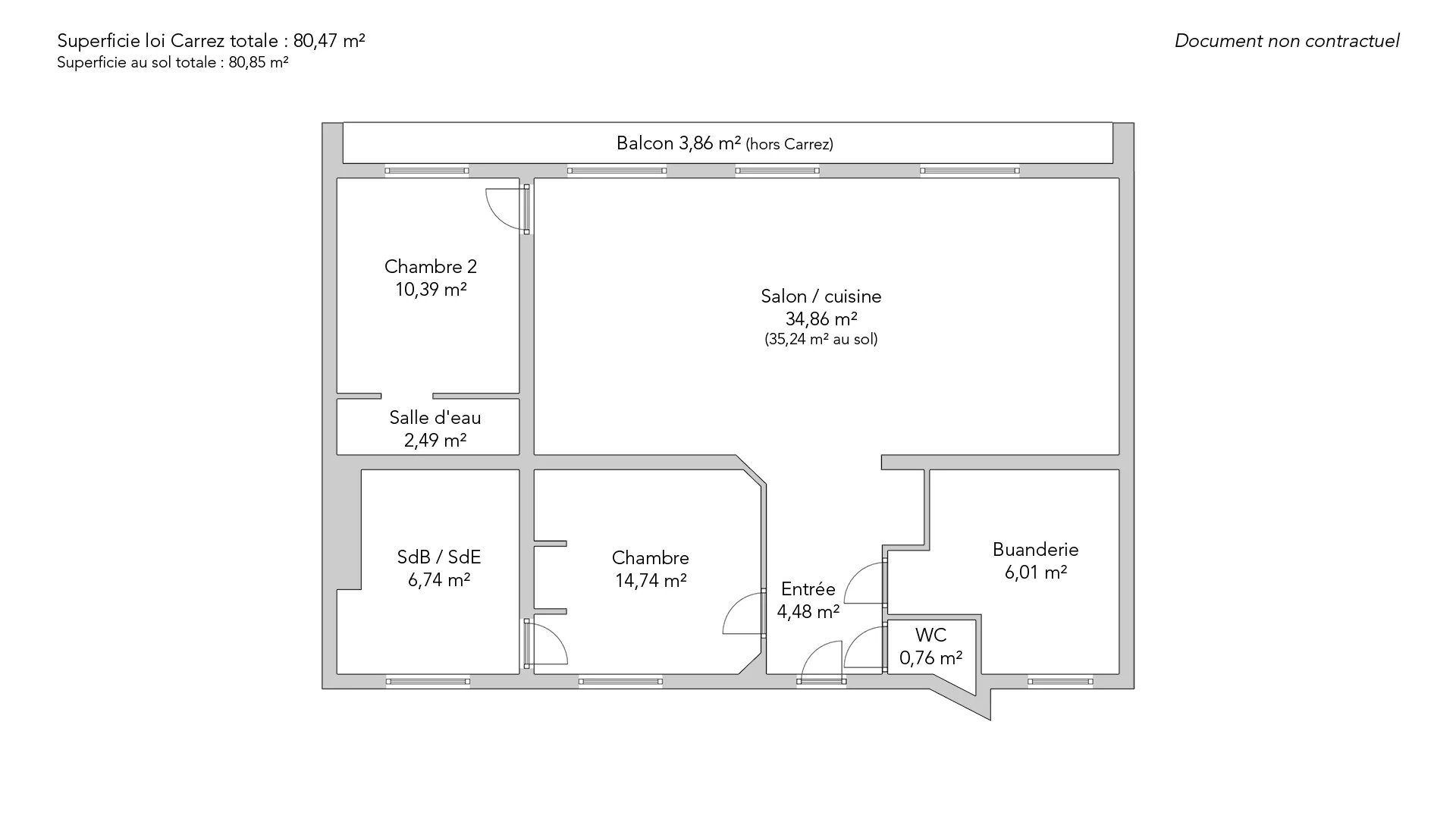
On the fourth floor by staircase of an old building, four-room apartment of 80.47sqm loi Carrez, entirely renovated by architect in 2021.
It comprises an entrance hall with storage space, a bright 35sqm double living room with open-plan kitchen and balcony, two bedrooms, each with its own bathroom/shower room, an office and separate toilet.
Apartment in excellent condition, combining charm and modernity. Numerous built-in dressing rooms. EXCLUSIVE.
- Habitable : 866,17 Sq Ft Total : 870,26 Sq Ft
- 4 rooms
- 2 bedrooms
- 1 bathroom
- 1 shower room
- Floor 4/5
- Orientation North
- Excellent condition
What seduced us
- Balcony/Terrace
- Crossing
- Cellar
We say more
Regulations & financial information
Information on the risks to which this property is exposed is available on the Géorisques website. : www.georisques.gouv.fr
| Diagnostics |
|---|
Final energy consumption : D - 230 kWh/m²/an.
Estimated annual energy costs for standard use: between 1 750,00 € and 2 420,00 € /year (including subscription).
Average energy price indexed to 01/01/2021.
| Financial elements |
|---|
Property tax : 1 234,00 € /an
Interior & exterior details
| Room | Surface | Detail |
|---|---|---|
| 1x Cellar | 53.82 Sq Ft | |
| 1x Entrance | 48.22 Sq Ft |
Floor : 4th Coating : Parquet |
| 1x Bathroom | 8.18 Sq Ft |
Floor : 4th Coating : Floor tile |
| 1x Living room/kitchen | 375.23 Sq Ft |
Floor : 4th Exposure : North Coating : Parquet Ceiling : 2.4m |
| 1x Bedroom | 158.66 Sq Ft |
Floor : 4th Coating : Parquet |
| 1x Bathroom | 72.55 Sq Ft |
Floor : 4th Coating : Floor tile |
| 1x Desk | 64.69 Sq Ft |
Floor : 4th Coating : Parquet |
| 1x Bedroom | 111.84 Sq Ft |
Floor : 4th Coating : Parquet |
| 1x Bathroom | 26.8 Sq Ft |
Floor : 4th Coating : Floor tile |
| 1x Balcony | 41.55 Sq Ft | Floor : 4th |
Services
Building & Co-ownership
| Building |
|---|
-
Built in : 1840
-
Type : cut stone
-
Number of floors : 5
| Co-ownership |
|---|
28 housing lots
Average annual amount of the share of current charges : 3 700 €
Procedure in progress : Non
Meet your agency
Simulator financing
Calculate the amount of the monthly payments on your home loan corresponding to the loan you wish to make.
FAI property price
995 000 €
€
per month
Do you have to sell to buy?
Our real estate consultants are at your disposal to estimate the value of your property. All our estimates are free of charge.
Estimate my propertyA living space to suit you
Junot takes you on a tour of the neighborhoods in which our agencies welcome you, and presents the specific features and good addresses.
Explore the neighborhoods











